MahaRERA:https://maharera.mahaonline.gov.in
| Project QR Code | Maharera No. | Project/Phase Name | Proposed Date Of Completion | Total area (sq.m) |
Total Acre | Total Units | Total Tower |
|---|---|---|---|---|---|---|---|
| P51900050463 | AAKASA - Worli | December - 2027 | 2023.12 | 0.5 | 33 | 1 |
| Rera No. : P51900050463 |
| Project Name | Proposed Date Of Completion |
Total Units |
|---|---|---|
| AAKASA - Worli | December - 2027 | 33 |
| Total area (sq.m) |
Total Acre | Total Building |
| 2023.12 | 0.5 | 1 |
| Type | Project/Phase Name | Tower | Total Carpet area (sq.m) |
Basic Carpet area (sq.m) |
Total Carpet area (sq.ft) |
Basic Carpet area (sq.ft) |
All Inclusive Price (INR) |
|---|---|---|---|---|---|---|---|
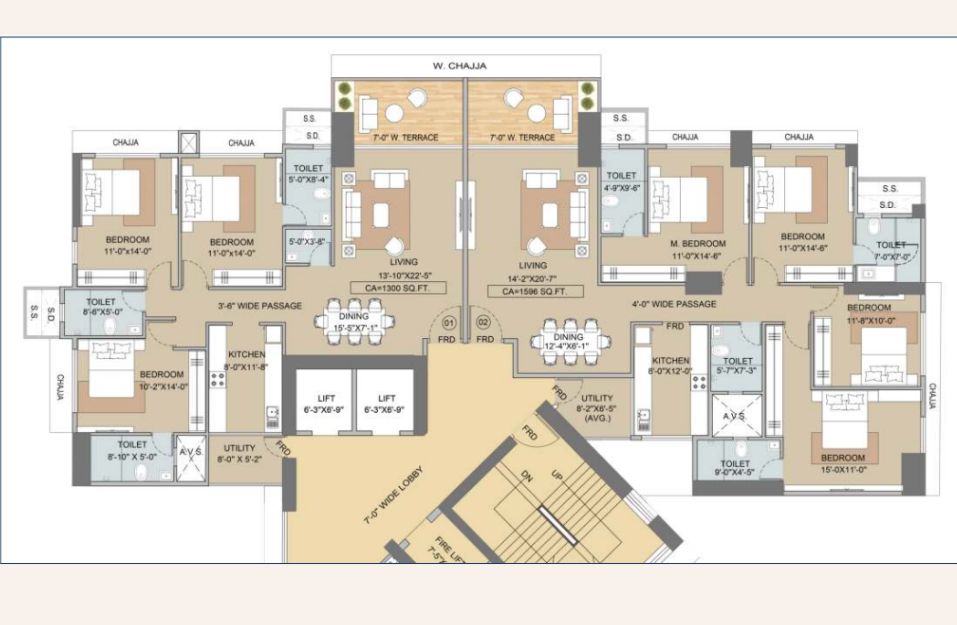
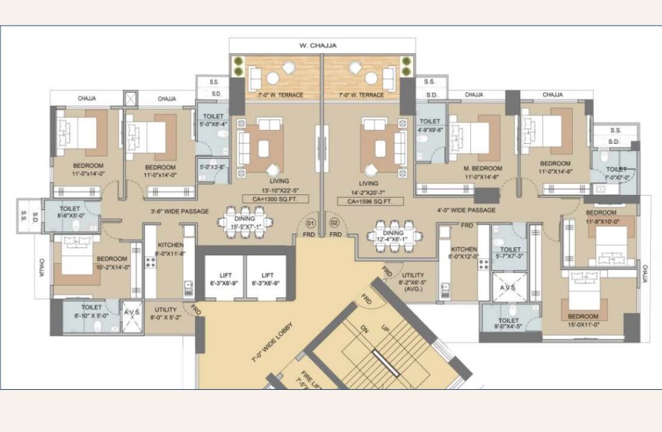
| 3 BHK | AAKASA - Worli | 1 | 120.77 | On Request | 1300 | 0.000 | 11 Cr*Onwards |
| 4 BHK | AAKASA - Worli | 1 | 148.65 | On Request | 1600 | 0.000 | 13.6 Cr*Onwards |
| 5 BHK | AAKASA - Worli | 1 | 269.42 | On Request | 2900 | 0.000 | 27.55 Cr*Onwards |
SOAKING IN ABOVE-THE-WORLD PLEASURES.
IT IS AN EVERYDAY AFFAIR & YOUR REWARD OF LIFE.
FLUIDITY OF SPACE, SPLENDOUR OF SEA VISTAS. YOUR REWARD OF LIFE
Aakasa is a 27-storied Under Construction Project and the Location is Adarsh Nagar, New Prabhadevi Road, Worli, and is Developed by Techno Fresh World Llp. Aakasa Was Launched in Mar 2023 and the Possession of the Same is Likely to Be in Dec 2027. Aakasa is Rera Approved and Has the Registration Number Bearing P51900050463. Aakasa Has Amenities Like Outdoor Games Indoor Games Air Conditioned Lobby Landscaped Garden High-speed Elevators Grand Entrance Lobby Gymnasium Pop Finished Walls Imported Sanitary Fittings Granite Platform Security Help Desk Reception Desk Are Planned to Be Provided in Aakasa.
With 3 Decades of rich experience in the business, the Group is built on the
bedrock of deep-rooted values and innovation by the Mehta family. Today, it has
earned a reputation of trust with superlative quality & timely possession. Driven by
Mr. Jaydeep Mehta, Mr. Nikhil Mehta & Mr. Rajesh Loya, it has successfully delivered
residential & commercial projects across a wide spread.
Headed by Mr. Suketu Trivedi & supported by Mr. Anshul Trivedi, Fortune Group
showcases expertise of over 2 decades and a legacy of numerous landmark
projects. Today it is recognized as a reliable, established & respectable name in
the business. The Group has successfully developed large spaces with more
under development.
Spearheaded by Mr. Raj Gala, the Group was established in 2011 with an objective
to cater to the elite millennials. A penchant for emerging market trends and urban
features, has enabled the Group to revolutionize the skylines of Mumbai, Nasik &
MMR, with a vast spread of completed projects & more under development.
Connectivity
Upcoming Connectivity
Landmarks
Conveniences














