MahaRERA:https://maharera.mahaonline.gov.in
| Project QR Code | Maharera No. | Project/Phase Name | Proposed Date Of Completion | Total area (sq.m) |
Total Acre | Total Units | Total Tower |
|---|---|---|---|---|---|---|---|
| P51800045791 | WING -A & B | March - 2026 | 900 | 0.22 | 149 | 2 |
| Rera No. : P51800045791 |
| Project Name | Proposed Date Of Completion |
Total Units |
|---|---|---|
| WING -A & B | March - 2026 | 149 |
| Total area (sq.m) |
Total Acre | Total Building |
| 900 | 0.22 | 2 |
| Type | Project/Phase Name | Tower | Total Carpet area (sq.m) |
Basic Carpet area (sq.m) |
Total Carpet area (sq.ft) |
Basic Carpet area (sq.ft) |
Basic Amount Price (INR) |
|---|---|---|---|---|---|---|---|
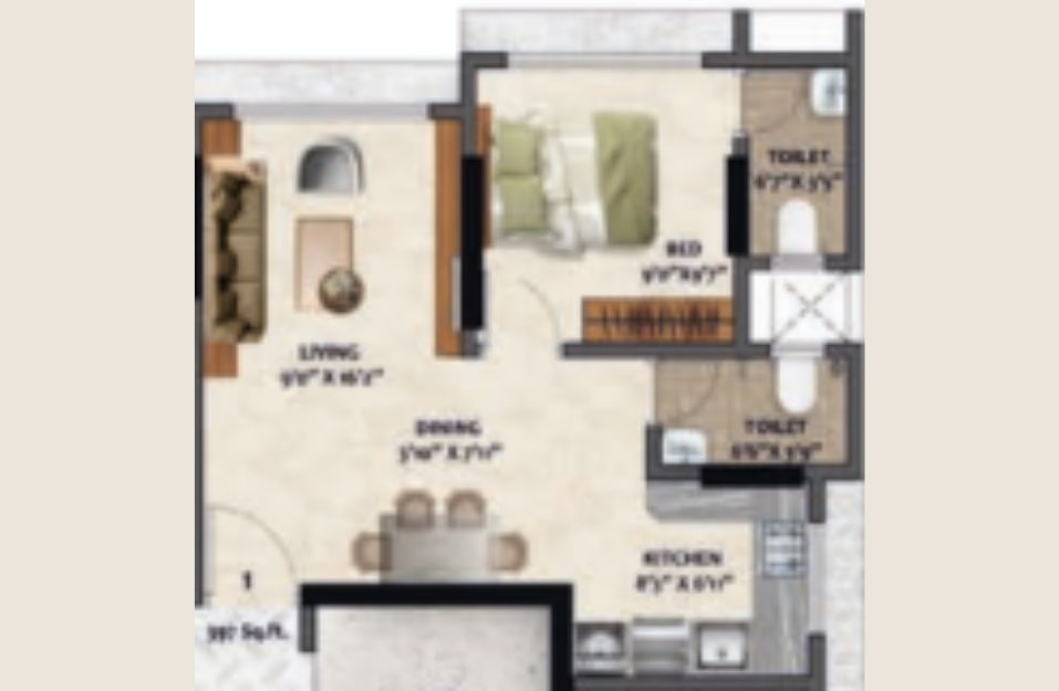
| 1 BHK | WING -A & B | 2 | 36.88 | On Request | 397 | 0.000 | 71.5 Lakhs*Onwards |
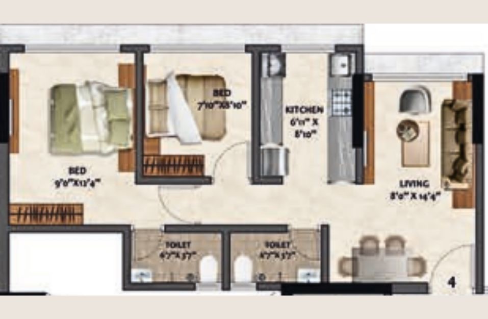
| 2 BHK | WING -A & B | 2 | 45.89 | On Request | 494 | 0.000 | 89 Lakhs*Onwards |














