MahaRERA:https://maharera.mahaonline.gov.in
| Project QR Code | Maharera No. | Project/Phase Name | Proposed Date Of Completion | Total area (sq.m) |
Total Acre | Total Units | Total Tower |
|---|---|---|---|---|---|---|---|
| P51800020793 | Puneet Prime, Phase 3 | June - 2025 | 1118.42 | 0.28 | 8 | 1 |
| Rera No. : P51800020793 |
| Project Name | Proposed Date Of Completion |
Total Units |
|---|---|---|
| Puneet Prime, Phase 3 | June - 2025 | 8 |
| Total area (sq.m) |
Total Acre | Total Building |
| 1118.42 | 0.28 | 1 |
| Type | Project/Phase Name | Tower | Total Carpet area (sq.m) |
Basic Carpet area (sq.m) |
Total Carpet area (sq.ft) |
Basic Carpet area (sq.ft) |
All Inclusive Price (INR) |
|---|---|---|---|---|---|---|---|
| 1 RK | Puneet Prime, Phase 3 | 1 | 27.03 | On Request | 291 | 0.000 | 64.55 Lakhs*Onwards |
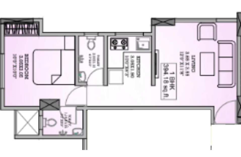
| 1 BHK | Puneet Prime, Phase 3 | 1 | 36.60 | On Request | 394 | 0.000 | 87.31 Lakhs*Onwards |
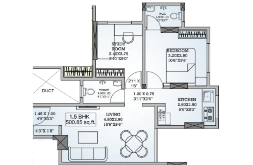
| 1.5 BHK | Puneet Prime, Phase 3 | 1 | 46.54 | On Request | 501 | 0.000 | 1.1 Cr*Onwards |
| 2 BHK | Puneet Prime, Phase 3 | 1 | 52.95 | On Request | 570 | 0.000 | 1.26 Cr*Onwards |
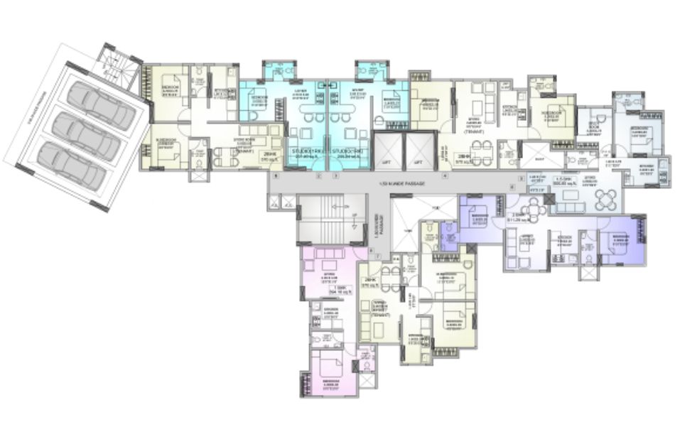
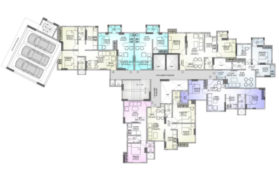
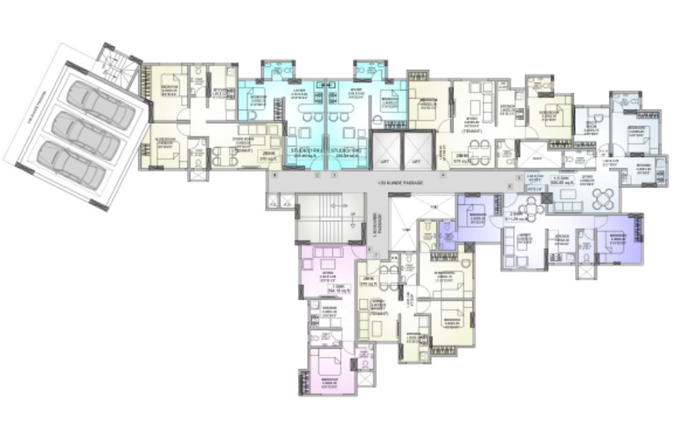
Discover 1 RK & 1, 1.5 & 2 BHK Homes at Puneet Prime, a modern, mixed-use development soaring 18 stories high in the vibrant suburb of Kurla East, Mumbai. Puneet Prime is designed to elevate your lifestyle with its unique blend of contemporary residential spaces, commercial offerings, and cutting-edge amenities. This centrally located haven offers the best of both worlds, making it the perfect choice for discerning homeowners.
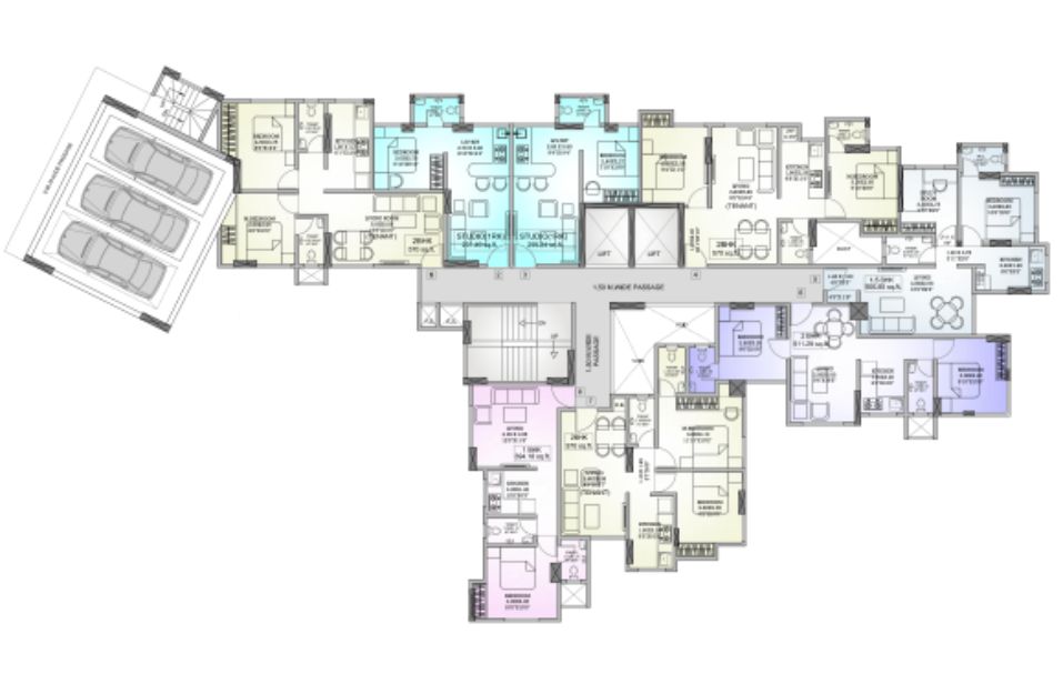
Residential: Puneet Prime boasts 16 levels of thoughtfully planned studio, one-and-half, one-bedroom, and two-bedroom residences. Each living space is meticulously designed to provide the utmost comfort and convenience. Our commitment to impeccable construction quality sets Puneet Prime apart from the rest, ensuring that your home is unlike any other in the vicinity.
Commercial Spaces: Elevate your business prospects with Puneet Prime's three levels of commercial space, complete with a separate entrance for ease of access. Whether you're starting a new venture or expanding an existing one, Prime's commercial offerings are designed to meet your unique needs.
Automated Parking Tower: Say goodbye to parking hassles. Puneet Prime features a fully automated parking tower exclusively for select owners. With a simple SMS command, you can park your vehicle effortlessly, providing an added layer of convenience and security.
Unbeatable Location: Puneet Prime is strategically located in one of the most well-connected neighborhoods in Mumbai, ensuring that you're always connected to the pulse of the city. Enjoy the following advantages of our prime location:
Social Infrastructure: Puneet Prime is surrounded by educational institutes, hospitals, children's parks, and playgrounds, ensuring that your family's needs are met with ease.
Rapid Development: Kurla East has witnessed substantial growth in recent years, with the emergence of luxurious housing projects. In the next five years, this neighborhood is expected to welcome over 7,000 new families, making it an ideal investment opportunity.
Superior Connectivity Nestled in the heart of Kurla East's Nehru Nagar neighborhood, Puneet Prime enjoys exceptional rail and road connectivity. Whether you're heading to Mumbai, Navi Mumbai, Thane, or anywhere in between, you're always just minutes away from your destination.
At Puneet Prime, we've crafted a lifestyle that's second to none, with amenities like a fully automated SMS-controlled parking tower, heat reduction glass windows, and a state-of-the-art security and safety system. Your dream home is here, waiting to enhance your quality of life.
Make Puneet Prime your new address and experience the epitome of modern living in Mumbai. Your dream home awaits - don't miss out on this incredible opportunity.














