MahaRERA:https://maharera.mahaonline.gov.in
| Project QR Code | Maharera No. | Project/Phase Name | Proposed Date Of Completion | Total area (sq.m) |
Total Acre | Total Units | Total Tower |
|---|---|---|---|---|---|---|---|
| P51800027273 | Kalpataru Elegante | November - 2027 | 3763.4 | 0.93 | 310 | 1 |
| Rera No. : P51800027273 |
| Project Name | Proposed Date Of Completion |
Total Units |
|---|---|---|
| Kalpataru Elegante | November - 2027 | 310 |
| Total area (sq.m) |
Total Acre | Total Building |
| 3763.4 | 0.93 | 1 |
| Type | Project/Phase Name | Tower | Total Carpet area (sq.m) |
Basic Carpet area (sq.m) |
Total Carpet area (sq.ft) |
Basic Carpet area (sq.ft) |
Price (INR) |
|---|---|---|---|---|---|---|---|
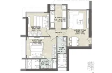
| 1 BHK | Kalpataru Elegante | 1 | 41.62 | On Request | 448 | 0.000 | 1.31 Cr*Onwards |
| 2 BHK | Kalpataru Elegante | 1 | 58.16 | On Request | 626 | 0.000 | 1.93 Cr*Onwards |
| 2 BHK | Kalpataru Elegante | 1 | 65.59 | On Request | 706 | 0.000 | 2.18 Cr*Onwards |
A CREATION THAT TOWERS
ABOVE MANY.
Kalpataru Elegante leaves no stone unturned in taking care of all your needs. The 50-storey skyscraper is strategically located in the heart of Kandivali connecting you to the rest of the city Teffortlessly. The premium residences and the curated recreational amenities make Kalpataru Elegante a lifestyle of your dreams.
A neighbourhood that is characterised
by great accessibility: Kandivali East.
This plush milieu is marked with several
reputed malls, restaurants, recreational
hubs, educational institutions,
hospitals and many urban conveniences.
With several futuristic infrastructural
projects underway, it is on track to become
Mumbai’s prime residential hub.
HOSPITALS
EDUCATIONAL INSTITUTIONS
ROAD NETWORK
TERMINALS
COMMERCIAL OFFICES














