MahaRERA:https://maharera.mahaonline.gov.in
| Project QR Code | Maharera No. | Project/Phase Name | Proposed Date Of Completion | Total area (sq.m) |
Total Acre | Total Units | Total Tower |
|---|---|---|---|---|---|---|---|
| P52100030290 | Wing A,B | July - 2025 | 3973 | 0.98 | 316 | 2 |
| Rera No. : P52100030290 |
| Project Name | Proposed Date Of Completion |
Total Units |
|---|---|---|
| Wing A,B | July - 2025 | 316 |
| Total area (sq.m) |
Total Acre | Total Building |
| 3973 | 0.98 | 2 |
| Type | Project/Phase Name | Tower | Total Carpet area (sq.m) |
Basic Carpet area (sq.m) |
Total Carpet area (sq.ft) |
Basic Carpet area (sq.ft) |
All Inclusive Price (INR) |
|---|---|---|---|---|---|---|---|
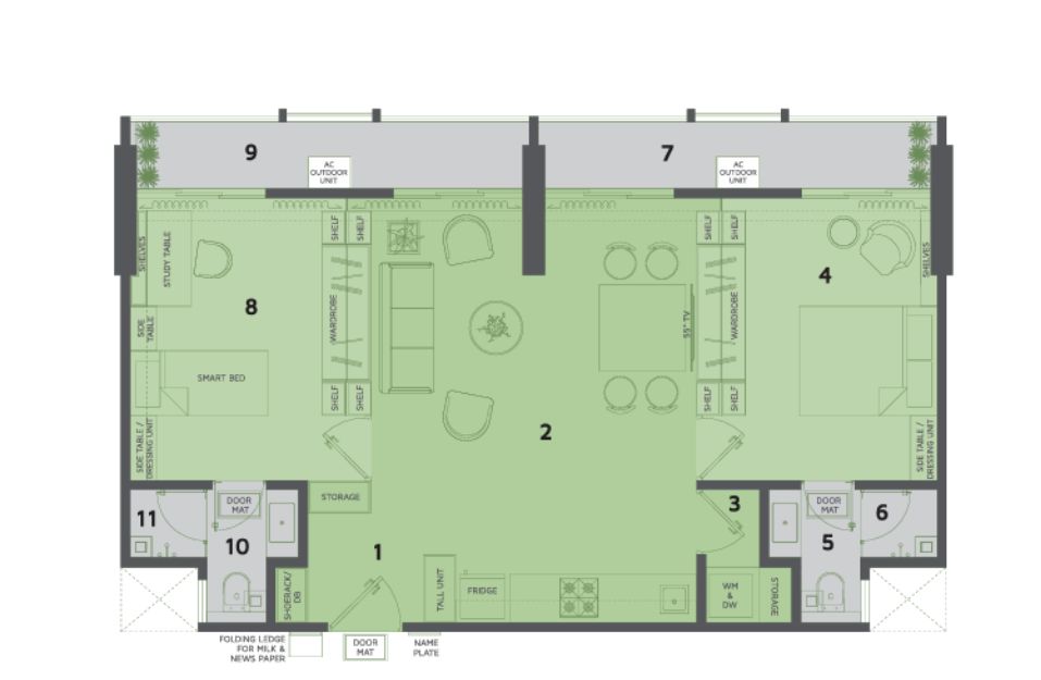
| 1 Bed Hometels | Wing A,B | 2 | 31.31 | On Request | 337 | 0.000 | 50.84 Lakhs*Onwards |
| 1 Bed Hometels | Wing A,B | 2 | 37.72 | On Request | 406 | 0.000 | 59.98 Lakhs*Onwards |
| 2 Bed Hometels | Wing A,B | 2 | 63.17 | On Request | 680 | 0.000 | 96.54 Lakhs*Onwards |
| 2 Bed Hometels | Wing A,B | 2 | 75.99 | On Request | 818 | 0.000 | 1.14 Cr*Onwards |
Situated in one of Pune’s most prominent neighborhoods - Viman Nagar, NEON is where the comfort of a home combines with luxuries of a hotel to give you a HOMEtel. A unique collection of hotel-inspired and ultra-modern residences, NEON promises to give you a taste of customized futuristic living that includes a Modular Kitchenette, Infinity Pool, Rooftop Deck, Resident Lounge, Business Centre, Laundromat, Salon, Smart Parcel Lockers, Wi-Fi, Digital Locks, Professional Facility Management and much more. So whether you're looking for a workation home, a vacation home, a home for just you and your partner or one for your nuclear family, NEON makes relaxation and refinement possible in one home.















The modern investor seeks more than just a home—they seek growth, reliability, and a steady stream of returns. This is precisely what Niwaas Studio b...
Read MoreIn a city where every square foot matters, Niwaas Studio by Kele Realcorp brings a refreshing concept of space efficiency blended with modern luxury. L...
Read More