MahaRERA:https://maharera.mahaonline.gov.in
| Project QR Code | Maharera No. | Project/Phase Name | Proposed Date Of Completion | Total area (sq.m) |
Total Acre | Total Units | Total Tower |
|---|---|---|---|---|---|---|---|
| P52100049127 | Kate Ramdara | December - 2025 | 1122.5 | 0.28 | 41 | 1 |
| Rera No. : P52100049127 |
| Project Name | Proposed Date Of Completion |
Total Units |
|---|---|---|
| Kate Ramdara | December - 2025 | 41 |
| Total area (sq.m) |
Total Acre | Total Building |
| 1122.5 | 0.28 | 1 |
| Type | Project/Phase Name | Tower | Total Carpet area (sq.m) |
Basic Carpet area (sq.m) |
Total Carpet area (sq.ft) |
Basic Carpet area (sq.ft) |
All Inclusive Price (INR) |
|---|---|---|---|---|---|---|---|
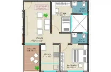
| 2 BHK | Kate Ramdara | 1 | 52.95 | On Request | 570 | 0.000 | 63.43 Lakhs*Onwards |
| 3 BHK | Kate Ramdara | 1 | 97.81 | On Request | 1052.83 | 0.000 | 1.11 Cr*Onwards |
Dapodi, located near Old Pune-Mumbai road is in limelight due to its fast growth in residential properties. As major IT and business firms are setting up their base in and around this area, the location is now emerging as one of the best strategically located areas in the city. With its close proximity from Shivaji Nagar, Khadki, Aundh, Hinjawadi, PCMC corporation, Bhosari, Akurdi, etc. It is fast becoming ideal area for residential properties.
Located exactly between Pune and PCMC, people who are working in IT parks or manufacturing industries find Dapodi as most convenient location for their dream homes. People from cities like Mumbal, Nashik, Aurangabad and Ahmednagar are making Dapodi their new address.
Kate Ramdara Developers is a prestigious substance known for its steadfast obligation to greatness, development, and straightforwardness in all undertakings. Driven by a group of innovative minds and driven pioneers, our persevering mission is to create spaces that consistently coordinate with the present while staying strong for what's to come. Our trademark lies in conveying projects that blend with their environmental factors, emanating imperativeness and immortal stylish allure.At the core of our tasks lie the upsides of trustworthiness, development, greatness, manageability, esteem creation, and an immovable commitment to dependable conveyance. These qualities reverberate in each square foot we create, guaranteeing that each undertaking mirrors our obligation to quality and uprightness.















For modern homebuyers, the perfect residence isn’t just about luxury or space—it’s about location, convenience, and tranquility. Optima Residency...
Read MorePune’s real estate market has evolved into one of India’s most promising investment destinations, thanks to its growing IT hubs, excellent connecti...
Read More