MahaRERA:https://maharera.mahaonline.gov.in
| Project QR Code | Maharera No. | Project/Phase Name | Proposed Date Of Completion | Total area (sq.m) |
Total Acre | Total Units | Total Tower |
|---|---|---|---|---|---|---|---|
| P52100078713 | Building A, B, C, | March - 2029 | 8000 | 1.98 | 154 | 3 |
| Rera No. : P52100078713 |
| Project Name | Proposed Date Of Completion |
Total Units |
|---|---|---|
| Building A, B, C, | March - 2029 | 154 |
| Total area (sq.m) |
Total Acre | Total Building |
| 8000 | 1.98 | 3 |
| Type | Project/Phase Name | Tower | Total Carpet area (sq.m) |
Basic Carpet area (sq.m) |
Total Carpet area (sq.ft) |
Basic Carpet area (sq.ft) |
All Inclusive Price (INR) |
|---|---|---|---|---|---|---|---|
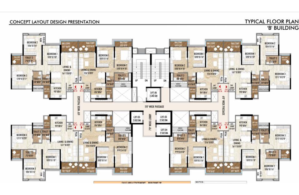
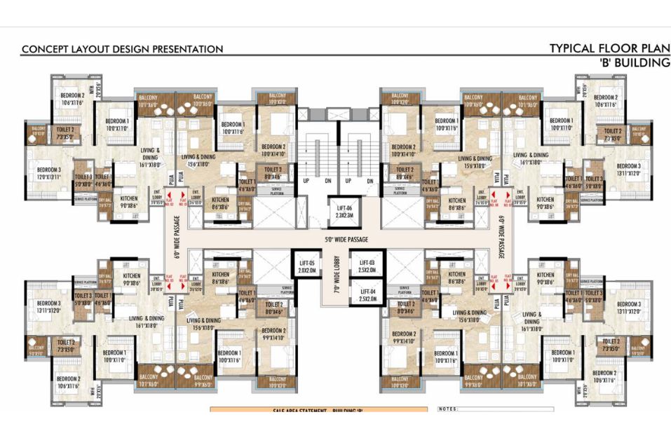
| 2 BHK | Building A, B, C, | 3 | 77.39 | On Request | 833 | 0.000 | 76.47 Lakhs*Onwards |
| 2 BHK | Building A, B, C, | 3 | 104.79 | On Request | 1128 | 0.000 | 1.04 Cr*Onwards |
| 3 BHK | Building A, B, C, | 3 | 101.26 | On Request | 1090 | 0.000 | 98.96 Lakhs*Onwards |
| 3 BHK Garden | Building A, B, C, | 3 | 135.92 | On Request | 1463 | 0.000 | 1.34 Cr*Onwards |
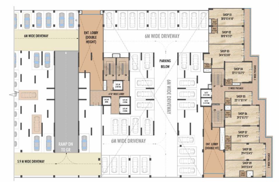
| Shops | Building A, B, C, | 3 | 47.57 | On Request | 512 | 0.000 | 1.45 Cr*Onwards |
| Office | Building A, B, C, | 3 | 100.34 | On Request | 1080 | 0.000 | 2.07 Cr*Onwards |
Experience the blend of craftsmanship and sophistication that defines every corner of our homes. From meticulously designed interiors to stunning exteriors, Winsome Homes embodies the essence of luxury, creating a living experience that you can't wait to wake up to. Come & Fall in Love with Your Life.
Under the stunning panoramic views, we have created a haven for those who seek the connection between architecture and nature.
Meet the comfort of contemporary living nestled in the hills of Dhanori. Discover the unique living experience of tranquil luxury and embrace the lifestyle that blends the modern with the essence of nature.
Discover a prime realty that not only offers a welcoming harbour for homeowners with its modern amenities and spacious layouts but also stands as a sanctum of promising growth trajectory, an investment opportunity in the rapidly growing market. With our signature residential spaces featuring smart automation, become a part of the ecosystem of endless possibilities and plot your future with Winsome Group.
Business Bay
Connectivity And Transport
Schools & Colleges
Hospitals















In today’s evolving real estate landscape, investors are increasingly looking beyond traditional appreciation-led assets and focusing on predictable ...
Read MoreCodename AIR Tathawade Sets a New Standard for Pre-Leased Studio Apartments in PuneC...
Read More