MahaRERA:https://maharera.mahaonline.gov.in
| Project QR Code | Maharera No. | Project/Phase Name | Proposed Date Of Completion | Total area (sq.m) |
Total Acre | Total Units | Total Tower |
|---|---|---|---|---|---|---|---|
| P52100033982 | Radhika Residency | December - 2024 | 1242.5 | 0.31 | 36 | 1 |
| Rera No. : P52100033982 |
| Project Name | Proposed Date Of Completion |
Total Units |
|---|---|---|
| Radhika Residency | December - 2024 | 36 |
| Total area (sq.m) |
Total Acre | Total Building |
| 1242.5 | 0.31 | 1 |
| Type | Project/Phase Name | Tower | Total Carpet area (sq.m) |
Basic Carpet area (sq.m) |
Total Carpet area (sq.ft) |
Basic Carpet area (sq.ft) |
All Inclusive Price (INR) |
|---|---|---|---|---|---|---|---|
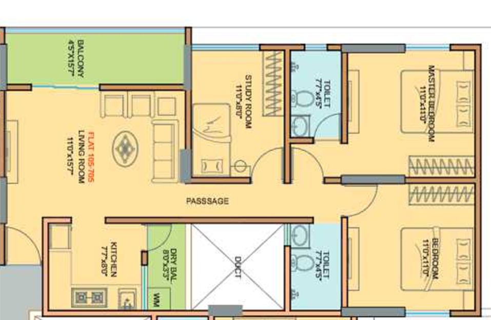
| 2 BHK | Radhika Residency | 1 | 74.60 | On Request | 803 | 0.000 | 87.14 Lakhs*Onwards |
| 2 BHK | Radhika Residency | 1 | 72.84 | On Request | 784 | 0.000 | 85.22 Lakhs*Onwards |
| 2.5 BHK | Radhika Residency | 1 | 78.87 | On Request | 849 | 0.000 | 91.73 Lakhs*Onwards |
Are you in search of property in Pune? Explore the perfect apartments at Radhika Residency in vishrantwadi! Whether you’re looking for a 2 or 2.5 BHK apartment, you can find the ideal property here. Don’t miss this incredible opportunity to find your dream home in Pune.
Undoubtedly, smart and luxurious homes are a dream for anyone living in a vibrant city like Pune, especially with a riverscape view.















Pune has become one of India’s fastest-growing real estate destinations, especially for investors looking for stable rental income and long-term prop...
Read MorePune has become one of the most attractive cities for real estate investment in India, especially for buyers looking for rental income and long-term pr...
Read More