MahaRERA:https://maharera.mahaonline.gov.in
| Project QR Code | Maharera No. | Project/Phase Name | Proposed Date Of Completion | Total area (sq.m) |
Total Acre | Total Units | Total Tower |
|---|---|---|---|---|---|---|---|
| P52100045392 | Wing B | April - 2024 | 2590.44 | 0.64 | 80 | 1 |
| Rera No. : P52100045392 |
| Project Name | Proposed Date Of Completion |
Total Units |
|---|---|---|
| Wing B | April - 2024 | 80 |
| Total area (sq.m) |
Total Acre | Total Building |
| 2590.44 | 0.64 | 1 |
| Type | Project/Phase Name | Tower | Total Carpet area (sq.m) |
Basic Carpet area (sq.m) |
Total Carpet area (sq.ft) |
Basic Carpet area (sq.ft) |
All Inclusive Price (INR) |
|---|---|---|---|---|---|---|---|
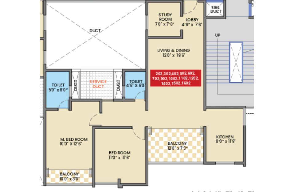
| 2 BHK | Wing B | 1 | 67.26 | On Request | 724 | 0.000 | 88 Lakhs*Onwards |
| 2 BHK | Wing B | 1 | 74.23 | On Request | 799 | 0.000 | 1.1 Cr*Onwards |
| 2.5 BHK | Wing B | 1 | 90.86 | On Request | 978 | 0.000 | 1.3 Cr*Onwards |
| 3 BHK | Wing B | 1 | 99.22 | On Request | 1068 | 0.000 | 1.5 Cr*Onwards |
| 3 BHK | Wing B | 1 | 120.40 | On Request | 1296 | 0.000 | 1.85 Cr*Onwards |
At Sahadeo Polaris, one of the most luxurious lifestyles awaits you with the perfect location, beautifully landscaped spaces, superbly designed 2, 2.5, 3 & 3.5 BHK homes with zero space wastage and a plethora of luxury rooftop amenities. The property is strategically located near the historically significant Someshwar Temple and the beautiful Gram Sanskruti Udyaan. In short, the accessibility to these iconic spots makes Polaris a coveted property. In addition, the elegant hill views of Baner and living a few minutes away from the necessities ensures that you enjoy one of Pune’s most spectacular lifestyles at Sahadeo Polaris. Come choose Sahadeo Polaris as your new abode.
Hospitals
Transport















The modern investor seeks more than just a home—they seek growth, reliability, and a steady stream of returns. This is precisely what Niwaas Studio b...
Read MoreIn a city where every square foot matters, Niwaas Studio by Kele Realcorp brings a refreshing concept of space efficiency blended with modern luxury. L...
Read More