MahaRERA:https://maharera.mahaonline.gov.in
| Project QR Code | Maharera No. | Project/Phase Name | Proposed Date Of Completion | Total area (sq.m) |
Total Acre | Total Units | Total Tower |
|---|---|---|---|---|---|---|---|
| Building A | Building A | December - 2024 | 2299.4 | 0.57 | 24 | 1 |
| Rera No. : Building A |
| Project Name | Proposed Date Of Completion |
Total Units |
|---|---|---|
| Building A | December - 2024 | 24 |
| Total area (sq.m) |
Total Acre | Total Building |
| 2299.4 | 0.57 | 1 |
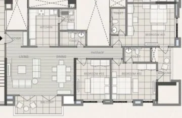
| Type | Project/Phase Name | Tower | Total Carpet area (sq.m) |
Basic Carpet area (sq.m) |
Total Carpet area (sq.ft) |
Basic Carpet area (sq.ft) |
All Inclusive Price (INR) |
|---|---|---|---|---|---|---|---|
| 3 BHK | Building A | 1 | 123.65 | On Request | 1331 | 0.000 | 2.45 Cr*Onwards |
Presenting Advay Homes, a project by Shaliggram Real Estate Pvt. Ltd. where
architectural excellence and contemporary design unite to offer a seamless
modern living experience.
Advay Homes stands as a pioneering milestone in the realm of real estate,
proudly marking the foray venture of GB Rubber Group in this industry. With a
40-year legacy of excellence and innovation in the automotive sector, GB
Rubber Group has seamlessly transitioned its expertise into the real estate
world, solidifying its commitment to quality and value.
Advay Homes set new standards in construction, lifestyle, and amenities,
embodying the principle "We deliver what we promise." With contemporary
design, sustainability, and unwavering quality, it charts a course for future
projects based on precision, innovation, and enduring value.
HOSPITAL
MALL & MULTIPLEX
EDUCATION
CONNECTIVITY















For modern homebuyers, the perfect residence isn’t just about luxury or space—it’s about location, convenience, and tranquility. Optima Residency...
Read MorePune’s real estate market has evolved into one of India’s most promising investment destinations, thanks to its growing IT hubs, excellent connecti...
Read More