MahaRERA:https://maharera.mahaonline.gov.in
| Project QR Code | Maharera No. | Project/Phase Name | Proposed Date Of Completion | Total area (sq.m) |
Total Acre | Total Units | Total Tower |
|---|---|---|---|---|---|---|---|
| P52100026618 | Building A, B | December - 2025 | 4600 | 1.14 | 63 | 2 |
| Rera No. : P52100026618 |
| Project Name | Proposed Date Of Completion |
Total Units |
|---|---|---|
| Building A, B | December - 2025 | 63 |
| Total area (sq.m) |
Total Acre | Total Building |
| 4600 | 1.14 | 2 |
| Type | Project/Phase Name | Tower | Total Carpet area (sq.m) |
Basic Carpet area (sq.m) |
Total Carpet area (sq.ft) |
Basic Carpet area (sq.ft) |
All Inclusive Price (INR) |
|---|---|---|---|---|---|---|---|
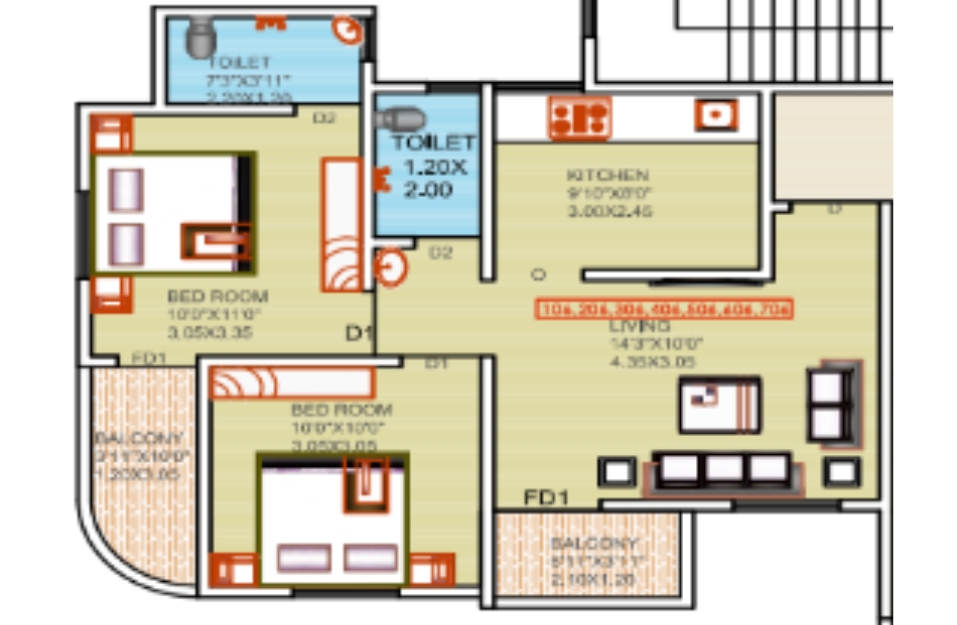
| 1 BHK | Building A, B | 2 | 36.70 | On Request | 395 | 0.000 | 19.43 Lakhs*Onwards |
| 1 BHK | Building A, B | 2 | 41.99 | On Request | 452 | 0.000 | 21.81 Lakhs*Onwards |
| 2 BHK | Building A, B | 2 | 58.25 | On Request | 627 | 0.000 | 30.29 Lakhs*Onwards |
Discover the perfect blend of affordability, comfort, and celebration at Shri Sai Park, Khed offering 1 & 2 BHK residences that redefine the way you buy your dream home. Located at the main chowk in Nighoje, with a 120-ft road touch, Shri Sai Park by Shri Samarth Group stands as the first project closest to PCMC in Nighoje.
Key Features:
Amenities That Enrich Your Lifestyle:
Special Features of the Project:
Location Advantage:
Shri Sai Park by Shri Samarth Group combines affordability with comfort and celebration. Your dream home awaits at Shri Sai Park, Nighoje, Khed, Pune where every element is designed to transform your dreams into reality.















In Pune’s premium real estate market, only a few developments go beyond luxury housing and truly establish themselves as landmark addresses. Tribeca ...
Read MoreIn the evolving luxury real estate landscape of Pune, Tribeca The Everett emerges as a rare architectural statement that blends privacy, design excelle...
Read More