MahaRERA:https://maharera.mahaonline.gov.in
| Project QR Code | Maharera No. | Project/Phase Name | Proposed Date Of Completion | Total area (sq.m) |
Total Acre | Total Units | Total Tower |
|---|---|---|---|---|---|---|---|
| P52100080310 | Terra Casa -Villa | December - 2027 | 5236.19 | 1.29 | 25 | 0 |
| Rera No. : P52100080310 |
| Project Name | Proposed Date Of Completion |
Total Units |
|---|---|---|
| Terra Casa -Villa | December - 2027 | 25 |
| Total area (sq.m) |
Total Acre | Total Building |
| 5236.19 | 1.29 | 0 |
| Type | Project/Phase Name | Tower | Total Carpet area (sq.m) |
Basic Carpet area (sq.m) |
Total Carpet area (sq.ft) |
Basic Carpet area (sq.ft) |
All Inclusive Price (INR) |
|---|---|---|---|---|---|---|---|
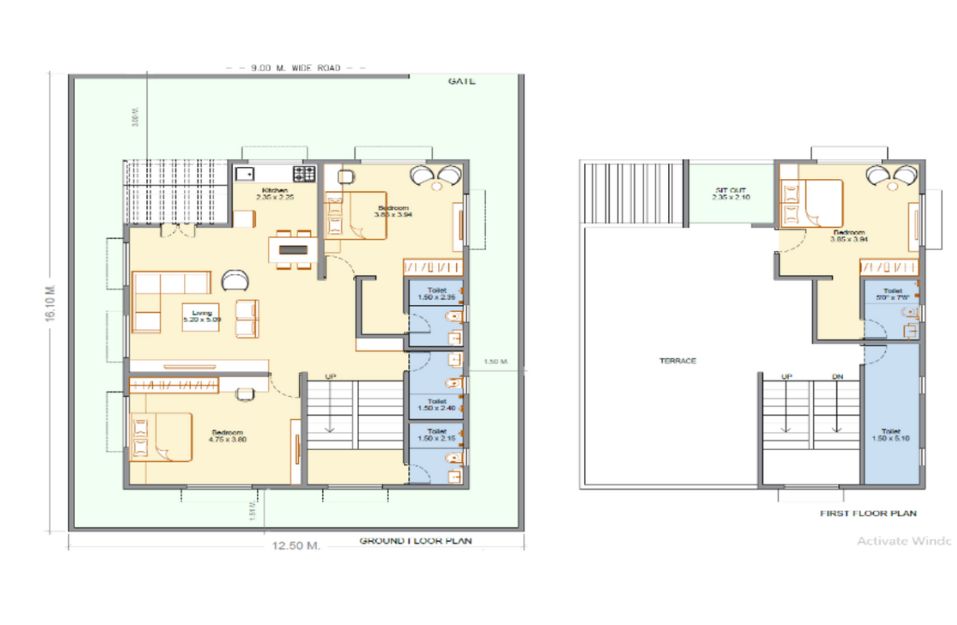
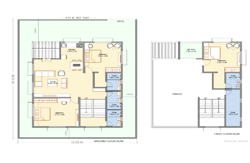
| 3 BHK Villa | Terra Casa - Villa | 1 | 103.59 | On Request | 1115 | 0.000 | 1.35 Cr*Onwards |
| 3 BHK Villa | Terra Casa - Villa | 0 | 310.95 | On Request | 3347 | 0.000 | 1.9 Cr*Onwards |
It draws the eye, evokes desires and entices aspiration with its global standards of luxury. fashion and lifestyle. Its villas, designed by FTV, accommodate a few and draw the envy of everyone else. A seat at The f Row isn't for just anyone. But then again, you've never been just anyone, have you?
Every curve, every contour, every element at The f Row is designed to tempt. Here, exclusivity is felt in the hush of your private villa, the touch of land that's entirely yours, the pull of the hills just minutes away. This is where your desire settles in, and never wants to leave.
In the untouched landscape of Paud, Mulshi, lies the The f Row, where style and solitude melt into each other. A 45-minute drive from the city, it is seamlessly connected to recreational and business hubs in and around Pune.















Mont Vert Belview Bhugaon Pune is emerging as a strong contender in Pune’s real estate market due to its strategic location and evolving infrastructu...
Read MoreEntrepreneurs today are not just looking for office space—they are searching for growth ecosystems. Menlo Codename Power Play Hinjewadi Pune stands o...
Read More