MahaRERA:https://maharera.mahaonline.gov.in
| Project QR Code | Maharera No. | Project/Phase Name | Proposed Date Of Completion | Total area (sq.m) |
Total Acre | Total Units | Total Tower |
|---|---|---|---|---|---|---|---|
| P52100051396 | A,B,C wing | December - 2025 | 4188.27 | 1.03 | 98 | 3 |
| Rera No. : P52100051396 |
| Project Name | Proposed Date Of Completion |
Total Units |
|---|---|---|
| A,B,C wing | December - 2025 | 98 |
| Total area (sq.m) |
Total Acre | Total Building |
| 4188.27 | 1.03 | 3 |
| Type | Project/Phase Name | Tower | Total Carpet area (sq.m) |
Basic Carpet area (sq.m) |
Total Carpet area (sq.ft) |
Basic Carpet area (sq.ft) |
All Inclusive Price (INR) |
|---|---|---|---|---|---|---|---|
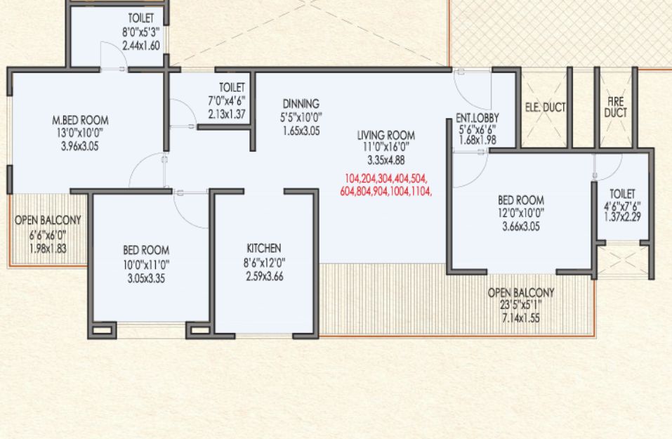
| 3 BHK | Trio Alpha | 1 | 102.19 | On Request | 1100 | 0.000 | 1.33 Cr*Onwards |
| 4 BHK | Trio Alpha | 3 | 173.73 | On Request | 1870 | 0.000 | 2.32 Cr*Onwards |
Trio Alpha is the brainchild of 'Trio Spaces'. Where in Trio represents brand and Alpha is the first Greek alphabet represents the 1st project under the banner of well established and trusted developer of Pune
This is where ultimate luxury begins. Presenting "TRIO ALPHA" by 'TRIO SPACES', Premium apartments that will sweep you of your feet. A project for the Ones who prefer to live in the upper crust. With just 2 Ultra Spacious 4BHK homes on each Floor, which is nothing short of your private oasis.
What is a life of luxury without incredulous convenience? At Trio Alpha, we are equipping you with an all-access pass to the rest of the city, with advanced connectivity and proximity to key landmarks in and around upcoming suburbs of Pune . Enjoy the convenience of being close to work, schools, and shopping centers while still being nestled in a serene and tranquil neighbourhood.
CONNECTIVITY
HOSPITAL
COLLEGE
SCHOOL
MALL















In today’s fast-paced lifestyle, modern homebuyers expect more than four walls—they seek a holistic living experience powered by comfort, convenien...
Read MoreChoosing the right home as a working professional goes beyond just floor plans and pricing. Today’s workforce looks for comfort, convenience, strong ...
Read More