MahaRERA:https://maharera.mahaonline.gov.in
| Project QR Code | Maharera No. | Project/Phase Name | Proposed Date Of Completion | Total area (sq.m) |
Total Acre | Total Units | Total Tower |
|---|---|---|---|---|---|---|---|
| Tower A & B | Vishnu Crown | December - 2028 | 11319 | 2.8 | 75 | 2 |
| Rera No. : Tower A & B |
| Project Name | Proposed Date Of Completion |
Total Units |
|---|---|---|
| Vishnu Crown | December - 2028 | 75 |
| Total area (sq.m) |
Total Acre | Total Building |
| 11319 | 2.8 | 2 |
| Type | Project/Phase Name | Tower | Total Carpet area (sq.m) |
Basic Carpet area (sq.m) |
Total Carpet area (sq.ft) |
Basic Carpet area (sq.ft) |
All Inclusive Price (INR) |
|---|---|---|---|---|---|---|---|
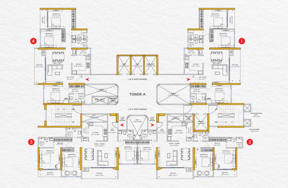
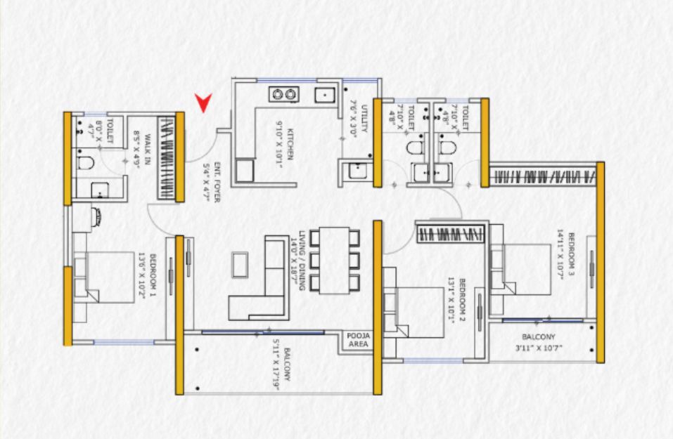
| 2 BHK | Tower A & B | 1 | 119.85 | On Request | 1290 | 0.000 | 1.64 Cr*Onwards |
| 3 BHK | Tower A & B | 1 | 122.82 | On Request | 1322 | 0.000 | 1.68 Lakhs*Onwards |
In crowded urban India, true luxury is space and privacy. The Crown redefines city living with a low-density design where less truly means more
THE PHILOSOPHY OF SPACE: Unlike typical high-density projects, The Crown builds just one tower over three acres—prioritizing open space over profit to offer rare breathing room in urban India.
MATHEMATICAL EXCLUSIVITY With only 220 residences across 3 acres, The Crown offers low-density living with more open spaces, less internal traffic, greater privacy, and the comfort of apartment living in a serene, estate-like setting
EXCLUSIVE AMENITY ACCESS With 50+ amenities spread across three levels serving only 220 families, every facility feels personal rather than public. Your swimming sessions, gym workouts, and social gatherings happen in spaces that never feel crowded or compromised.
FUTURE-PROOF INVESTMENT As urban spaces become increasingly dense, low-density developments like The Crown become progressively more valuable. This isn't just about current lifestyle—it's about owning something that becomes more precious with time. The Crown proves that in luxury real estate, sometimes the most valuable thing you can offer is what others cannot: space, privacy, and the peace of mind that comes with true exclusivity.
Vishnu Housing brings decades of proven expertise with 7+ successful residential projects and over 3,000 satisfied customers, we represent reliability in Pune's real estate landscape.As part of one of Pune's oldest and most established business conglomerates, Vishnu Housing ensures financial stability and guaranteed on-time delivery. Our diversified portfolio extends beyond residential development into the hospitality sector, including the renowned Sentosa Resort.















Pune has become one of India’s fastest-growing real estate destinations, especially for investors looking for stable rental income and long-term prop...
Read MorePune has become one of the most attractive cities for real estate investment in India, especially for buyers looking for rental income and long-term pr...
Read More