MahaRERA:https://maharera.mahaonline.gov.in
| Project QR Code | Maharera No. | Project/Phase Name | Proposed Date Of Completion | Total area (sq.m) |
Total Acre | Total Units | Total Tower |
|---|---|---|---|---|---|---|---|
| P52100047184 | Phase -I Wing A & B | December - 2026 | 2898.59 | 0.72 | 166 | 2 |
| Rera No. : P52100047184 |
| Project Name | Proposed Date Of Completion |
Total Units |
|---|---|---|
| Phase -I Wing A & B | December - 2026 | 166 |
| Total area (sq.m) |
Total Acre | Total Building |
| 2898.59 | 0.72 | 2 |
| Type | Project/Phase Name | Tower | Total Carpet area (sq.m) |
Basic Carpet area (sq.m) |
Total Carpet area (sq.ft) |
Basic Carpet area (sq.ft) |
Price (INR) |
|---|---|---|---|---|---|---|---|
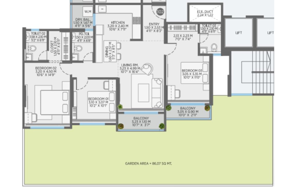
| 2 BHK | Phase -I Wing A & B | 2 | 71.54 | On Request | 770 | 0.000 | 1.07 Cr*Onwards |
| 3 BHK | Phase -I Wing A & B | 2 | 100.06 | On Request | 1077 | 0.000 | 1.5 Cr*Onwards |
| 3 BHK | Phase -I Wing A & B | 2 | 101.45 | On Request | 1092 | 0.000 | 1.52 Cr*Onwards |
Luxuriously Perfect Vibe
Home is more than just a place; it's a feeling, a connection, and an emotion. It's a cherished dream that varies for each individual. However, amidst these differences, there's a constant—the warmth and vibe that make it uniquely yours. Aura Waters by Ranawat Group embodies the perfect lifestyle vibe, a carefully conceptualized and configured idea designed to match your dreams and bring solace and vigor to your life.
Sustainable Living
Aura Waters, Wadgaon-Budruk, Pune, is not just a home; it's a commitment to responsible living. Designed with a focus on energy conservation and reducing the carbon footprint, this lifestyle is made possible through thoughtful elements like larger openings for cross ventilation and ample natural light. It's a sustainable haven that harmonizes with the environment.
Overall Well-Being
Experience a holistic vibe at Aura Waters Sinhagad Road, Pune, where every detail contributes to your overall well-being. From the conscious use of colors to promote a positive atmosphere, indoor plants for cleaner air, natural materials, and amenities designed for relaxation and rejuvenation, Aura Waters, Pune, ensures the well-being of your mind, body, and soul. It's a sanctuary crafted to soothe your senses.
Thoughtful Design
Step into Vastu-compliant homes at Aura Waters, Sinhagad Road, Pune, where privacy takes precedence. The well-planned layout maximizes space utilization, minimizing circulation spaces both within the homes and amenity areas. This efficiency ensures more significant individual spaces, giving you a sense of openness and freedom within your home.
Sublime Luxury
Aura Waters, Sinhagad Road, Pune, adds a dimension of luxury to Sinhagad Road, offering spacious 2 and 3 BHK apartments with carefully curated amenities and chic specifications. Life at Aura Waters is characterized by serenity, immersion, and happiness—a harmonious blend of lifestyle and comfort.
The Intersection of Quiet and Liveliness
Nestled in the rapidly expanding location of Sinhagad Road, Aura Waters, Wadgaon-Budruk, Pune, offers a mesmerizing blend of tranquility and vigor. The design promotes both physical and mental well-being, creating a seamless flow of modern, contemporary living. The homes are in harmony with nature, fostering sustainable and responsible living.
About Ranawat Group
With a legacy spanning 30 years, Ranawat Group, Pune is committed to bringing innovative solutions that add value to people's lives. Inclusivity, sustainability, and responsibility towards the ecosystem are evident in every project undertaken by the group. The customer-centric approach aims to create joyful experiences with quality, timeliness, and transparency at its core. Renowned for quality construction, Ranawat Group continuously sets benchmarks for excellence in the real estate industry.
In conclusion, Aura Waters by Ranawat Group is not just a residential space; it's a lifestyle choice that encapsulates luxury, sustainability, and well-being. It's a place where every detail is carefully curated to provide an unmatched living experience. Experience the perfect vibe, sustainable living, overall well-being, thoughtful design, sublime luxury, and the intersection of quiet and liveliness at Aura Waters—your gateway to an elevated lifestyle.
Ranawat Group, founded in 1985 by Mr. Vilas Jain, has grown from a contracting business to a major player in the real estate industry. Under Mr. Vishal Jain's direction, the organization takes a modern approach, promoting innovation and value addition in all projects. Ranawat Group incorporates inclusivity, sustainability, and environmental responsibility into its projects. With a significant emphasis on client satisfaction, the organization stresses quality, responsiveness, and transparency. Ranawat Group is well-known for its high-quality construction and technical competence. It continually establishes industry standards. With honesty and creativity at its core, the organization stays committed to providing extraordinary experiences and significantly impacting the real estate environment.
ENTERTAINMENT & SHOPPING
SCHOOLS & COLLEGES
TRANSPORT
HEALTHCARE















The modern investor seeks more than just a home—they seek growth, reliability, and a steady stream of returns. This is precisely what Niwaas Studio b...
Read MoreIn a city where every square foot matters, Niwaas Studio by Kele Realcorp brings a refreshing concept of space efficiency blended with modern luxury. L...
Read More