MahaRERA:https://maharera.mahaonline.gov.in
| Project QR Code | Maharera No. | Project/Phase Name | Proposed Date Of Completion | Total area (sq.m) |
Total Acre | Total Units | Total Tower |
|---|---|---|---|---|---|---|---|
| PR1260002501621 | Saajgiri Nanded City A , B , C , D , E , F , G , H . | August - 2029 | 33765.00 | 8.34 | 648 | 8 |
| Rera No. : PR1260002501621 |
| Project Name | Proposed Date Of Completion |
Total Units |
|---|---|---|
| Saajgiri Nanded City A , B , C , D , E , F , G , H . | August - 2029 | 648 |
| Total area (sq.m) |
Total Acre | Total Building |
| 33765.00 | 8.34 | 8 |
| Type | Project/Phase Name | Tower | Total Carpet area (sq.m) |
Basic Carpet area (sq.m) |
Total Carpet area (sq.ft) |
Basic Carpet area (sq.ft) |
All Inclusive Price (INR) |
|---|---|---|---|---|---|---|---|
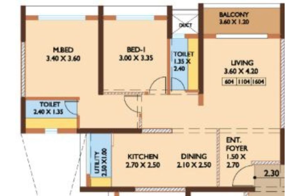
| 3 BHK | Saajgiri Nanded City A , B , C , D , E , F , G , H . | 8 | 126.36 | 0.00 | 1360.14 | 0.000 | 1.6 Cr*Onwards |
Saajgiri Nanded City
Saajgiri, a Pare Lifestyle Experience
This is your chance to become a part of the ever-growing Nanded City, Pune family. This is your chance to own smartly planned 2 & 3 BHK residences with ample space, modern amenities, and township-living benefits. With more carpet area and well-designed layouts, Saajgiri becomes a perfect choice for growing families who value space and comfort.
Evolved Living Inside A Thriving Township
At Saajgiri, homes are thoughtfully aligned with outdoor zones, creating an easy connection between indoor living and open surroundings. Landscaped pockets, community areas, and recreational features turn everyday routines into richer experiences, while the township ecosystem supports everything from essential needs to leisure time.















In Pune’s premium real estate market, only a few developments go beyond luxury housing and truly establish themselves as landmark addresses. Tribeca ...
Read MoreIn the evolving luxury real estate landscape of Pune, Tribeca The Everett emerges as a rare architectural statement that blends privacy, design excelle...
Read More