MahaRERA:https://maharera.mahaonline.gov.in
| Project QR Code | Maharera No. | Project/Phase Name | Proposed Date Of Completion | Total area (sq.m) |
Total Acre | Total Units | Total Tower |
|---|---|---|---|---|---|---|---|
| P52100077848 | Wing-A, Wing-B | June - 2028 | 2550 | 0.63 | 93 | 2 |
| Rera No. : P52100077848 |
| Project Name | Proposed Date Of Completion |
Total Units |
|---|---|---|
| Wing-A, Wing-B | June - 2028 | 93 |
| Total area (sq.m) |
Total Acre | Total Building |
| 2550 | 0.63 | 2 |
| Type | Project/Phase Name | Tower | Total Carpet area (sq.m) |
Basic Carpet area (sq.m) |
Total Carpet area (sq.ft) |
Basic Carpet area (sq.ft) |
All Inclusive Price (INR) |
|---|---|---|---|---|---|---|---|
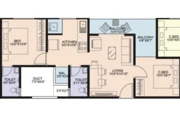
| 2 BHK | Wing-A, Wing-B | 2 | 68.10 | On Request | 733 | 0.000 | 57.76 Lakhs*Onwards |
| 2 BHK | Wing-A, Wing-B | 2 | 55.28 | On Request | 595 | 0.000 | 47.08 Lakhs*Onwards |
Imagine a world crafted just for you - an address that blends the comfort of contemporary homes with the pulse of new-age business. Welcome to Kashi Nagari, a project at the heart of Moshi, seamlessly combining stylish 2 BHK ats with vibrant commercial spaces. For residents, it’s a lifestyle of convenience with everything at your doorstep. For businesses, it’s a built-in audience and the prestige of a thriving community. So whether you seek the comfort of home or the energy of business, Kashi Nagari is where both come to life, together.
Pimpri Railway Station:-12km
Pune Airport:-17km
Pune Railway Station:-21km
Gangotri Hospital:-850meter
Shree Multispeciality Hospital:-2km
PCMC Hospital:-4km
Accord Hospital:-5km
Bhosari MIDC:-8km
Tata Motors:-9km
Mahindra & Mahindra:-11km
SNBP International School:-4km
Sadhu Vaswani International School:-5km
Abhishek International School:-5km
Dr D.Y. Patil Public School:-10km
The Gold elds:-6km
City One Mall:-10km















In Pune’s premium real estate market, only a few developments go beyond luxury housing and truly establish themselves as landmark addresses. Tribeca ...
Read MoreIn the evolving luxury real estate landscape of Pune, Tribeca The Everett emerges as a rare architectural statement that blends privacy, design excelle...
Read More