MahaRERA:https://maharera.mahaonline.gov.in
| Project QR Code | Maharera No. | Project/Phase Name | Proposed Date Of Completion | Total area (sq.m) |
Total Acre | Total Units | Total Tower |
|---|---|---|---|---|---|---|---|
| P52100051650 | Landson Shine | December - 2026 | 3312 | 0.82 | 150 | 1 |
| Rera No. : P52100051650 |
| Project Name | Proposed Date Of Completion |
Total Units |
|---|---|---|
| Landson Shine | December - 2026 | 150 |
| Total area (sq.m) |
Total Acre | Total Building |
| 3312 | 0.82 | 1 |
| Type | Project/Phase Name | Tower | Total Carpet area (sq.m) |
Basic Carpet area (sq.m) |
Total Carpet area (sq.ft) |
Basic Carpet area (sq.ft) |
All Inclusive Price (INR) |
|---|---|---|---|---|---|---|---|
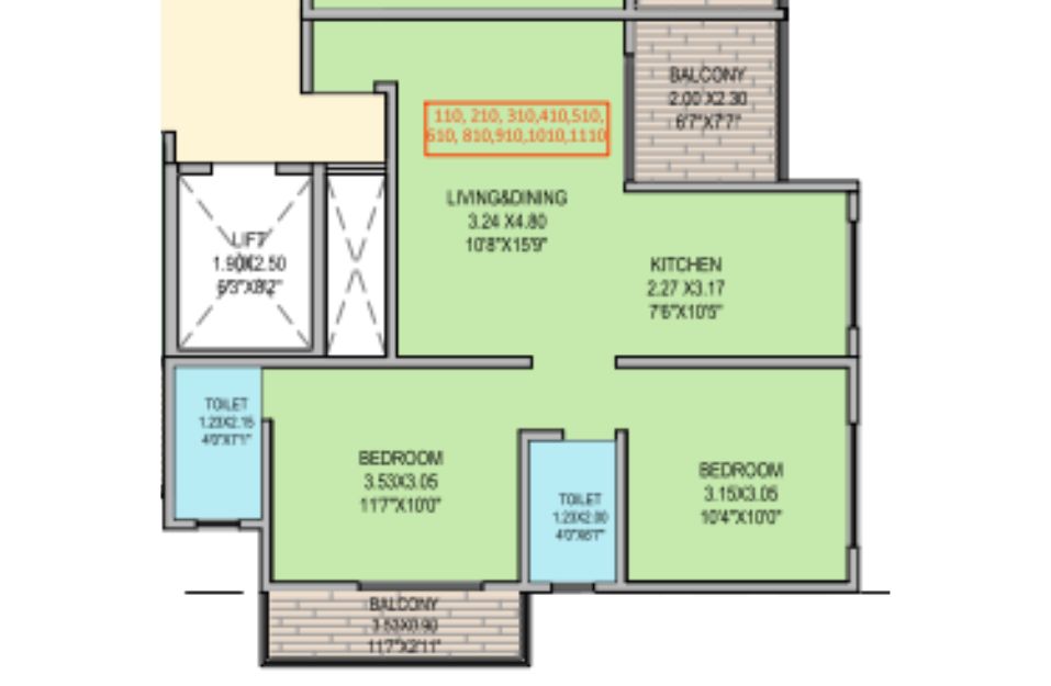
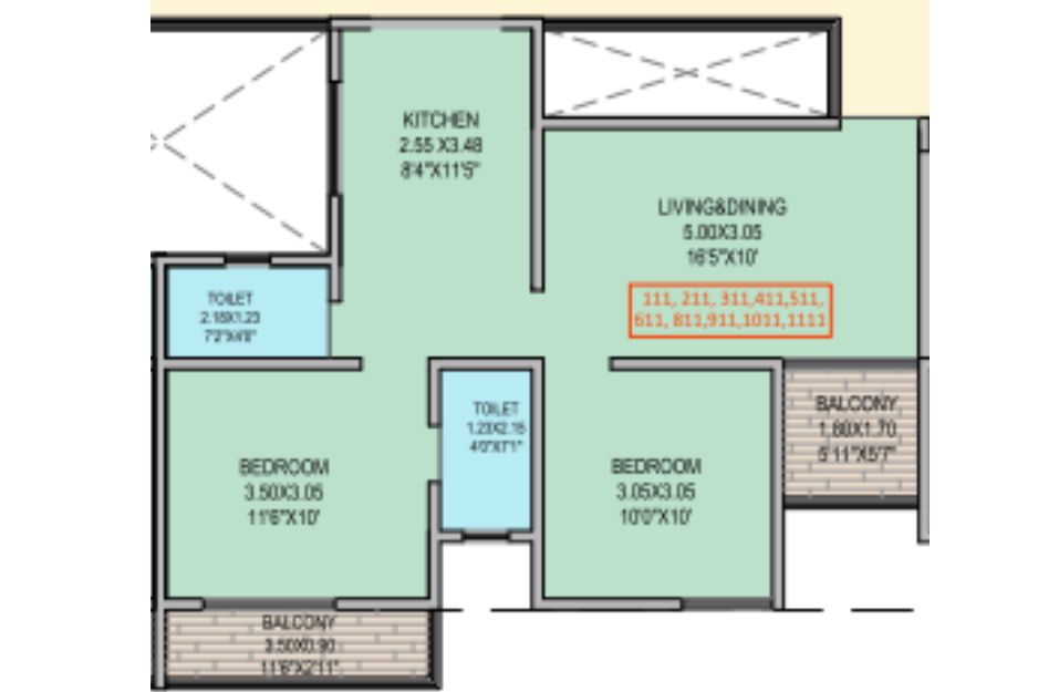
| 2 BHK | Landson Shine | 1 | 57.60 | On Request | 620 | 0.000 | 40.5 Lakhs*Onwards |
| 2 BHK | Landson Shine | 1 | 60.11 | On Request | 647 | 0.000 | 42.29 Lakhs*Onwards |
| 2 BHK | Landson Shine | 1 | 62.06 | On Request | 668 | 0.000 | 43.59 Lakhs*Onwards |
A distinguished creation by Landson Properties, Chikhali, Pune, that transcends the ordinary and invites you to own a home that is truly a league apart. Prepare to transform your life in unprecedented ways, evolving to the next level and discovering a better version of yourself within the comforts of your own home.
At Landson Shine, we present more than just a residence; it's a haven where joy sparkles abundantly for you and your family. It's time to embrace a new way of life, where every corner echoes with smiles and a sense of fulfillment that you truly deserve.
Crafted with precision and passion, Landson Shine Chikhali reflects our commitment to perfection. Every nook and corner exudes class, envisioned and brought to life by the best hands in the industry. Immerse yourself in a living experience that goes beyond mere style. At Landson Shine, Pune, you'll bask in optimum sunlight, enjoy maximum ventilation, and relish an ambiance that resonates with quality.
As you step into Landson Shine,by Landson Properties, Pune, be prepared to be allured by spaces that are thoughtfully designed for comfort & elegance. It's more than just a home; it's a canvas where you'll paint timeless moments with your loved ones, creating cherished memories every single day.
Experience the epitome of refined living at Landson Shine, your sanctuary of joy and tranquility. Seize the opportunity to make this extraordinary residence your own, and let the radiance of Landson Shine by Landson Properties, Chikhali, Pune, brighten your life. Your perfect home awaits—welcome to a life well lived!
Our business at Landson Properties is understanding individuals' desires. We know that being a mortgage holder implies having your very own position, a safe house where individuals make memories and carry on with their lives, as opposed to just buying a property. That is the reason we put everything into every single house we develop, ensuring astounding craftsmanship, very carefully considered final details, and a genuine incentive for your well-deserved cash. Our authoritative goal is to gain your sureness and trust by staying faithful to our commitment to each and every undertaking we embrace. We can assist you with finding the ideal home, whether you're searching in Bangalore, Mumbai, or somewhere else. Let Land-son Properties help you as you seek after house purchasing.















Modern homebuyers and investors are increasingly attracted to projects that offer more than just compact living spaces. What defines true residential v...
Read MoreThe demand for compact, well-managed, and income-focused assets has grown rapidly in India’s major real estate markets. Pune, in particular, has ...
Read More