MahaRERA:https://maharera.mahaonline.gov.in
| Project QR Code | Maharera No. | Project/Phase Name | Proposed Date Of Completion | Total area (sq.m) |
Total Acre | Total Units | Total Tower |
|---|---|---|---|---|---|---|---|
| P52100048584 | Ratan Vihar | December - 2024 | 540 | 0.13 | 15 | 1 |
| Rera No. : P52100048584 |
| Project Name | Proposed Date Of Completion |
Total Units |
|---|---|---|
| Ratan Vihar | December - 2024 | 15 |
| Total area (sq.m) |
Total Acre | Total Building |
| 540 | 0.13 | 1 |
| Type | Project/Phase Name | Tower | Total Carpet area (sq.m) |
Basic Carpet area (sq.m) |
Total Carpet area (sq.ft) |
Basic Carpet area (sq.ft) |
All Inclusive Price (INR) |
|---|---|---|---|---|---|---|---|
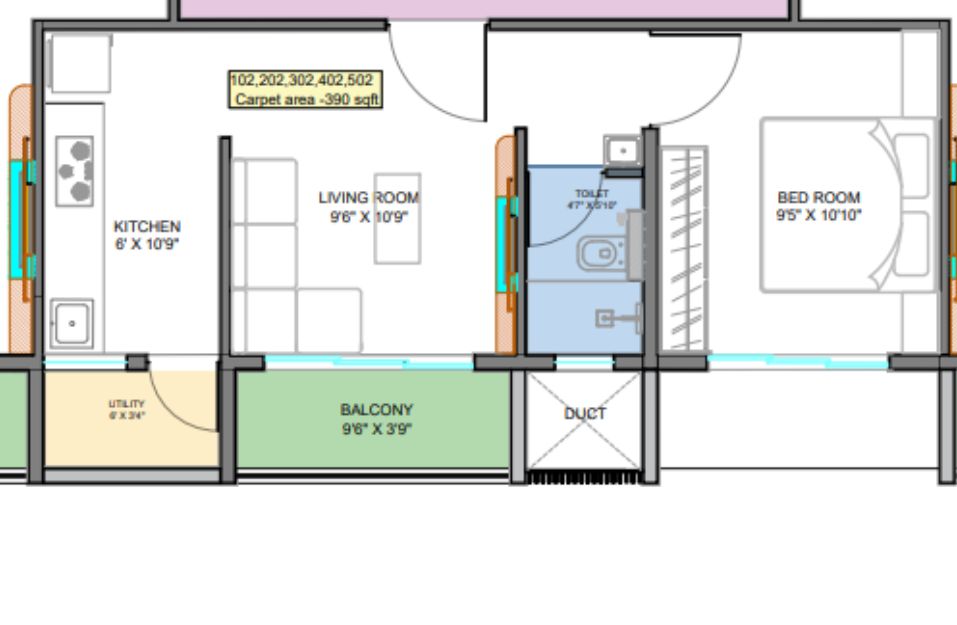
| 1 BHK | Ratan Vihar | 1 | 36.23 | On Request | 390 | 0.000 | 55.33 Lakhs*Onwards |
| 2 BHK | Ratan Vihar | 1 | 64.57 | On Request | 695 | 0.000 | 95.26 Lakhs*Onwards |
| 3 BHK | Ratan Vihar | 1 | 85.01 | On Request | 915 | 0.000 | 1.24 Cr*Onwards |
Ratan Vihar
Ratan Vihar
Ratan Vihar















In Pune’s premium real estate market, only a few developments go beyond luxury housing and truly establish themselves as landmark addresses. Tribeca ...
Read MoreIn the evolving luxury real estate landscape of Pune, Tribeca The Everett emerges as a rare architectural statement that blends privacy, design excelle...
Read More