MahaRERA:https://maharera.mahaonline.gov.in
| Project QR Code | Maharera No. | Project/Phase Name | Proposed Date Of Completion | Total area (sq.m) |
Total Acre | Total Units | Total Tower |
|---|---|---|---|---|---|---|---|
| P52100053371 | Building B | December - 2026 | 3990 | 0.99 | 58 | 1 |
| Rera No. : P52100053371 |
| Project Name | Proposed Date Of Completion |
Total Units |
|---|---|---|
| Building B | December - 2026 | 58 |
| Total area (sq.m) |
Total Acre | Total Building |
| 3990 | 0.99 | 1 |
| Type | Project/Phase Name | Tower | Total Carpet area (sq.m) |
Basic Carpet area (sq.m) |
Total Carpet area (sq.ft) |
Basic Carpet area (sq.ft) |
All Inclusive Price (INR) |
|---|---|---|---|---|---|---|---|
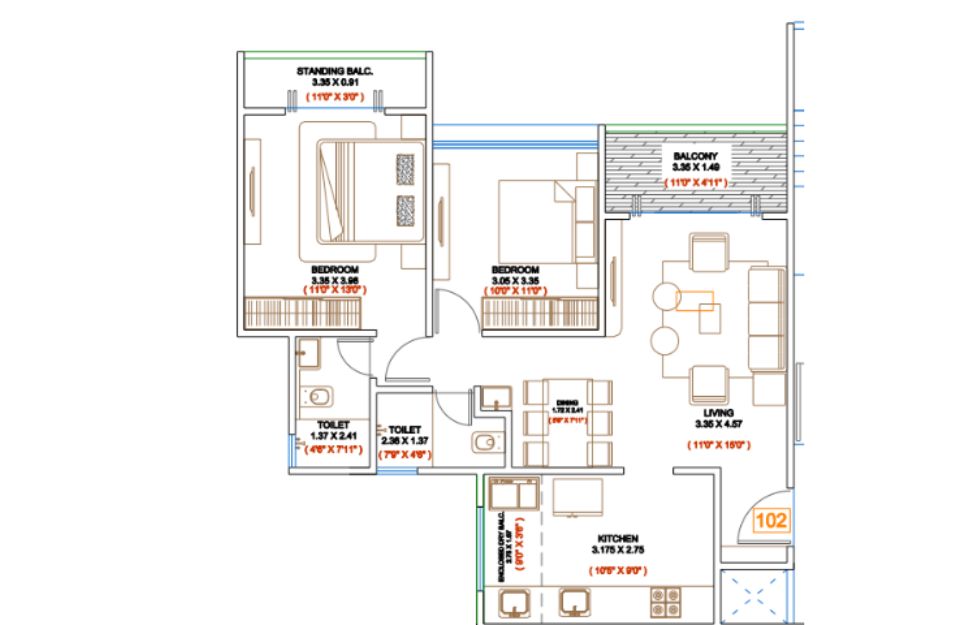
| 2 BHK | Krishna Austin | 1 | 77.11 | On Request | 830 | 0.000 | 1.08 Cr*Onwards |
| 2 BHK | Krishna Austin | 1 | 82.68 | On Request | 890 | 0.000 | 1.19 Cr*Onwards |
| 3 BHK | Krishna Austin | 1 | 105.54 | On Request | 1136 | 0.000 | 1.5 Cr*Onwards |
| 3 BHK | Krishna Austin | 1 | 106.47 | On Request | 1146 | 0.000 | 1.54 Cr*Onwards |
RARE IS AUSTIN.
A home enjoying all the perks of being in the city and yet offering a perpetual view of a soothing lake right in front.
No possibility of any construction coming up to interrupt the view.
Spread across an acre, Austin sports 2 glorious towers of 16 storeys. Enjoy spaciousness and total privacy as there are only 4 homes on each floor. Live an exclusive life with like-minded neighbours as all these homes are 2 & 3 BHK.
SOOTHE THE SOUL!
Take a dip any time of the day in your very own swimming pool, crafted tastefully and maintained painstakingly. It is made to make your life at Austin playful and energetic.
Krishna Group, a name that builds excellence in each of its creation. Right from the Inception, the group has been going strength to strength, crafting abodes that give a sense of exclusivity to every family residing there.
Our projects are an epitome of contemporary architectural design that blends luxury and usability. By all means, you will grow affectionate for your abode at Krishna Group.
We at Krishna Group are committed to deliver operational excellence and set a benchmark for customer satisfaction. The group endeavours to redefine real estate in Pune. The group's belief is that product and design innovation should be a seamless process that creates a path to excellence.
SCHOOLS
COLLEGES
WORK HUBS
HOSPITALS















Mont Vert Belview Bhugaon Pune is emerging as a strong contender in Pune’s real estate market due to its strategic location and evolving infrastructu...
Read MoreEntrepreneurs today are not just looking for office space—they are searching for growth ecosystems. Menlo Codename Power Play Hinjewadi Pune stands o...
Read More