MahaRERA:https://maharera.mahaonline.gov.in
| Project QR Code | Maharera No. | Project/Phase Name | Proposed Date Of Completion | Total area (sq.m) |
Total Acre | Total Units | Total Tower |
|---|---|---|---|---|---|---|---|
| P52100077942 | Tower A | June - 2027 | 3625 | 0.9 | 51 | 1 |
| Rera No. : P52100077942 |
| Project Name | Proposed Date Of Completion |
Total Units |
|---|---|---|
| Tower A | June - 2027 | 51 |
| Total area (sq.m) |
Total Acre | Total Building |
| 3625 | 0.9 | 1 |
| Type | Project/Phase Name | Tower | Total Carpet area (sq.m) |
Basic Carpet area (sq.m) |
Total Carpet area (sq.ft) |
Basic Carpet area (sq.ft) |
All Inclusive Price (INR) |
|---|---|---|---|---|---|---|---|
| Shops | Tower A | 1 | 99.41 | On Request | 1070 | 0.000 | 4.64 Cr*Onwards |
| Shops | Tower A | 1 | 136.29 | On Request | 1467 | 0.000 | 6.37 Cr*Onwards |
| Shops | Tower A | 1 | 208.29 | On Request | 2242 | 0.000 | 9.73 Cr*Onwards |
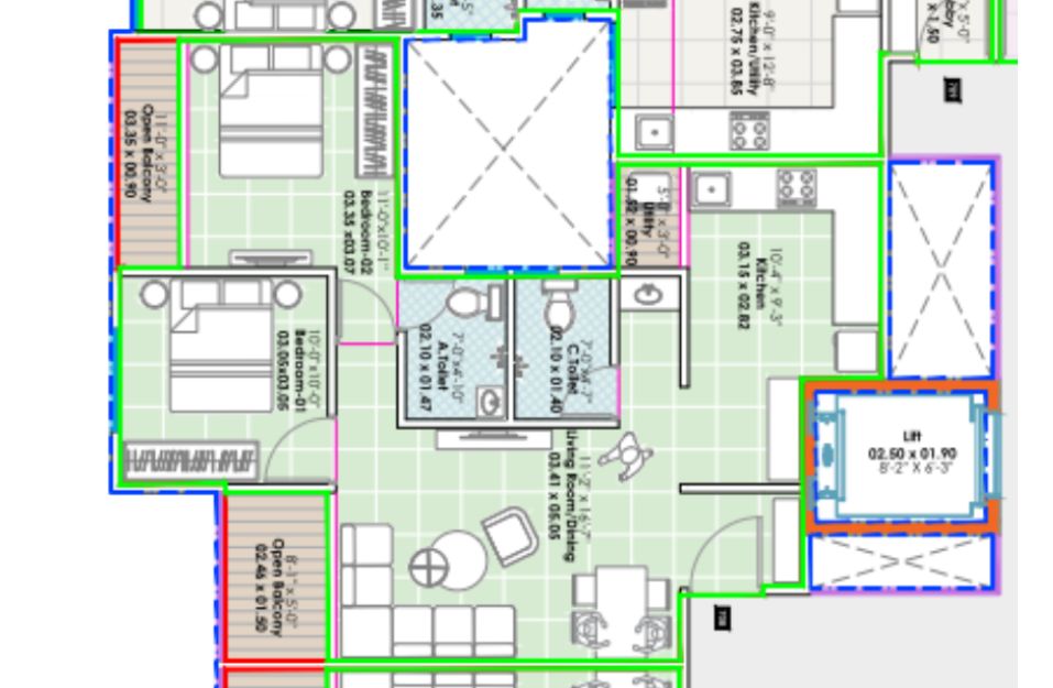
| 3 BHK | Tower A | 1 | 94.48 | On Request | 1017 | 0.000 | 99.99 Lakhs*Onwards |
| 2 BHK | Tower A | 1 | 73.02 | On Request | 786 | 0.000 | 79.65 Lakhs*Onwards |
Experience Santiago Skytown's unparalleled location benefits that place you at the epicenter of connectivity. With effortless access to major expressways and highways. you're always well-connected to key destinations.
This strategic positioning ensures you're never far from essential services and leisure activities, providing a lifestyle that's not only convenient but also superior, making Santiago Skytown the ultimate choice for those who value both proximity and prestige.
Immerse yourself in the elevated elegance of Santiago Skytown, where every detail is crafted to surpass expectations. Enjoy luxurious rooftop amenities such as a barbecue counter, community kitchen, and oxygen park, complemented by a range of indoor facilities including a gym, library, and multi-purpose hall.
Our project redefines what it means to live in style, offering a comprehensive suite of features designed to enhance every aspect of your daily life with sophistication and comfort.
Discover what sets Santiago Skytown apart with its forward-thinking design and innovative features. Our project combines strategic location benefits, cutting-edge amenities, and advanced security systems to offer a living experience that's truly ahead of the curve.
With eco-friendly initiatives like rainwater harvesting and comprehensive lifestyle facilities, Santiago Skytown represents a new paradigm in urban living, where every detail is meticulously crafted to provide a superior and sustainable quality of life.















Modern homebuyers and investors are increasingly attracted to projects that offer more than just compact living spaces. What defines true residential v...
Read MoreThe demand for compact, well-managed, and income-focused assets has grown rapidly in India’s major real estate markets. Pune, in particular, has ...
Read More