MahaRERA:https://maharera.mahaonline.gov.in
| Project QR Code | Maharera No. | Project/Phase Name | Proposed Date Of Completion | Total area (sq.m) |
Total Acre | Total Units | Total Tower |
|---|---|---|---|---|---|---|---|
| P52100049906 | Ankur | December - 2026 | 658.24 | 0.16 | 24 | 1 |
| Rera No. : P52100049906 |
| Project Name | Proposed Date Of Completion |
Total Units |
|---|---|---|
| Ankur | December - 2026 | 24 |
| Total area (sq.m) |
Total Acre | Total Building |
| 658.24 | 0.16 | 1 |
| Type | Project/Phase Name | Tower | Total Carpet area (sq.m) |
Basic Carpet area (sq.m) |
Total Carpet area (sq.ft) |
Basic Carpet area (sq.ft) |
All Inclusive Price (INR) |
|---|---|---|---|---|---|---|---|
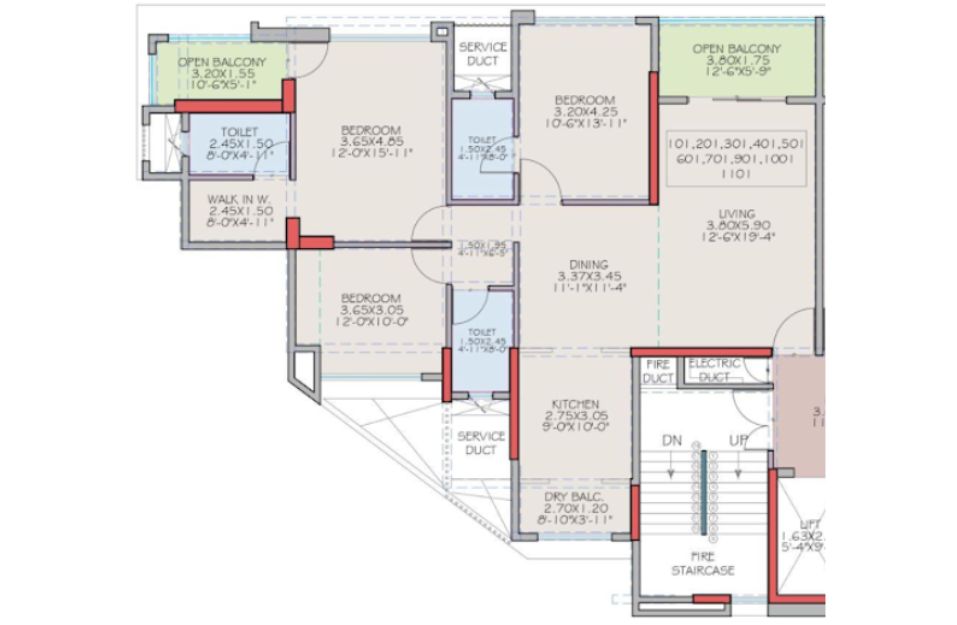
| 3 BHK | Ankur | 1 | 122.91 | 0.00 | 1323 | 0.000 | 3.25 Cr*Onwards |
SK Fortune Ankur
SK Ankur in Erandwane, one of the ongoing under-
construction housing societies in Pune Central. There are
apartments for sale in SK Ankur Erandwane, Pune. This
society will have all basic facilities and amenities to suit
homebuyer’s needs and requirements. Brought to you by
Fortune Developers Pune, SK Ankur is scheduled for
possession in Dec, 2026.
The project is spread over an area of 0.16 acres.
There are around 24 units on offer.
SK Ankur Erandwane housing society has single tower
with 12 floors.
SK Ankur Pune Central has some great amenities to offer
such as Terrace Garden, Car Parking and Gated
Community.
Nal stop metro station is a popular landmark in
Erandwane, Pune
Some popular transit points closest to SK Ankur are Nal
stop metro station, Ideal colony metro station and
Anand nagar metro station. Out of this, Nal stop metro
station is the nearest from this location.















In today’s fast-paced lifestyle, modern homebuyers expect more than four walls—they seek a holistic living experience powered by comfort, convenien...
Read MoreChoosing the right home as a working professional goes beyond just floor plans and pricing. Today’s workforce looks for comfort, convenience, strong ...
Read More