MahaRERA:https://maharera.mahaonline.gov.in
| Project QR Code | Maharera No. | Project/Phase Name | Proposed Date Of Completion | Total area (sq.m) |
Total Acre | Total Units | Total Tower |
|---|---|---|---|---|---|---|---|
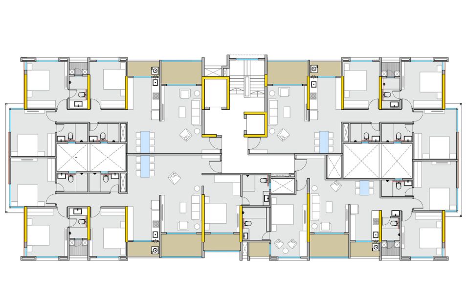
| P52100052664 | Tej Navya,Tower 1 | December - 2025 | 986.53 | 0.24 | 29 | 1 |
| Rera No. : P52100052664 |
| Project Name | Proposed Date Of Completion |
Total Units |
|---|---|---|
| Tej Navya,Tower 1 | December - 2025 | 29 |
| Total area (sq.m) |
Total Acre | Total Building |
| 986.53 | 0.24 | 1 |
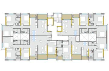
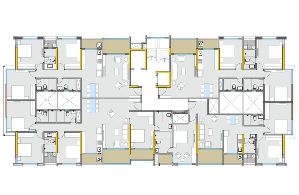
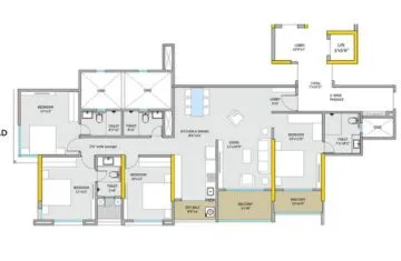
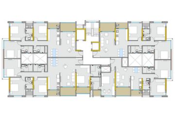
| Type | Project/Phase Name | Tower | Total Carpet area (sq.m) |
Basic Carpet area (sq.m) |
Total Carpet area (sq.ft) |
Basic Carpet area (sq.ft) |
All Inclusive Price (INR) |
|---|---|---|---|---|---|---|---|
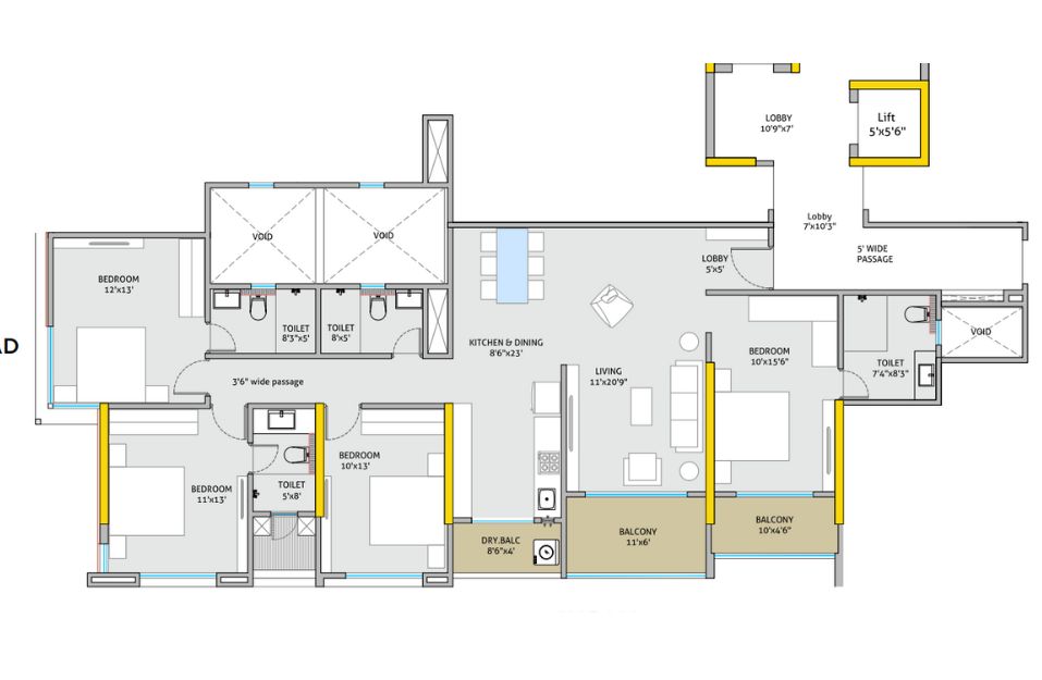
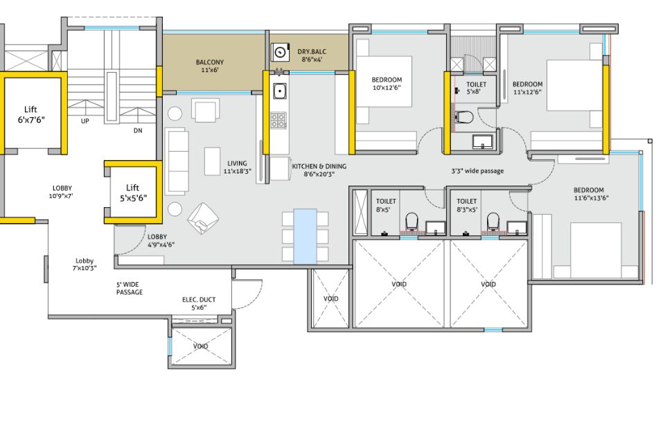
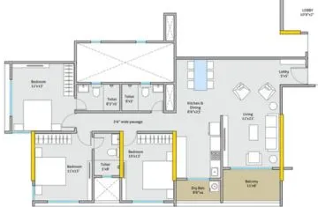
| 3 BHK | Tej Navya | 1 | 105.45 | On Request | 1135 | 0.000 | 2.36 Cr*Onwards |
| 3 BHK | Tej Navya | 1 | 113.62 | On Request | 1223 | 0.000 | 2.53 Cr*Onwards |
| 4 BHK | Tej Navya | 1 | 139.35 | On Request | 1500 | 0.000 | 3.17 Cr*Onwards |
This project offers more than just a place to live—it’s a carefully crafted balance of style and function. The wide entry gate opens to a welcoming modern façade, setting the tone for what lies inside. Every element has been thoughtfully designed to create a space that feels like home, a place you can be proud of.
Erandwane is a charming blend of nostalgia and modernity, where tree-lined avenues and familiar streets are now witnessing exciting changes. With new infrastructure and the Garware College and Nal Stop Metro stations adding convenience, this vibrant neighborhood is evolving, balancing the beauty of its past with the promise of the future.
Crafted with the values of Tejraj Group, the architecture reflects a focus on comfort, quality, and thoughtful planning. The layout ensures privacy and minimizes disruptions with ample parking to keep daily life smooth and stress-free.
This community is designed for today’s residents, embracing a lifestyle that balances culture, convenience, and sophistication. With handpicked amenities, you’ll enjoy easy access to shopping malls, cafes, restaurants, hospitals, and top educational institutions— everything you need right at your doorstep.
SCHOOLS
COLLEGES
HOSPITALS
TRANSPORTATION HUBS
LANDMARKS















The modern investor seeks more than just a home—they seek growth, reliability, and a steady stream of returns. This is precisely what Niwaas Studio b...
Read MoreIn a city where every square foot matters, Niwaas Studio by Kele Realcorp brings a refreshing concept of space efficiency blended with modern luxury. L...
Read More