MahaRERA:https://maharera.mahaonline.gov.in
| Project QR Code | Maharera No. | Project/Phase Name | Proposed Date Of Completion | Total area (sq.m) |
Total Acre | Total Units | Total Tower |
|---|---|---|---|---|---|---|---|
| P52100076781 | Tej Nova,Tower 1 | December - 2027 | 2383 | 0.59 | 61 | 1 |
| Rera No. : P52100076781 |
| Project Name | Proposed Date Of Completion |
Total Units |
|---|---|---|
| Tej Nova,Tower 1 | December - 2027 | 61 |
| Total area (sq.m) |
Total Acre | Total Building |
| 2383 | 0.59 | 1 |
| Type | Project/Phase Name | Tower | Total Carpet area (sq.m) |
Basic Carpet area (sq.m) |
Total Carpet area (sq.ft) |
Basic Carpet area (sq.ft) |
All Inclusive Price (INR) |
|---|---|---|---|---|---|---|---|
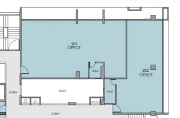
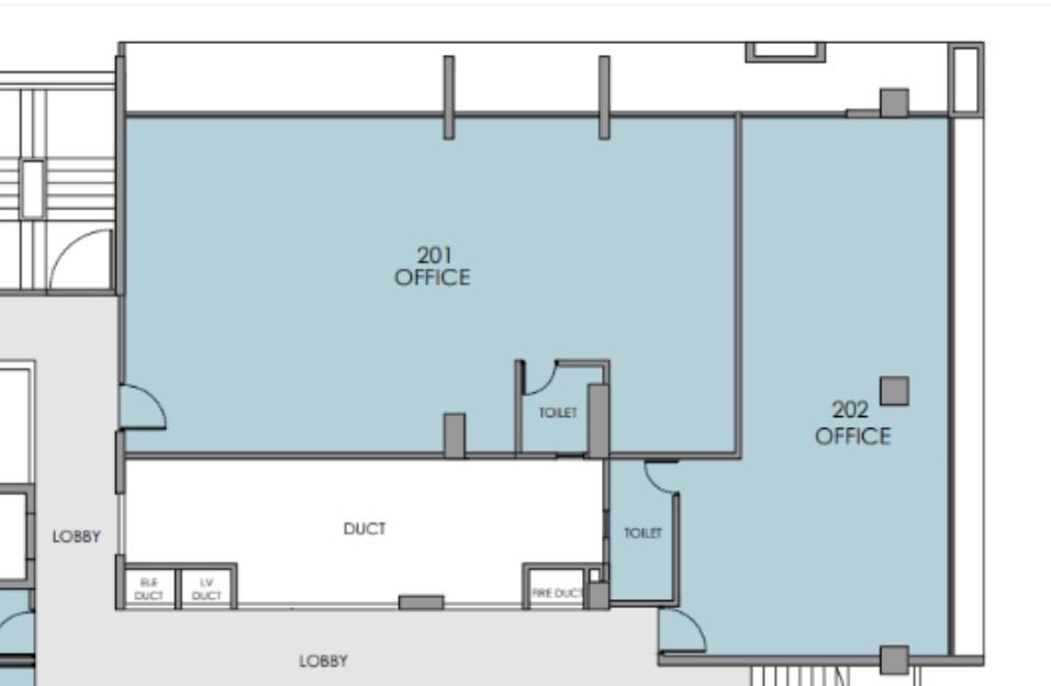
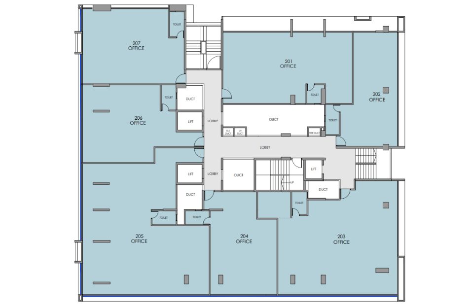
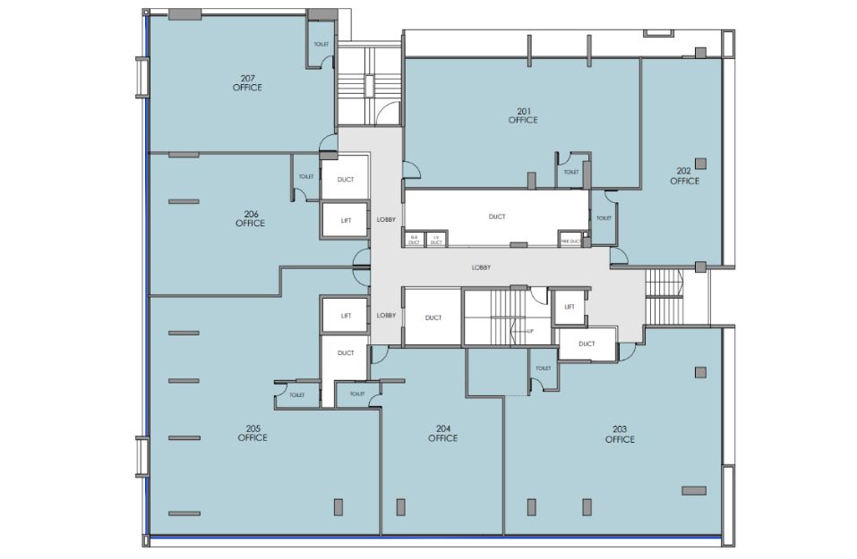
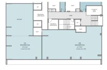
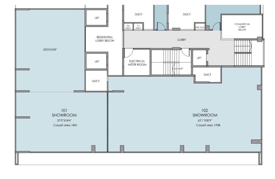
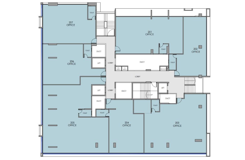
| Office | Tej Nova | 1 | 65.68 | On Request | 707 | 0.000 | 1.89 Cr*Onwards |
| Office | Tej Nova | 1 | 80.64 | On Request | 868 | 0.000 | 2.29 Cr*Onwards |
| Office | Tej Nova | 1 | 138.15 | On Request | 1487 | 0.000 | 3.96 Cr*Onwards |
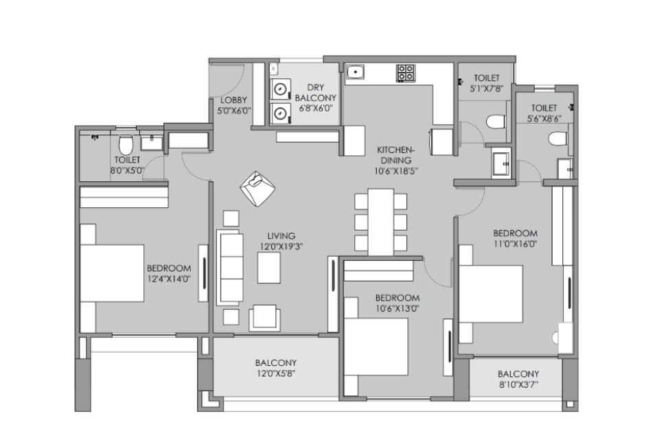
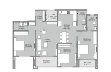
| 3 BHK | Tej Nova | 1 | 122.45 | On Request | 1318 | 0.000 | 3.14 Cr*Onwards |
| 3 BHK | Tej Nova | 1 | 136.01 | On Request | 1464 | 0.000 | 3.47 Cr*Onwards |
You began. Treading across a path of possibilities,Taking risks, tackling adversities. Pushing the limits of endurance, Breaking through barriers. Now, you stand, in a space of continuous energy, A powerful beginning that unlocks your boundless potential. Today, you’ve arrived
Tej Nova is a vision derived from the Latin word “novus” meaning “new”.
It reflects a lifestyle of fresh possibilities and groundbreaking experiences.
Like a star that lights up the night sky, Tej Nova illuminates your path to
growth and achievement. Nestled on Shankar Sheth Road, a vibrant hotspot
in the heart of the city, Tej Nova is strategically located to help you achieve
an enriched, inspired life
SCHOOLS
COLLEGES
HOSPITALS
TRANSPORTATION HUBS
LANDMARKS
Shaniwar Wada 4 km















The modern investor seeks more than just a home—they seek growth, reliability, and a steady stream of returns. This is precisely what Niwaas Studio b...
Read MoreIn a city where every square foot matters, Niwaas Studio by Kele Realcorp brings a refreshing concept of space efficiency blended with modern luxury. L...
Read More