MahaRERA:https://maharera.mahaonline.gov.in
| Project QR Code | Maharera No. | Project/Phase Name | Proposed Date Of Completion | Total area (sq.m) |
Total Acre | Total Units | Total Tower |
|---|---|---|---|---|---|---|---|
| P52100080806 | Central Vista | December - 2030 | 3599.52 | 0.89 | 300 | 1 |
| Rera No. : P52100080806 |
| Project Name | Proposed Date Of Completion |
Total Units |
|---|---|---|
| Central Vista | December - 2030 | 300 |
| Total area (sq.m) |
Total Acre | Total Building |
| 3599.52 | 0.89 | 1 |
| Type | Project/Phase Name | Tower | Total Carpet area (sq.m) |
Basic Carpet area (sq.m) |
Total Carpet area (sq.ft) |
Basic Carpet area (sq.ft) |
All Inclusive Price (INR) |
|---|---|---|---|---|---|---|---|
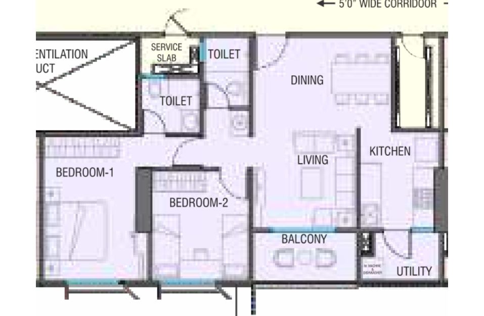
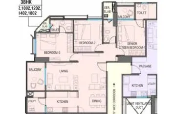
| 2 BHK | Central Vista | 1 | 59.09 | On Request | 636 | 0.000 | 1.35 Cr*Onwards |
| 3 BHK | Central Vista | 1 | 96.43 | On Request | 1038 | 0.000 | 2.35 Cr*Onwards |
| 4 BHK | Central Vista | 1 | 123.93 | On Request | 1334 | 0.000 | 3.25 Cr*Onwards |
Naiknavare Pune Property Internal Specification is Flooring & Dado include vitrified tiles flooring and skirting in the living room, dining area, passage, and living balcony, master bedroom with vitrified finish tiles, vitrified tile flooring and skirting in all bedrooms, kitchen flooring and dado (2 ft height), utility, and bedroom balcony, kitchen dado with tile finish, vitrified tile flooring and dado in all toilets, vitrified tile dado in toilets up to false ceiling, anti-skid tiles on private terraces, and vitrified tiles finish in passage floor, Kitchen features tile finish on kitchen platform with stainless steel sink and tile below platform, provision of electrical point for hob and chimney, kitchen platform support near sink in granite and other support in MS box frame, provision of electrical point for washing machine in dry balcony, granite umbra patti between kitchen and utility balcony, and provision for water filter, Doors & Windows include main door with 2-hour fire-rated flush door shutter, all internal doors with flush door shutters, toilet doors with water-resistant door shutters, aluminum sliding doors with mosquito net for balconies, aluminum sliding windows with mosquito net, and glass railing for living room and bedroom balcony as per architectural detailing, Plumbing & Water Supply includes concealed water supply lines and under-slung piping for drainage, CP and sanitary ware fittings of standard make, provision of boiler in all toilets, and provision for solar water heating in master toilet, Electrification & Cabling include concealed copper wiring with modular switches, television point in living room and all bedrooms, DTH system, provision for inverter in each flat, common DG backup for lifts, pumps, recreational area, all common areas, and common passages, reception lobby, provision for AC in living room and all bedrooms, and provision for Wi-Fi internet in each flat with router system provision.
An Overview Naiknavare Developers is one of the known real estate companies. Its office is located at Pune. D. P. Naiknavare is the chairman of the company. The directors of the company are Mrs. Gauri Naiknavare, Mr. Hemant Naiknavare and Mr. Ranjit Naiknavare. Naiknavare Developers projects have marked their presence in Goa and other cities of Maharashtra. The construction portfolio includes commercial, residential, slum rehabilitation, hospitality and education sectors. Unique Selling Point Naiknavare Developers is known for its architectural excellence. The company has a team of professionals. The organization follows set guidelines and standards. The companys projects are completed within the said time. Landmark Projects Naiknavare Developers completed projects includes Shravandhara in Hadapsar, Pune. The apartments are offered in different configurations such as 2 and 3 BHK. The project is ready to move in. The project will be completed by September 2006. The units sprawls over an area of 846 square feet to 1,120 square feet. The project has all the modern amenities. Some of them includes a gymnasium, a childrens play area, a club house, a sports facility and many more. Another project is Swapnapurti in Hadapsar, Pune. It offers 2 and 3 BHK apartments. Some of the other projects are Swarvihar in Hadapsar, Chaitraban Residency in Aundh and Swapnashilp in Kothrud, Indradhanu and Garnet Residency. The project is facilitated with all the modern amenities. Some of Naiknavare Developers under construction projects includes Esmeralda, Silent Orchards, Naiknavare Developers Mystique Moods, Eagles Nest Villa and Dwarka Rowhouses.















In today’s fast-paced lifestyle, modern homebuyers expect more than four walls—they seek a holistic living experience powered by comfort, convenien...
Read MoreChoosing the right home as a working professional goes beyond just floor plans and pricing. Today’s workforce looks for comfort, convenience, strong ...
Read More