MahaRERA:https://maharera.mahaonline.gov.in
| Project QR Code | Maharera No. | Project/Phase Name | Proposed Date Of Completion | Total area (sq.m) |
Total Acre | Total Units | Total Tower |
|---|---|---|---|---|---|---|---|
| P52100032711 | Fortune Aura Blue | October - 2025 | 1719.5 | 0.42 | 72 | 1 |
| Rera No. : P52100032711 |
| Project Name | Proposed Date Of Completion |
Total Units |
|---|---|---|
| Fortune Aura Blue | October - 2025 | 72 |
| Total area (sq.m) |
Total Acre | Total Building |
| 1719.5 | 0.42 | 1 |
| Type | Project/Phase Name | Tower | Total Carpet area (sq.m) |
Basic Carpet area (sq.m) |
Total Carpet area (sq.ft) |
Basic Carpet area (sq.ft) |
All Inclusive Price (INR) |
|---|---|---|---|---|---|---|---|
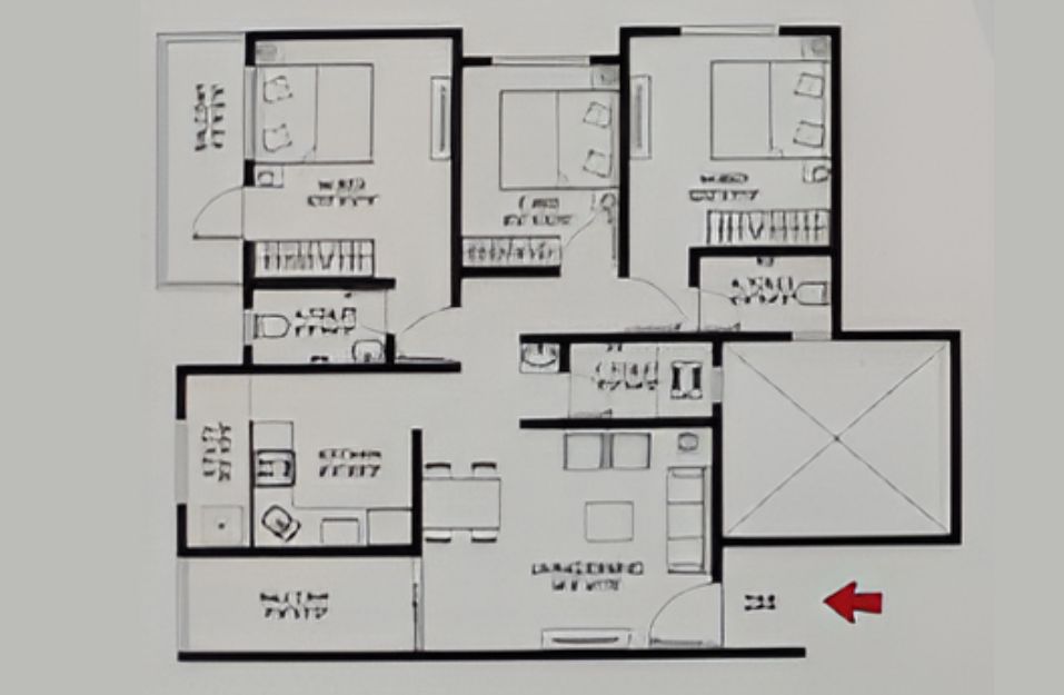
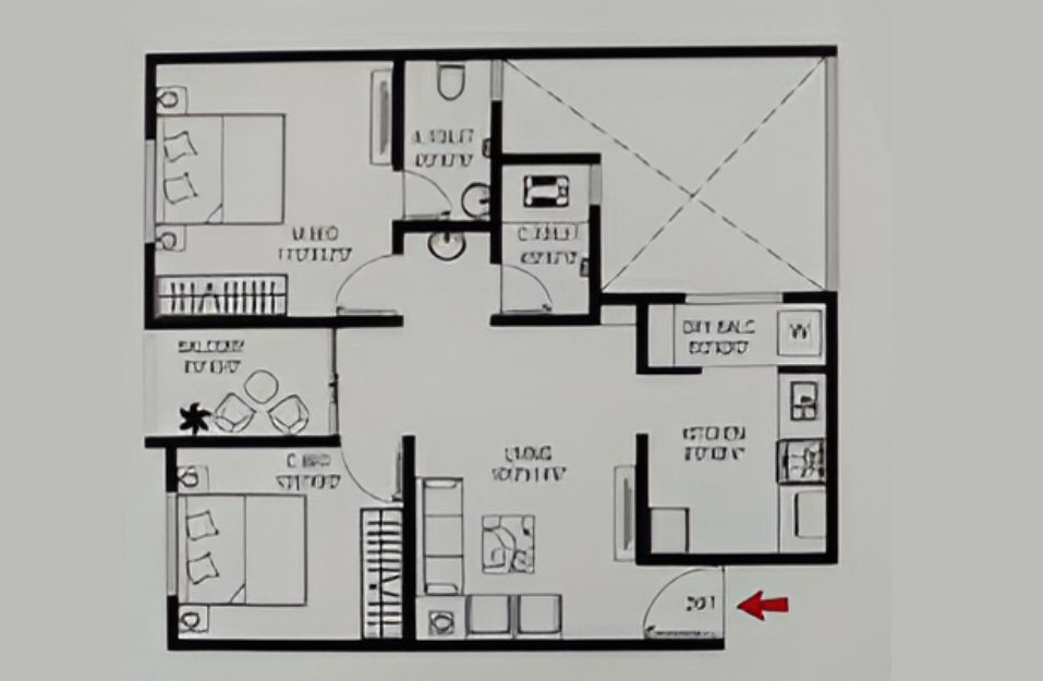
| 3 BHK Premium | Fortune Aura Blue | 1 | 83.90 | 0.00 | 903.14 | 0.000 | 90 Lakhs*Onwards |
Welcome to Aura Blue 3 BHK in Punawale a landmark residential project rising gracefully in the heart of Aura Blue Punawale, Gaothan, and Aura Blue Tathawade, Pune's most exciting western growth corridor. Thoughtfully designed to offer modern families a perfect blend of comfort, connectivity, and community living, Aura Blue Pune is more than just a home it is a privilege in a city that never stops growing.
Backed by a reputed name in India's real estate sector, Fortune Aura Blue stands as a defining landmark in one of Pune most fast-evolving residential neighbourhoods. Every detail from its thoughtfully planned layouts to its world-class amenities has been crafted with a single purpose: to create a living experience that grows with you, your family, and your aspirations, today and for decades to come.
Every detail of Aura Blue from its intelligent layouts to its world-class amenities has been crafted with a single purpose: to create a living experience that grows with you, your family, and your aspirations, today and for decades to come.
Aura Blue Punawale is not simply another address. It is a carefully curated living experience one where thoughtful architecture, premium finishes, intelligent design, and a thriving community come together to create something truly extraordinary. Whether you are a young professional stepping into your first home, a growing family seeking space and serenity, or a smart investor looking for Pune's next high-return opportunity, Aura Blue by Fortune Realty was designed with you in mind.
Located at the crossroads of connectivity and calm, Aura Blue Tathawade enjoys exceptional proximity to Hinjewadi IT Park one of India's largest and most dynamic technology employment hubs while remaining insulated from the noise and congestion of the city. Residents wake up to landscaped vistas, breathe fresh air within green-laced precincts, and commute to work within minutes. This is the balance that modern Pune demands. This is the balance that Aura Blue Pune delivers.
Developed under the trusted name of Fortune Aura Blue, this project carries forward a legacy of quality, transparency, and on-time delivery that Fortune Realty Group has built over years of shaping Pune's skyline. With Aura Blue, the Group sets a new standard not just for what a home looks like, but for what a home feels like, every single day.
At its core, Fortune Aura Blue Punawale is built on a simple but powerful belief: your home should elevate your life, not merely accommodate it. Every square foot has been planned with precision. Every amenity has been selected with purpose. Every structural decision has been made with your long-term wellbeing in mind. The result is a home that does not just meet expectations it redefines them.
They say real estate is all about location and Aura Blue Punawale Pune proves why. Punawale, Gaothan, and Tathawade form one of Pune's fastest-appreciating residential belts, driven by a powerful combination of infrastructure investment, employment growth, and lifestyle development.
Fortune Aura Blue Tathawade sits at the nerve centre of this transformation offering residents world-class connectivity without sacrificing the peace of a residential neighbourhood:
For working professionals employed in Hinjewadi's technology corridor, Aura Blue Homes Near IT Hub is not just a convenience it is a career and lifestyle advantage. No more long commutes. No more compromising between a premium address and professional accessibility. Aura Blue resolves that tension entirely.
And for investors, location is everything. Aura Blue New Project Punawale is positioned in a micro-market that has consistently outperformed the broader Pune real estate market in capital appreciation and with further infrastructure development on the horizon, the upward trajectory shows no sign of slowing.
A Developer You Can Trust Fortune Realty Group
Behind every great home is a builder who keeps their promises. Fortune Aura Blue by Fortune Realty carries the full weight of a developer that has built its reputation on integrity, quality, and consistent on-time delivery. Fortune Realty Group is not a name that needs introduction in Pune's real estate landscape it is a name that buyers return to, and refer to others, because the experience matches the promise.
With RERA-registered projects, escrow-protected funds, and a transparent sales process, Fortune Aura Blue Pune gives buyers complete legal clarity and financial protection from the day of booking to the day of possession
Aura Blue 3 BHK Apartments in Punawale are designed for the way people actually live not just the way homes are traditionally built. Every unit feature:
• Optimised floor plans that maximise usable space and minimise dead corners
• Floor-to-ceiling heights that create an airy, expansive atmosphere
• Wide balconies opening to landscaped vistas perfect for morning coffee or evening unwinding
• Natural light penetration into every room through thoughtful window and opening placement
• Ergonomic kitchen layouts with provision for modular fittings and modern appliances
• Generously proportioned bedrooms with ample wardrobe space and cross-ventilation
Whether you choose a 3 BHK for intimacy and efficiency for space and family living, every configuration at Aura Blue Punawale feels like it was made specifically for you.
World-Class Amenities for a Life Well-Lived
World-Class Amenities for a Life Well-Lived
At Fortune Aura Blue Punawale, amenities. Every space, every facility, and every detail has been deliberately designed to enrich the way you live, move, connect, and unwind. Aura Blue Pune believes that a truly great home extends well beyond four walls it lives in the laughter of a community gathering, the stillness of a meditation room, the energy of a fully equipped gym, and the joy of a child discovering a play area built just for them. From vibrant social spaces to serene wellness retreats, Fortune Aura Blue Punawale brings together a world-class collection of amenities
• Club House - A premium community hub for events, celebrations, and social gatherings
• Gym - A fully equipped fitness centre designed for every workout style and fitness goal
• Meditation Room - A calm, serene space dedicated to mindfulness, peace, and mental wellness
• Yoga Room - A purpose-built studio for daily yoga practice, flexibility, and inner balance
• Amphitheatre for Movie - An open-air cinematic experience enjoyed right within your community
• Library - A quiet, curated reading space for knowledge, focus, and personal growth
• Natural Garden - Lush, beautifully landscaped greenery bringing nature to your everyday life
• Walkway - Scenic, shaded paths perfect for morning strolls and peaceful evening walks
• Toddler Playing Area - A safe, fun, and age-appropriate zone designed for your youngest ones
• Barbeque Place Provision in the Lawn - A dedicated outdoor setup for weekend grills and family evenings
• Lawn for Parties & Birthday Celebrations - Open green space crafted for life's most joyful and memorable moments
• Chit Chat / Gossip Area - Casual seating zones to relax, connect, and bond with neighbours
• Senior Citizen Exclusive Place - A peaceful, comfortable retreat designed with ease and dignity in mind
• Children Play Area - Safe, engaging, and age-appropriate play infrastructure for growing minds and active bodies
• Open Amphitheatre - A dynamic outdoor stage for performances, community events, and cultural activities
• Fully Secure Premise with CCTV - High-definition surveillance covering every corner for complete peace of mind
• Sitting Provision in Entrance Lobby - A welcoming, well-designed reception area for residents and guests
• Provision of Toilets for Driver & Visitors at Parking Level - Thoughtful, well-maintained facilities for everyone on the premises
• Fire Retardant Provision - All passages, common lobbies, and parking fully equipped with fire safety systems
• Optional Electrical Vehicle Charging Provision - Future-ready EV infrastructure for the environmentally conscious resident
• Sliding Lobby Entrance Door with Attractive Elevated Main Gate -Premium finishing at every entry point blending aesthetics with security
• DG Backup for Building Common Area - Uninterrupted power supply ensuring seamless operations around the clock
• Video Door Phone Facility - Screen every visitor from the comfort of your home before granting entry
• My Gate Security System - Smart, app-based visitor and entry management for the modern resident
• Water Softener Plant - Ensuring clean, soft, and high-quality water supply for every household
• Mighty and Attractive Entrance Gate - A grand, secure gateway that makes a powerful and lasting first impression
Designed to elevate everyday living, Aura Blue Punawale brings together comfort, wellness, recreation, safety, and modern convenience in one harmonious community. Thoughtfully developed by Fortune Realty, Aura Blue by Fortune Realty is designed to offer a premium lifestyle experience in one of Pune’s fastest-growing residential destinations. From peaceful meditation spaces and lush landscaped gardens to premium fitness facilities, entertainment zones, children’s play areas, and senior citizen-friendly spaces, every amenity at Fortune Aura Blue Punawale is carefully crafted to enhance the lifestyle of every family member.
Strategically located near key IT hubs, Aura Blue Homes Near IT Hub offers excellent connectivity while maintaining a calm and peaceful living environment. With advanced security systems, smart living features, uninterrupted power backup, EV-ready infrastructure, and beautifully designed social spaces, Aura Blue Pune offers the perfect balance of luxury, convenience, and community living. Whether you are looking for Aura Blue 3 BHK in Punawale or spacious Aura Blue 3 BHK Apartments, this new-age residential destination stands out as the Aura Blue Best Project in Punawale and a promising Aura Blue New Project Punawale for modern families and future-focused homebuyers. Passive design strategies cross-ventilation and natural light optimisation that minimise AC dependency
In a market where green-rated homes are commanding a premium in resale and rental value, Fortune Aura Blue Punawale Pune offers buyers the advantage of a future-ready, sustainability-conscious home that appreciates faster and costs less to run.
• Strong capital appreciation - Punawale has posted consistent above-market price growth driven by IT employment and infrastructure development
• High rental demand - proximity to Hinjewadi creates a stable, premium tenant pool of IT professionals and corporate employees
• RERA-compliant - full legal transparency and buyer protection guaranteed
• Trusted developer brand - Fortune Realty's track record reduces investment risk significantly
• Infrastructure tailwinds - ongoing road, metro, and civic development continues to drive value appreciation in the Punawale–Tathawade corridor
Aura Blue New Project Punawale arrives at precisely the right moment when the neighbourhood's fundamentals are strongest and before prices fully reflect the area's maturing potential. Early buyers are historically the biggest beneficiaries of Punawale appreciation curve and Aura Blue is your opportunity to be one of them.
Fortune Aura Blue is built to endure. The project employs cutting-edge construction technologies including aluminium formwork systems for structural precision, advanced waterproofing for long-term durability, and high-strength concrete mixes that exceed standard requirements. Third-party structural audits are conducted at every stage of construction ensuring that what is built matches what was designed, and that what was designed was built to last.
Premium branded materials from structural steel to finishing fixtures are used throughout, reflecting Fortune Realty Group's uncompromising position on construction quality. Buyers of Aura Blue 3 BHK Apartments in Punawale take possession knowing their home has been built with the same rigour applied to every Fortune Realty development.
From your first site visit to the day you receive your keys and well beyond Fortune Aura Blue Pune ensures you are never navigating the process alone. Dedicated relationship managers guide buyers through every step: home loan facilitation, documentation, legal verification, interior guidance, and post-possession support. The process is transparent, the communication is clear, and the support is genuine.
This is what sets Aura Blue by Fortune Realty apart not just the product, but the experience of buying it.
Homebuyers who have explored Fortune Aura Blue Tathawade consistently highlight the same qualities: the sense of space, the quality of light, the completeness of amenities, and the confidence that comes with the Fortune Realty name. These are not features you find listed on a brochure they are experiences you feel from the moment you walk through the door.
Aura Blue Best Project in Punawale is a title earned through consistent delivery, honest dealings, and a genuine understanding of what modern Pune families and investors need from a home. It is a title Fortune Realty Group wears proudly and intends to justify at every stage of this project's journey.
In Pune's crowded and competitive real estate landscape, Aura Blue Punawale Pune stands ou not through noise, but through substance. Through the quality of its construction. The intelligence of its design. The completeness of its amenities. The strength of its location. And the integrity of the developer behind it.
Fortune Aura Blue is more than a new project. It is an invitation to live better, invest smarter, and belong to a community that was built with care from the ground up.
Whether you are looking for your forever home or your finest investment, Aura Blue Homes Near IT Hub in Punawale and Tathawade is where that journey begins.
Aura Blue - Location, Amenities & Investment Potential
In real estate, location is not just a feature it is the foundation of everything. And when it comes to location, Aura Blue Punawale holds an advantage that very few residential projects in Pune can match. Nestled in the rapidly growing western corridor of Pune, Aura Blue sits at the perfect intersection of connectivity, convenience, and calm offering residents seamless access to the city's most important destinations while preserving the peace and community feel of a well-planned neighbourhood.
Aura Blue Tathawade and Punawale Gaothan together form one of Pune's most strategically positioned residential micro-markets. Whether you are a working professional, a growing family, or a discerning investor, the location of Aura Blue Pune ensures that everything you need work, school, healthcare, shopping, and entertainment is always within easy reach.
For the thousands of professionals who drive Pune's technology economy, proximity to work is non-negotiable. Aura Blue Homes Near IT Hub is not just a tagline it is one of the project's most compelling real-world advantages.
For residents of Fortune Aura Blue Punawale, the daily commute to Pune's most active employment zones is measured in minutes not hours. This is the kind of lifestyle advantage that genuinely changes the quality of everyday life, and it is a core reason why Aura Blue by Fortune Realty continues to attract Pune's most sought-after professionals and their families.
A home's true character is revealed not just in its walls, but in the life it enables. At Aura Blue Best Project in Punawale, every amenity has been curated with purpose to enrich daily living, foster community, and deliver a lifestyle that residents are genuinely proud of. From sunrise to sunset, Fortune Aura Blue Punawale offers a living experience that goes far beyond the ordinary.
At Aura Blue Punawale, recreation is not an afterthought - it is a centrepiece of the lifestyle experience:
A stunning aquatic centrepiece that transforms weekends into a staycation. Perfect for laps, leisure, and family moments
• Fully Equipped Clubhouse - A beautifully designed community hub featuring an indoor games room, multipurpose hall, and social spaces for events, celebrations, and community gatherings
• Professional Gymnasium - A state-of-the-art fitness centre with premium equipment, catering to every workout style from strength training to cardio and yoga
• Jogging & Walking Track - A dedicated, landscaped wellness circuit within the development for morning runs, evening walks, and mindful movement
• Children's Play Area - A thoughtfully designed, age-appropriate play zone where young residents can explore, imagine, and grow safely
• Indoor Games Room Featuring table tennis, carrom, chess, and more perfect for residents of all ages seeking fun without stepping outside
Residents of Aura Blue 3 BHK Apartments in Punawale enjoy the kind of recreational infrastructure that was once reserved exclusively for five-star resorts now available every single day, right at home.
At Fortune Aura Blue Pune, the safety of residents is a responsibility the development takes with absolute seriousness. A robust, multi-layered security ecosystem ensures that families live and sleep with complete peace of mind:
• 24-Hour CCTV Surveillance - High-definition cameras covering all common areas, entry points, corridors, parking zones, and perimeter boundaries
• Gated Community with Boom Barrier Access - Controlled vehicle entry and exit with 24-hour manned security personnel at all access points
• Video Door-Phone System - Every apartment in Aura Blue Tathawade is equipped with a video intercom system, allowing residents to screen visitors from the comfort of their home before granting entry
• Trained Security Personnel - Professional, uniformed security staff stationed at all entry and exit points around the clock
• Fire Safety Systems - Comprehensive fire detection, alarm, and suppression systems installed across all floors in full compliance with NBC fire safety norms
• Emergency Evacuation Plan - Clearly marked evacuation routes and assembly points across all buildings within Fortune Aura Blue Tathawade
For families choosing Fortune Aura Blue Punawale Pune, security is not a checkbox it is a commitment that is lived and delivered every day.
Aura Blue by Fortune Realty is built not just for today's residents, but for tomorrow's world. A comprehensive suite of eco-friendly features ensures that Aura Blue Pune treads lightly on the environment while delivering the highest standards of residential comfort:
• Rainwater Harvesting Systems - Dedicated collection and storage infrastructure across the development, reducing dependence on municipal water supply and contributing to local groundwater recharge
• Solar Energy Integration - Solar panels powering common area lighting, water heating, and shared facilities - delivering meaningful energy savings to residents and the community
• Sewage Treatment Plant (STP) - On-site wastewater treatment and recycling for landscape irrigation, dramatically reducing fresh water consumption
• Landscaped Gardens & Green Zones - Lush, thoughtfully designed open spaces covering over 40% of the project footprint, offering residents a daily connection with nature
• Organic Waste Composting - Dedicated composting facilities and segregated dry-wet waste collection systems promoting responsible, community-wide waste management
• Passive Design Architecture - Cross-ventilation optimised layouts and strategic window placement that minimise air-conditioning dependency and reduce energy bills naturally
In a real estate market where green-certified homes are commanding a premium in resale and rental value, Fortune Aura Blue by Fortune Realty offers buyers a future-ready, sustainability-forward home that appreciates faster and costs significantly less to run.
Aura Blue New Project Punawale is designed for the way the world lives today digitally connected, convenience-driven, and always forward-looking:
• Home Automation Readiness - Pre-wired infrastructure for smart home integration, enabling residents to control lighting, security, and appliances through mobile devices and voice commands
• High-Speed Internet Readiness - Pre-installed optical fibre conduit networks and dedicated broadband ducts ensuring seamless, high-speed connectivity from day one
• High-Speed Elevators with ARD Technology - Premium passenger lifts equipped with Automatic Rescue Device technology for smooth, safe, and reliable vertical mobility at all times
• EV Charging Infrastructure - Pre-installed electric vehicle charging points across the parking facility, future-proofing the development for the inevitable shift to electric mobility
• Smart Metering - Digital utility meters enabling residents to monitor and manage electricity and water consumption efficiently, reducing waste and lowering monthly bills
At Aura Blue Punawale Pune, smart living is not a premium upgrade it is a standard feature of every home, for every resident.
For investors seeking a combination of strong capital appreciation, consistent rental income, and long-term value security, Aura Blue Punawale represents one of the most compelling opportunities in Pune's residential real estate market today. The fundamentals are powerful, the timing is right, and the developer behind the project has the track record to execute and deliver.
The Punawale Tathawade corridor has been one of Pune's most consistent outperformers in residential property appreciation over the past five years. Driven by explosive employment growth in Hinjewadi IT Park, aggressive infrastructure investment by the PCMC, and a rapidly expanding ecosystem of social infrastructure, property values in this micro-market have risen sharply and the trajectory continues upward.
Fortune Aura Blue Pune enters the market at a moment when the neighbourhood's fundamentals are strongest. Early investors in Punawale who entered the market three to five years ago have already seen substantial returns and with the area's maturity curve still in full ascent, those investing in Aura Blue today are positioned to benefit from the next significant wave of appreciation.
What makes Fortune Aura Blue Punawale Pune particularly exciting as an investment is the scale of infrastructure development already underway and planned in the surrounding region:
• Pune Metro Extension to Hinjewadi - The under-construction metro corridor connecting Shivajinagar to Hinjewadi IT Park will transform the commute experience for the entire western Pune corridor, significantly boosting property values in Punawale and Tathawade upon completion
• Ring Road Development - The Pune Ring Road project will dramatically improve connectivity between western Pune and the rest of the city, opening new destinations and reducing commute times for Aura Blue residents
• PCMC Smart City Initiatives - Ongoing civic infrastructure upgrades across Pimpri-Chinchwad including road widening, drainage improvement, digital connectivity, and urban landscaping are steadily elevating the quality of life and the property values in the region
• Hinjewadi IT Park Phase III Expansion - The continued growth of Hinjewadi's technology employment base ensures a sustained and growing pool of premium tenants and end-users for
Each of these infrastructure developments functions as an independent driver of value appreciation and together, they create an investment environment that is extraordinarily favourable for buyers of Aura Blue Best Project in Punawale.
Rental Yield Potential Earn While You Own
Beyond capital appreciation, Aura Blue Homes Near IT Hub delivers compelling rental income potential for investor-buyers. The Punawale Tathawade micro-market is home to a large, stable, and quality-conscious tenant pool of IT professionals, corporate executives, and young families all of whom actively seek well-amenitised, well-connected homes in safe, well-managed communities.
Properties in this corridor command consistently strong rental premiums over the broader Pune average, driven by the concentration of high-income IT sector employment in Hinjewadi. Investors who Aura Blue 3 BHK Apartments Blue in Punawale can expect:
• Strong rental demand with low vacancy periods
• Premium tenant profiles from India's leading technology companies
• Rental values that grow in line with IT sector employment and salary trends
• Long-term tenancies from families and professionals seeking stability and quality
The combination of capital appreciation and rental income makes Fortune Aura Blue one of the most complete investment propositions available in Pune's residential market today.
To summarise the investment case for Fortune Aura Blue by Fortune Realty in a single, clear picture:
• Prime Location — At the heart of Pune's fastest-appreciating western corridor
• IT Hub Proximity - Unmatched access to Hinjewadi, ensuring permanent rental demand
• Infrastructure Tailwinds - Metro, ring road, and Smart City projects driving future value
• Trusted Developer - Fortune Realty's proven track record of on-time delivery and quality
• RERA Compliant - Full legal protection, escrow-secured funds, and transparent timelines
• Eco-Certified - Green features that enhance resale value and reduce running costs
• Diverse Configurations – 3 BHK options across budgets and investor goals
• Strong Rental Yields - A premium tenant market that ensures consistent income
• Community Living - World-class amenities that attract quality tenants and end-users alike
Aura Blue New Project Punawale arrives at precisely the right moment when the area's growth fundamentals are strongest and before prices fully reflect the neighbourhood's maturing potential. Early investors in Punawale have always been the biggest beneficiaries of its appreciation curve. Fortune Aura Blue Punawale Pune is your opportunity to be one of them.
Fortune Aura Blue | Aura Blue Punawale | Aura Blue Tathawade | Pune's Most Compelling New Address Quality You Can See. Trust You Can Feel. Value That Endures.
In a city as vibrant and fast-evolving as Pune, the decision to invest in a home is one of the most consequential choices a family or investor will ever make. It is a decision that demands not just the right property, but the right location, the right developer, and the right vision a vision of what everyday life should look and feel like, not just today, but ten, twenty, and thirty years from now.
Aura Blue Punawale delivers on every one of those dimensions completely, confidently, and without compromise.
From the moment you first encounter Fortune Aura Blue, something feels different. The architecture speaks of purpose and precision. The open green spaces invite you to slow down and breathe. The amenities remind you that a home is not just where you sleep it is where your life unfolds. And the location at the very heart of Pune's most exciting western growth corridor reassures you that every rupee invested here is a rupee working hard for your future.
For families, Aura Blue Tathawade offers a life defined by comfort, convenience, and genuine community. Children grow up surrounded by nature, safety, and world-class education. Parents come home to a sanctuary after a short commute from Hinjewadi. Grandparents enjoy green walkways, fresh air, and the warmth of a thoughtfully built neighbourhood. Every stage of family life finds its place at Aura Blue Pune.
For investors, the case is equally compelling. The Punawale Tathawade micro-market has delivered consistent above-market appreciation for half a decade and with the Pune Metro extension, Ring Road development, and Hinjewadi's continued expansion all acting as powerful tailwinds, the next wave of growth is already underway. Aura Blue by Fortune Realty gives you front-row access to that growth backed by a developer whose track record of quality, transparency, and on-time delivery is second to none in Pune's residential landscape.
Aura Blue 3 BHK Apartments Blue in Punawale are not simply real estate configurations. They are life configurations choices about how you want to live, who you want to live among, and what you want your home to say about your values and your vision. Whether you choose the efficient warmth of the generous proportions of a 3 BHK, every unit at Fortune Aura Blue Punawale has been designed to make that life as rich, as comfortable, and as fulfilling as possible.
What truly sets Aura Blue Best Project in Punawale apart is not any single feature it is the totality. The sum of every design decision, every material choice, every amenity selection, and every service commitment adds up to something far greater than the individual parts: a home that earns your trust before you even move in, and rewards it for decades after.
In Pune's crowded and competitive real estate landscape, Fortune Aura Blue Punawale Pune stands out not through noise, but through substance. Through the intelligence of its design. The completeness of its amenities. The strength of its location. And the integrity of the developer who stands behind every brick and every promise.
Aura Blue Homes Near IT Hub in Punawale and Tathawade is where your journey begins a journey toward a better home, a stronger investment, and a life genuinely well-lived.
The door is open. Your future is waiting. Welcome to Aura Blue.
Q1. Is Aura Blue Punawale RERA approved?
Yes. Aura Blue by Fortune Realty is fully RERA-registered, ensuring complete legal transparency, escrow-protected funds, and guaranteed buyer protection from booking to possession. You can verify the RERA registration number on the Maharashtra RERA official portal.
Q2. What amenities are available in Aura Blue?
Aura Blue offers 26+ world-class amenities including a Club House, Gym, Meditation Room, Yoga Room, Swimming Pool, Library, Natural Garden, Children Play Area, Senior Citizen Exclusive Place, My Gate Security System, Video Door Phone, EV Charging Provision, and a Mighty Entrance Gate among many more.
Q3. How far is Aura Blue from Hinjewadi IT Park?
Aura Blue Homes Near IT Hub is just 5 to 10 minutes from Hinjewadi IT Park Phase I, II & III making it the ideal home for Pune's IT professionals who value both comfort and a short, stress-free commute.
Q4. Is Aura Blue Punawale a good investment in 2025?
Absolutely. Aura Blue New Project Punawale is positioned in one of Pune's highest-appreciating micro-markets, backed by the Pune Metro extension, Ring Road development, and Hinjewadi IT Park Phase III expansion all driving strong capital appreciation and rental demand in 2025 and beyond.
Q5. What flat sizes and configurations are available in Aura Blue?
Aura Blue 3 BHK Apartments are available in multiple size configurations to suit different family needs and budget requirements. Each unit is designed to maximise natural light, ventilation, and usable space.
4.Why is Aura Blue considered one of the best projects in Punawale?
Aura Blue Best Project in Punawale stands out for its modern amenities, premium construction quality, strategic location, security features, landscaped spaces, and excellent connectivity.
5. Is Aura Blue close to IT hubs?
Yes, Aura Blue Homes Near IT Hub offers seamless connectivity to Hinjewadi IT Park and major business zones, making it ideal for working professionals.
6. What lifestyle amenities are available at Fortune Aura Blue Punawale?
The project includes a clubhouse, gym, yoga room, meditation room, amphitheatre, children’s play area, landscaped gardens, walking tracks, senior citizen zone, CCTV security, EV charging provision, and more.
7. Does Aura Blue offer modern security features?
Yes, Fortune Aura Blue Pune comes with advanced security systems including CCTV surveillance, video door phone facility, My Gate security system, and secure entrance access.
8. Is Aura Blue a good investment option in Pune?
Yes, Aura Blue New Project Punawale is located in one of Pune’s rapidly developing residential areas, making it a strong investment opportunity with future growth potential.
9. Are there eco-friendly and future-ready features in the project?
Yes, the project includes EV charging provisions, water softener systems, landscaped green spaces, and energy-efficient infrastructure for sustainable living.
10. How is the connectivity from Aura Blue Tathawade and nearby areas?
Aura Blue Tathawade enjoys smooth connectivity to major roads, educational institutions, shopping centres, healthcare facilities, and public transport networks across Pune.
In a city as dynamic and fast-growing as Pune, selecting a real estate developer worthy of your trust is a decision of profound consequence. Fortune Realty Group stands apart in this regard. Guided by an unwavering commitment to quality, transparency, and innovation, Fortune Realty Group has established itself as a defining force in Fortune Realty Pune’s residential real estate landscape a developer that does not merely construct homes, but thoughtfully crafts communities where life genuinely flourishes.
At the heart of Fortune Realty’s philosophy is a powerful conviction: a home is far more than bricks and mortar. Every project the Group undertakes is a direct expression of this vision meticulously planned, beautifully designed, and constructed to endure the test of time. From space planning and natural light optimisation to the selection of premium materials and the integration of intelligent amenities, every detail is carefully considered to elevate the quality of everyday living.
Over the years, Fortune Realty Group has sharpened its understanding of evolving homebuyer aspirations and urban living requirements. The developer has responded consistently by raising its standards adopting modern construction technologies, embracing contemporary architectural design, and delivering developments that remain relevant for decades to come. The result is a portfolio of homes that residents are not merely satisfied with, but genuinely proud to call their own.
Among Pune’s many emerging growth corridors, Punawale has rapidly risen to prominence as one of the city’s most sought-after residential destinations. Strategically located with outstanding connectivity to Ravet and Tathawade, Punawale represents a confluence of opportunity and lifestyle. Fortune Realty Punawale developments are positioned at the very heart of this growth, offering residents unmatched access to key destinations across the city.
Recognising this potential at an early stage, Fortune Realty Group’s Punawale developments have been meticulously crafted to address the aspirations of modern urban professionals, growing families, and discerning investors alike. Each Fortune Realty Projects in Punawale reflects the developer’s signature approach nature-inspired aesthetics with thoughtfully planned infrastructure to create neighbourhoods that are simultaneously vibrant and tranquil.
Among Pune’s many emerging growth corridors, Punawale has rapidly risen to prominence as one of the city’s most sought-after residential destinations. Strategically located with outstanding connectivity to Ravet and Tathawade, Punawale represents a confluence of opportunity and lifestyle offering spacious residences, landscaped surroundings, world-class amenities, and strong investment potential. Fortune Realty Flats in Punawale embody this promise, delivering homes that are as functionally superior as they are visually exceptional.
Choosing a developer is among the most consequential decisions a homebuyer or investor will ever make. It is not solely about the property it is about entrusting someone with your financial resources, your family’s future, and your peace of mind. In Pune’s competitive real estate market, Fortune Realty Group has earned that trust through consistent excellence, transparent dealings, and an enduring focus on delivering value. Fortune Realty Pune remains the preferred choice for discerning homebuyers and smart investors alike.
Fortune Realty Group brings years of expertise in understanding market dynamics, expectations, and evolving urban living requirements. This deep-rooted experience enables Fortune Realty to make informed decisions at every stage of development from selecting strategic project locations and designing efficient floor plans to sourcing premium materials and integrating the most appropriate lifestyle amenities.
In the real estate sector, reputation is everything. Fortune Realty Group has cultivated its standing through honesty, professionalism, and a genuine commitment to fulfilling its promises. Homebuyers who invest in Fortune Realty properties do so not only for the product, but for the confidence that comes with the brand confidence grounded in clear communication, ethical business practices, and a customer-centric approach that ensures every purchaser feels valued, informed, and supported from the point of booking through to possession.
Premium Residential & Commercial Portfolio
Fortune Realty Group brings versatility and vision to every development it undertakes. The Group’s residential projects are designed to offer modern families a lifestyle that balances comfort, aesthetics, and functionality homes that breathe space, light, and warmth. Its commercial properties, meanwhile, are strategically located and thoughtfully designed to afford businesses the competitive advantage of a premium address. Fortune Realty Pune’s portfolio reflects this versatility across every segment.
Location is the foremost determinant of value in real estate and Fortune Realty’s Punawale developments are positioned precisely where opportunity is greatest. Punawale rapid transformation into one of Pune’s most sought-after residential neighbourhoods is driven by excellent road connectivity, proximity to Hinjewadi IT Park one of India’s foremost technology hubs and a maturing ecosystem of schools, hospitals, retail centres, and entertainment facilities. Fortune Realty Projects in Punawale are carefully positioned to give residents instant access to all of this and more.
Quality is not a sales proposition for Fortune Realty Group it is a non-negotiable standard. Every development is constructed using premium materials, advanced engineering methods, and rigorous quality control processes. From the structural framework to the finishing details, each element is executed with precision to ensure homes that are safe, durable, and visually exceptional. Buyers of Fortune Realty Flats in Punawale take possession with full confidence that their home has been built to endure.
Commitment to On-Time Delivery
Fortune Realty Group recognises that delayed possession creates genuine financial and personal hardship for homebuyers. Timely delivery is therefore a core commitment not an afterthought. Efficient project management, proactive planning, and a professional execution framework ensure that every Fortune Realty development is handed over as promised, providing buyers with the certainty they deserve.
Customer-First Philosophy
Every decision at Fortune Realty Group begins with a single question: what is in the best interest of the customer? This philosophy permeates every dimension of the organisation from how floor plans are designed to maximise usability, to how the sales process is structured for transparency, and how after-sales support is delivered with care and professionalism. At Fortune Realty Punawale, the customer always comes first.
World-Class Amenities for Contemporary Living
Today’s homebuyer seeks more than four walls they seek a lifestyle. Fortune Realty Group delivers precisely that, with a curated suite of lifestyle amenities thoughtfully integrated into every development: fully equipped clubhouses, landscaped gardens, fitness centres, jogging tracks, children’s play areas, and 24-hour security systems. Each amenity is designed to enrich daily living, foster a connected community, and contribute meaningfully to long-term property value. Fortune Realty Flats in Punawale are a true reflection of this lifestyle vision.
Innovation & Forward-Thinking Design
Fortune Realty Group does not rest on past achievements. The developer continuously embraces the latest advances in architectural design, intelligent spatial planning, and construction innovation. Homes are designed to optimize natural light, cross ventilation, and spatial flow, delivering a living environment that feels expansive, comfortable, and contemporary qualities that set Fortune Realty Pune apart in a market where mediocrity is commonplace.
Compelling Investment Returns
For investors, Fortune Realty’s Punawale developments represent a compelling proposition. The combination of a high-growth location, a trusted developer brand, superior construction quality, and rising demand for premium housing creates a powerful investment case. As the region’s infrastructure matures and connectivity improves, property values are expected to appreciate significantly making Fortune Realty Projects in Punawale a prudent, long-term investment choice.
Whether you are a first-time buyer seeking a dream home or a seasoned investor pursuing strong returns, Fortune Realty Group offers precisely what you need quality you can see, trust you can feel, and value that endures.
For families, Fortune Realty’s residences in Punawale offer a life defined by comfort, convenience, and genuine community. For investors, Fortune Realty Flats in Punawale represent a smart, future-ready opportunity situated in one of Pune’s fastest-appreciating neighbourhoods. The growing momentum behind Fortune Realty’s Punawale portfolio is a testament to this commitment and to a developer that understands, above all else, that what it is truly building is a legacy. Fortune Realty Pune continues to shape the city’s skyline, one landmark development at a time.
Every great real estate developer is defined not only by the structures it builds, but by the enduring mark it leaves on the communities and cities it serves. Fortune Realty is a testament to this truth. Over the course of its builder history, the Group has consistently demonstrated that the highest standards of residential development are not aspirational benchmarks they are the very foundation upon which every Fortune Realty project is conceived, designed, and delivered.
From its earliest days as a real estate developer in Pune, Fortune Realty recognized that the aspirations of modern homebuyers demand more than conventional construction. The Group set out with a clear mandate: to create developments that stand as landmarks of quality, innovation, and enduring value. That mandate has guided every chapter of Fortune Realty’s builder history, shaping a legacy that continues to grow stronger with each passing year.
The Fortune Realty Pune journey began with a firm belief that Pune a city of extraordinary growth and dynamism deserved a real estate developer capable of matching its ambitions. Fortune Realty Group answered that call by investing deeply in land acquisition, design expertise, and construction quality at a time when many developers were still content with the ordinary. This early commitment to excellence became the cornerstone of the Group’s identity and the origin of a builder history that Pune’s homebuyers have come to trust implicitly.
Key Milestones in Fortune Realty’s Journey
Each milestone in Fortune Realty Group’s builder history represents not merely a business achievement, but a commitment honoured to the thousands of families and investors who placed their trust in the brand. The milestones of Fortune Realty Pune are, in truth, the milestones of a city growing into its full potential and Fortune Realty has been present, building, at every pivotal stage of that journey.
Today, Fortune Realty Projects in Punawale stand as the most visible expression of this legacy thoughtfully planned, masterfully executed, and deeply valued by the communities they serve. The story of Fortune Realty Group is one of consistent growth, unwavering values, and a builder’s pride that manifests in every brick laid and every home delivered.
Architecture is the language through which Fortune Realty Group communicates its values to the world. Every structure that bears the Fortune Realty name is a deliberate statement of modern real estate design one that balances aesthetic ambition with functional intelligence, and visual impact with the quiet comfort of daily life. In an industry where design is often an afterthought, Fortune Realty Pune has made architectural excellence a defining characteristic of every development it brings to market.
Unique Project Designs and Layout Planning
No two Fortune Realty Projects in Punawale are alike. Each development is approached as a unique design challenge, with layouts conceived from first principles rather than replicated from templates. The planning process begins with a thorough study of the site its orientation, topography, surrounding environment, and the lifestyle needs of its intended residents. The result is a suite of modern real estate design solutions that feel bespoke, purposeful, and enduring.
Floor plans within Fortune Realty Flats in Punawale are designed to maximise usable space, ensure natural light penetration into every room, and create a seamless flow between living, dining, and private areas. Wide balconies, ergonomic kitchen layouts, and generous bedroom proportions are not incidental features they are deliberate design decisions that elevate the quality of everyday living. Fortune Realty’s layout planning philosophy is guided by a single conviction: a well-designed home makes life better.
Exceptional design demands exceptional talent. Fortune Realty Group collaborates with some of India’s most accomplished architects and design consultants to ensure that every Fortune Realty Punawale development reflects the highest standards of contemporary architectural thought. These partnerships bring fresh perspectives, global design influences, and technical expertise that translate into built environments of remarkable quality.
The collaboration model adopted by Fortune Realty Pune ensures that architects are engaged from the earliest stages of project conceptualisation not brought in after structural decisions have already been made. This integrated approach produces developments where architecture, engineering, and landscaping work in complete harmony, creating modern real estate design outcomes that are both visually striking and functionally superior.
The design philosophy that underpins every Fortune Realty project is grounded in the belief that beauty and utility are not competing values they are complementary ones. Fortune Realty Group invests significantly in design aesthetics, from the articulation of building facades and the selection of exterior cladding materials to the detailing of common areas, lobbies, and landscape zones. Every element is chosen to create a coherent, uplifting visual experience.
Space optimisation is an equally critical dimension of the Fortune Realty Pune design process. In an urban context where land is a premium commodity, the ability to design homes that feel spacious, airy, and uncluttered even within compact footprints is a genuine competitive advantage. Fortune Realty Flats in Punawale consistently demonstrate this capability, offering residents homes that feel far larger than their dimensions might suggest.
The most forward-thinking modern real estate design recognises that sustainability is not a constraint it is an opportunity. Fortune Realty Group has embraced this perspective wholeheartedly; integrating sustainable real estate projects principles into every aspect of its architectural approach. From passive design strategies that reduce energy consumption to the use of low-impact materials and green building certifications, Fortune Realty developments are designed to tread lightly on the environment while delivering the highest standards of residential comfort.
This commitment to sustainability enhances not only the environmental credentials of Fortune Realty Projects in Punawale, but also their long-term economic value as energy-efficient homes cost less to run, command premium resale values, and attract an increasingly environmentally conscious generation of homebuyers.
Behind every beautiful Fortune Realty home lays an infrastructure engineered for the long term. Fortune Realty Group’s commitment to smart infrastructure and premium property amenities ensures that residents enjoy not only aesthetically exceptional homes, but living environments that are safe, efficient, technologically advanced, and built to endure the demands of modern urban life. Infrastructure quality is not a back-office consideration for Fortune Realty Pune it is a front-line promise.
Every Fortune Realty Punawale development is constructed using the most advanced building technologies available in the industry. Fortune Realty Group’s engineering and construction teams employ cutting-edge methods including aluminium formwork systems for superior structural precision, advanced waterproofing solutions for lasting durability, and high-strength concrete mixes that exceed standard compressive requirements. These technologies, combined with rigorous quality control at every stage of construction, ensure that Fortune Realty Flats in Punawale are homes built not just for today, but for generations.
The smart infrastructure embedded within every Fortune Realty development extends beyond the structural to encompass intelligent MEP (Mechanical, Electrical, and Plumbing) systems, pre-installed conduit networks for data and communication cabling, and building management systems that enable efficient operation and maintenance. These features are hallmarks of a real estate developer that plans not just for the present, but for the decades ahead.
As a responsible real estate developer, Fortune Realty Group recognises its obligation to the environment and to the communities surrounding its developments. All Fortune Realty Projects in Punawale incorporate a comprehensive suite of eco-friendly features designed to minimise environmental impact while reducing the operating costs borne by residents.
• Rainwater Harvesting: Dedicated rainwater collection and storage systems are installed across Fortune Realty Pune developments, reducing dependence on municipal water supply and contributing to groundwater recharge in the local ecosystem.
• Solar Energy Integration: Solar panels are integrated into the smart infrastructure of Fortune Realty Punawale projects, powering common area lighting, water heating systems, and shared facilities delivering measurable energy savings to residents and the broader development.
• Sewage Treatment Plants (STPs): On-site STPs ensure that wastewater from Fortune Realty Flats in Punawale is treated and recycled for use in landscape irrigation, dramatically reducing fresh water consumption.
• Organic Waste Management: Composting facilities and segregated waste collection systems promote responsible waste disposal practices across all Fortune Realty Group communities.
The premium property amenities curated by Fortune Realty Group are designed to transform a residence into a lifestyle destination. Residents of Fortune Realty Projects in Punawale enjoy access to a comprehensive suite of facilities that address every dimension of modern living from security and mobility to wellness, recreation, and digital connectivity.
• 24-Hour Multi-Tier Security: Every Fortune Realty development is equipped with CCTV surveillance across all common areas, video door-phone systems at every flat entrance, trained security personnel at all access points, and boom-barrier-controlled vehicle entry ensuring that residents enjoy complete peace of mind.
• High-Speed Elevators: Premium passenger elevators with ARD (Automatic Rescue Device) technology are installed in all Fortune Realty Flats in Punawale, ensuring smooth, safe vertical mobility for residents and visitors at all times.
• Ample Car Parking: Structured, well-lit parking facilities with designated resident bays and visitor parking are provided across all Fortune Realty Pune developments a critical amenity in Pune’s growing urban environment.
• Internet and Digital Readiness: All Fortune Realty Punawale projects are designed with pre-installed optical fibre conduit networks and dedicated ducts for high-speed broadband connectivity, ensuring residents are seamlessly connected from the day they move in.
• Clubhouse and Recreational Facilities: Fully equipped clubhouses featuring gymnasiums, indoor games rooms, multipurpose halls, and swimming pools are standard across Fortune Realty Group’s flagship developments creating vibrant community spaces that enrich everyday life.
Regulatory Compliance and Environmental Standards
Compliance is not a burden for Fortune Realty Group it is a professional obligation the Group embraces with conviction. Every Fortune Realty Pune development is executed in full conformity with RERA (Real Estate Regulatory Authority and all applicable environmental clearance conditions.
This rigorous adherence to regulatory frameworks ensures that buyers of Fortune Realty Flats in Punawale invest with complete legal clarity and confidence. It also reflects the Group’s deeper commitment to operating as a real estate developer of integrity one whose builder history is defined not only by what it has built, but by how responsibly it has built it. For Fortune Realty Group, quality, sustainability, and compliance are not separate priorities they are three pillars of a single, uncompromising standard of excellence that defines every Fortune Realty project from inception to possession.
In a real estate market as competitive and rapidly evolving as Pune’s, the choice of developer is as important as the choice of location. Pune property investment has emerged as one of the most compelling wealth-creation opportunities in India and within this landscape, Fortune Realty Group stands as the developer best positioned to help buyers and investors realise the full property investment benefits that Pune’s dynamic market has to offer. From prime site selection and superior construction to exceptional amenities and end-to-end customer support, every dimension of the Fortune Realty experience is designed to maximise real estate ROI for those who choose to invest.
Whether you are a first-time homebuyer, a seasoned investor expanding your portfolio, or a non-resident Indian seeking a reliable Pune property investment, Fortune Realty Pune offers a range of residential and commercial options that deliver genuine, measurable, and sustainable returns. The following section outlines the core property investment benefits of partnering with Fortune Realty Group and why discerning investors consistently choose Fortune Realty Projects in Punawale as their preferred investment destination in Pune.
The foundation of strong real estate ROI is location and Fortune Realty Group has consistently demonstrated an exceptional ability to identify and secure sites in Pune’s highest-growth corridors before the broader market fully recognises their potential. Fortune Realty Punawale developments are a prime example of this foresight. Punawale proximity to Hinjewadi IT Park, its excellent road connectivity via NH-48, and its rapidly maturing social infrastructure have collectively driven property value appreciation that consistently outpaces the Pune market average. Buyers who invested early in Fortune Realty Flats in Punawale have already witnessed substantial capital appreciation and with further infrastructure development underway, the trajectory remains strongly upward. For anyone evaluating Pune property investment opportunities, the location credentials of Fortune Realty Projects in Punawale represent an exceptionally strong starting point.
Beyond capital appreciation, Fortune Realty Pune developments generate compelling rental income for investors a critical component of overall real estate ROI. Punawale growing population of IT professionals, corporate employees, and young families creates a consistently strong and stable rental demand that sustains healthy occupancy rates and attractive rental yields year-round. Fortune Realty Flats in Punawale are particularly well-suited to the rental market, offering the modern amenities, connectivity, and community environment that today’s quality-conscious tenants actively seek. This dual benefit of capital growth and rental income makes Fortune Realty Punawale portfolio one of the most complete property investment benefits packages available in the Pune market today.
Wide Range of Investment Options
Recognising that every investor has unique financial goals, risk appetites, and lifestyle aspirations, Fortune Realty Group offers a broad and carefully curated spectrum of investment options across residential and commercial categories. Whether you seek a compact, high-yield studio apartment, a spacious family-oriented 3 BHK residence, or a premium commercial unit in a strategically located business district, Fortune Realty Pune’s portfolio is designed to accommodate the full diversity of Pune property investment requirements. Fortune Realty Projects in Punawale span a range of configurations including 1 BHK, 2 BHK, and 3 BHK apartments, mixed-use developments, and integrated township formats ensuring that every investor finds an option aligned with their specific objectives and financial horizon.
In an era of heightened environmental awareness and rising energy costs, sustainability is no longer a premium feature it is a fundamental driver of long-term real estate ROI. Fortune Realty Group’s commitment to sustainable development principles ensures that every Fortune Realty Punawale project is designed and built to minimise its environmental footprint while maximising its long-term economic value. Eco-friendly features including rainwater harvesting, solar energy systems, sewage treatment plants, energy-efficient common area lighting, and green landscape design are standard across all Fortune Realty Flats in Punawale. These features reduce the operational costs borne by residents and the community, enhances the living environment, and contributes meaningfully to the long-term appreciation of Fortune Realty’s developments in an increasingly sustainability-conscious market.
Investing in real estate is a journey and Fortune Realty Group is committed to being a trusted partner at every stage of that journey. From the first inquiry and site visit through to home loan facilitation, documentation, legal verification, interior customisation guidance, possession formalities, and post-possession support, Fortune Realty Pune’s customer service framework is designed to make the investment experience smooth, transparent, and genuinely reassuring. Dedicated relationship managers, a transparent payment structure, and a responsive after-sales support team ensure that buyers of Fortune Realty Flats in Punawale never feel alone in the process. This end-to-end commitment to
Investing in real estate is a journey and Fortune Realty Group is committed to being a trusted partner at every stage of that journey. From the first inquiry
Investing in real estate is a journey and Fortune Realty Group is committed to being a trusted partner at every stage of that journey. From the first inquiry and site visit through to home loan facilitation, documentation, legal verification, interior customisation guidance, possession formalities, and post-possession support, Fortune Realty Pune’s customer service framework is designed to make the investment experience smooth, transparent, and genuinely reassuring. Dedicated relationship managers, a transparent payment structure, and a responsive after-sales support team ensure that buyers of Fortune Realty Flats in Punawale never feel alone in the process. This end-to-end commitment to customer care is one of the most valued property investment benefits that Fortune Realty consistently delivers and one of the primary reasons the Group commands such deep loyalty from repeat buyers and referral-driven investors.
At a Glance: Why Invest with Fortune Realty Group?
• Proven real estate ROI: Properties in Fortune Realty Projects in Punawale have demonstrated consistent value appreciation, with select projects recording over 20% year-on-year growth.
• Pune property investment hub: Punawale is one of Pune’s fastest-appreciating residential corridors, driven by IT sector employment growth, infrastructure investment, and rising lifestyle aspirations.
• RERA-compliant developments: Every Fortune Realty Pune project is fully registered and compliant with RERA regulations, ensuring complete legal transparency and buyer protection.
• Premium property amenities: World-class clubhouses, landscaped gardens, fitness centres, children’s play areas, and 24-hour security systems are standard across all Fortune Realty Flats in Punawale.
• Flexible investment configurations: A diverse portfolio of 3 BHK, and commercial options ensures that Fortune Realty Group can serve investors at every budget level and stage of life.
• Trusted builder history: A track record of on-time delivery, quality construction, and ethical business practices makes Fortune Realty one of Pune’s most trusted names in residential real estate.
Fortune Realty Group is more than a real estate developer it is a builder of communities, a custodian of quality, and a long-term partner in the aspirations of every family and investor it serves. Across every dimension of its operations from architectural design and construction quality to customer service and sustainability Fortune Realty has set and consistently exceeded the benchmarks that define excellence in Pune’s residential real estate landscape.
The story of Fortune Realty Pune is, at its heart, the story of a developer that chose to do things differently to place the customer at the centre of every decision, to invest in quality when shortcuts would have been easier, to plan for the long term when short-term thinking was the norm, and to build communities that genuinely enrich the lives of the people who call them home. This philosophy has produced a portfolio of Fortune Realty Projects in Punawale that stand as a lasting testament to what responsible, visionary real estate development looks like in practice.
For families, Fortune Realty Flats in Punawale represent far more than a residential address they represent a lifestyle of comfort, security, and belonging. For investors, they represent one of the most compelling Pune property investment opportunities available in the market today, combining the property investment benefits of a prime location, a trusted developer brand, superior construction quality, and a rapidly appreciating neighbourhood into a single, coherent investment proposition. The real estate ROI delivered by Fortune Realty Group’s Punawale portfolio is a reflection of all of this and it is a return that grows stronger with every passing year.
As Fortune Realty Punawale footprint in Pune’s western growth corridor continues to expand, the Group remains as committed as ever to the values that have defined its journey: quality without compromise, transparency without exception, and a genuine dedication to the wellbeing of every resident who chooses to make a Fortune Realty development their home. The milestones already achieved are significant but for Fortune Realty Group, they are the foundation of an even greater legacy yet to be built.
Explore Fortune Realty Group Projects Today
Discover a home that is built for your future or an investment that works as hard as you do.
Contact Fortune Realty Group today and take the first step towards owning a home or growing an investment you will be proud of for decades to come.
Fortune Realty Group Quality You Can See. Trust You Can Feel. Value That Endures.
Q1: What kind of properties does the builder offer?
• 2 & 3 BHK Apartments Luxury Villas & Plotted Developments
Commercial Spaces & Integrated Townships
Q2: Are the projects suitable for end-use and investment?
• RERA-registered with full legal transparency Family-friendly amenities for end-users
Q4: How does the builder ensure timely delivery and quality?
• RERA escrow account for fund protection third-party structural audits at every stage Proven on-time delivery track record















In Pune’s premium real estate market, only a few developments go beyond luxury housing and truly establish themselves as landmark addresses. Tribeca ...
Read MoreIn the evolving luxury real estate landscape of Pune, Tribeca The Everett emerges as a rare architectural statement that blends privacy, design excelle...
Read More