MahaRERA:https://maharera.mahaonline.gov.in
| Project QR Code | Maharera No. | Project/Phase Name | Proposed Date Of Completion | Total area (sq.m) |
Total Acre | Total Units | Total Tower |
|---|---|---|---|---|---|---|---|
| P52100029522 | Phase III Cluster A Building L & M | June - 2028 | 5167 | 1.28 | 214 | 2 | |
| P52100047694 | Phase III, Cluster B, Tower N & Tower O | June - 2029 | 3879.03 | 0.96 | 214 | 2 | |
| P52100051020 | Phase III, Cluster C, Tower P | December - 2029 | 1889.54 | 0.47 | 85 | 1 | |
| P52100077431 | Puneville Phase III Cluster D | March - 2031 | 14669 | 3.62 | 366 | 3 |
| Rera No. : P52100029522 |
| Project Name | Proposed Date Of Completion |
Total Units |
|---|---|---|
| Phase III Cluster A Building L & M | June - 2028 | 214 |
| Total area (sq.m) |
Total Acre | Total Building |
| 5167 | 1.28 | 2 |
| Rera No. : P52100047694 |
| Project Name | Proposed Date Of Completion |
Total Units |
|---|---|---|
| Phase III, Cluster B, Tower N & Tower O | June - 2029 | 214 |
| Total area (sq.m) |
Total Acre | Total Building |
| 3879.03 | 0.96 | 2 |
| Rera No. : P52100051020 |
| Project Name | Proposed Date Of Completion |
Total Units |
|---|---|---|
| Phase III, Cluster C, Tower P | December - 2029 | 85 |
| Total area (sq.m) |
Total Acre | Total Building |
| 1889.54 | 0.47 | 1 |
| Rera No. : P52100077431 |
| Project Name | Proposed Date Of Completion |
Total Units |
|---|---|---|
| Puneville Phase III Cluster D | March - 2031 | 366 |
| Total area (sq.m) |
Total Acre | Total Building |
| 14669 | 3.62 | 3 |
| Type | Project/Phase Name | Tower | Total Carpet area (sq.m) |
Basic Carpet area (sq.m) |
Total Carpet area (sq.ft) |
Basic Carpet area (sq.ft) |
All Inclusive Price (INR) |
|---|---|---|---|---|---|---|---|
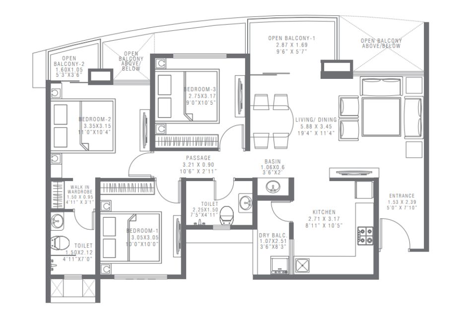
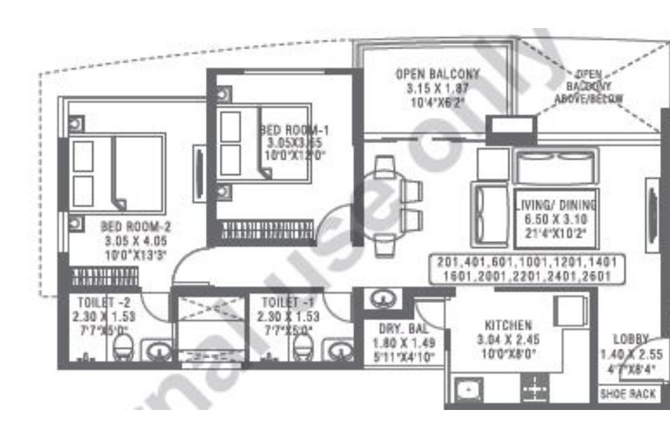
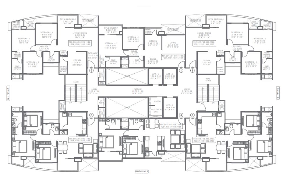
| 2 BHK | Puneville Phase III Cluster D | S - wing | 67.63 | On Request | 728 | 0.000 | 74.2 Lakhs*Onwards |
| 2 BHK | Puneville Phase III Cluster D | R - wing | 77.02 | On Request | 829 | 0.000 | 85.76 Lakhs*Onwards |
| 2 BHK | Puneville Phase III Cluster D | R-Wing | 77.30 | On Request | 832 | 0.000 | 89.99 Lakhs*Onwards |
| 2 BHK | Puneville Phase III Cluster D | Q-wing | 80.27 | On Request | 864 | 0.000 | 88.02 Lakhs*Onwards |
| 2 BHK | Puneville Phase III Cluster D | Q-wing | 81.20 | On Request | 874 | 0.000 | 94.51 Lakhs*Onwards |
| 2.5 BHK | Puneville Phase III Cluster D | S - wing | 88.54 | On Request | 953 | 0.000 | 97 Lakhs*Onwards |
| 2.5 BHK | Puneville Phase III Cluster D | S - wing | 89.19 | On Request | 960 | 0.000 | 1.03 Cr*Onwards |
Welcome to Puneville Punawale by Pharande Spaces by Pharande Spaces, Pune:
Conceived by Aedas, the globally ranked second architectural firm, Puneville Punawale is an awe-inspiring masterpiece of architecture, interior design, and landscaping. Our luxury flats in Puneville by Pharande Spaces offer a lifestyle that's truly indulgent and unparalleled.
Luxury Flats for Every Lifestyle:
Choose from our exquisite 2, 2.5, and 3 BHK flats in Punawale's largest township. Spread across 28 acres, with 60% of the area dedicated to open, green spaces, Puneville Punawale, Pune allows you to enjoy life surrounded by nature. What truly sets this township apart is the remarkable 22-foot-high skywalk that seamlessly connects all residential towers, providing a unique perspective on life.
Amenities That Elevate Your Lifestyle:
At Puneville, we understand the importance of a well-rounded lifestyle. That's why we offer a plethora of convenient amenities that cater to everyone in your family. From exceptional sports facilities to unique spaces designed for leisure and recreation, Puneville Punawale, Pune ensures you have everything you need to live life to the fullest.
Puneville by Pharande Spaces - Shaping Communities:
Pharande Spaces has left its signature green imprints across several hundred acres of Pimpri-Chinchwad, from Moshi in the North-East to Ravet in the West, and in several sectors of Pradhikaran. With a commitment to building sustainable communities, we are proud to bring you Puneville Punawale, our flagship project.
Proximity to Quality Education:
Puneville Punawale is located close to several renowned schools and colleges, making it an ideal place for families:
Healthcare at Your Doorstep:
Your family's well-being is our priority. Puneville, Pune is conveniently located near various hospitals:
Excellent Connectivity:
Puneville Punawale's strategic location offers seamless connectivity:
Modern Living, Thoughtful Design:
Puneville by Pharande Spaces boasts modern living spaces with meticulous design and attention to detail:
Amenities That Redefine Living:
Puneville's amenities are designed to enhance your lifestyle:
Inspired by the Chandigarh model, Pradhikaran promotes methodical development in the largely industrial Pimpri-Chinchwad region under the guidance of the Pimpri Chinchwad New Township Development Authority (PCNTDA). Because of this transformation, Pimpri-Chinchwad is currently considered an attractive residential location. Vaarivana is a project for an integrated township. The largest first-home Golf Villa Community in Pune is situated right off the Mumbai-Pune Expressway in Urse Central. Woodsville Friends We reserved our brand-new, ideal house in Woodsville, which is a Pharande Spaces project. We found our ideal house within our budget, just the way we wanted it. In comparison to comparable projects, our apartment has a fantastic floor layout that makes it appear huge.
SCHOOLS AND COLLEGES
HOSPITALS
CONNECTIVITY















Modern homebuyers and investors are increasingly attracted to projects that offer more than just compact living spaces. What defines true residential v...
Read MoreThe demand for compact, well-managed, and income-focused assets has grown rapidly in India’s major real estate markets. Pune, in particular, has ...
Read More