MahaRERA:https://maharera.mahaonline.gov.in
| Project QR Code | Maharera No. | Project/Phase Name | Proposed Date Of Completion | Total area (sq.m) |
Total Acre | Total Units | Total Tower |
|---|---|---|---|---|---|---|---|
| P52100030375 | AURETA | September - 2025 | 2023 | 0.5 | 52 | 1 |
| Rera No. : P52100030375 |
| Project Name | Proposed Date Of Completion |
Total Units |
|---|---|---|
| AURETA | September - 2025 | 52 |
| Total area (sq.m) |
Total Acre | Total Building |
| 2023 | 0.5 | 1 |
| Type | Project/Phase Name | Tower | Total Carpet area (sq.m) |
Basic Carpet area (sq.m) |
Total Carpet area (sq.ft) |
Basic Carpet area (sq.ft) |
All Inclusive Price (INR) |
|---|---|---|---|---|---|---|---|
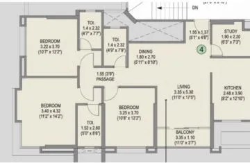
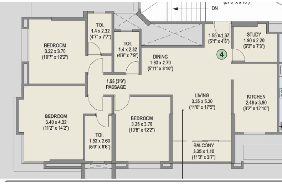
| 3 BHK | Aureta | 1 | 9.75 | On Request | 1055 | 0.000 | 1.51 Cr*Onwards |
| 3 BHK | Aureta | 1 | 98.48 | On Request | 1060 | 0.000 | 1.52 Cr*Onwards |
| 3.5 BHK | Aureta | 1 | 105.17 | On Request | 1132 | 0.000 | 1.62 Cr*Onwards |
| 3.5 BHK | Aureta | 1 | 104.79 | On Request | 1128 | 0.000 | 1.84 Cr*Onwards |
The name AURETA is of the Albanian origin that means, loving, caring & calming and knows how to put a smile on people's face. So, with this project, we have achieved to give you what suits your taste and style. Like Its meaning. AURETA mirrors your caring and loving charisma. Your desire of calmness hit the right spot with us. Besides, with our commitment to AURETA's momentous artistry, you can be ensured that every factor is designed to legitimize your expectations and will put a smile all over.
Choice Group - Choice Group stands as a beacon of excellence in the real estate sector, having created over 38 residential and commercial landmarks spanning more than 38 lakh square feet, delighting over 12,900 satisfied customers. With ongoing projects covering an additional 13 lakh square feet, Choice Group continues to set new standards in construction, driven by a commitment to quality and customer satisfaction. Shroff’s Group - Established in 1958 by P. K. Shroff, the company gained recognition as an A class contractor and is credited for constructing some of Pune's most impressive government structures, including the Polytechnic College, TB Hospital, Council Hall, Police Commissioner Office, Central structures, and numerous others. In 1989, the team ventured into residential and commercial real estate development, driven by their entrepreneurial zeal and desire to broaden the scope of the Shroff company. In the construction industry, there have been more than 60 years of progress toward steady expansion and a vibrant economic climate. The Shroff Group, a reputable developer known for providing the best value for its projects, has created over 2 million square feet of real estate in the sectors of housing, commercial, retail, bungalow schemes, and plots.
Reach your destination in quick time:
Education centres around:
Work Spaces:
Healthcare in vicinity:















In Pune’s premium real estate market, only a few developments go beyond luxury housing and truly establish themselves as landmark addresses. Tribeca ...
Read MoreIn the evolving luxury real estate landscape of Pune, Tribeca The Everett emerges as a rare architectural statement that blends privacy, design excelle...
Read More