MahaRERA:https://maharera.mahaonline.gov.in
| Project QR Code | Maharera No. | Project/Phase Name | Proposed Date Of Completion | Total area (sq.m) |
Total Acre | Total Units | Total Tower |
|---|---|---|---|---|---|---|---|
| P52100031750 | Elite Square | December - 2024 | 674.26 | 0.17 | 21 | 1 |
| Rera No. : P52100031750 |
| Project Name | Proposed Date Of Completion |
Total Units |
|---|---|---|
| Elite Square | December - 2024 | 21 |
| Total area (sq.m) |
Total Acre | Total Building |
| 674.26 | 0.17 | 1 |
| Type | Project/Phase Name | Tower | Total Carpet area (sq.m) |
Basic Carpet area (sq.m) |
Total Carpet area (sq.ft) |
Basic Carpet area (sq.ft) |
All Inclusive Price (INR) |
|---|---|---|---|---|---|---|---|
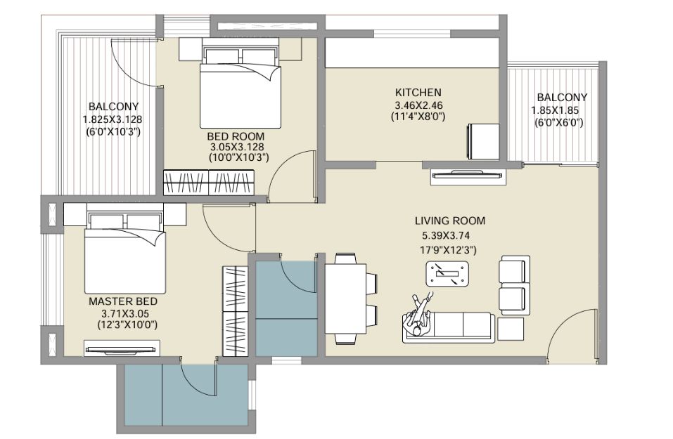
| 2 BHK | Elite Square | 1 | 7.43 | On Request | 591 | 0.000 | 80 Lakhs*Onwards |
A fresh and serene beginging awaite.
Located in the green settings of wakad, a plethora of great features will greet you at Elite Square. Here, you are spoilt with numerous lavish choices















In today’s evolving real estate landscape, investors are increasingly looking beyond traditional appreciation-led assets and focusing on predictable ...
Read MoreCodename AIR Tathawade Sets a New Standard for Pre-Leased Studio Apartments in PuneC...
Read More