MahaRERA:https://maharera.mahaonline.gov.in
| Project QR Code | Maharera No. | Project/Phase Name | Proposed Date Of Completion | Total area (sq.m) |
Total Acre | Total Units | Total Tower |
|---|---|---|---|---|---|---|---|
| P52100052816 | Param | December - 2027 | 4550 | 1.12 | 67 | 1 |
| Rera No. : P52100052816 |
| Project Name | Proposed Date Of Completion |
Total Units |
|---|---|---|
| Param | December - 2027 | 67 |
| Total area (sq.m) |
Total Acre | Total Building |
| 4550 | 1.12 | 1 |
| Type | Project/Phase Name | Tower | Total Carpet area (sq.m) |
Basic Carpet area (sq.m) |
Total Carpet area (sq.ft) |
Basic Carpet area (sq.ft) |
Agreement Value Price (INR) |
|---|---|---|---|---|---|---|---|
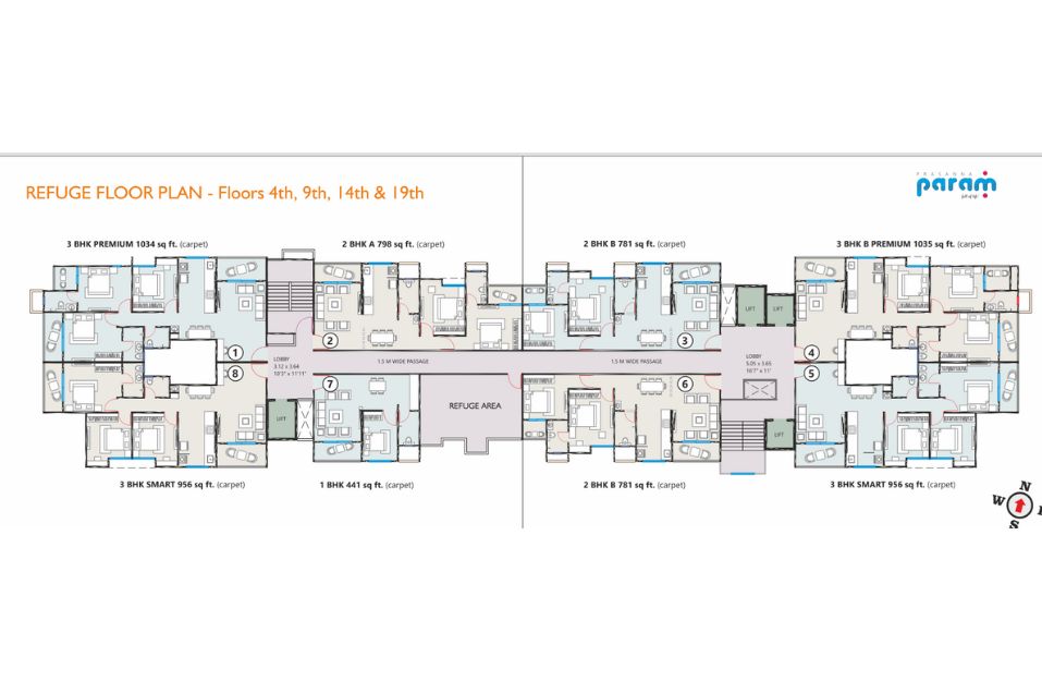
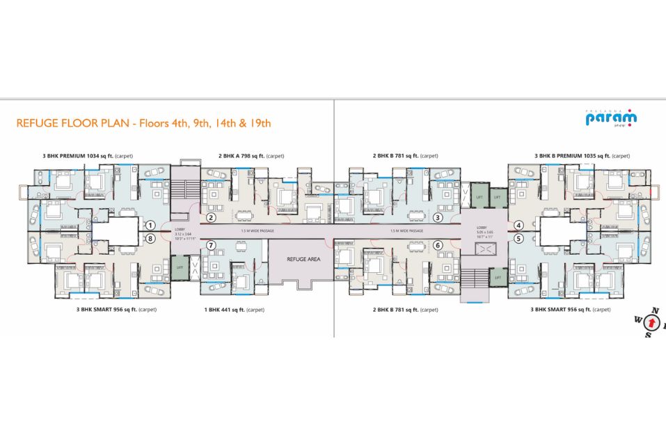
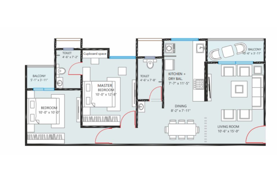
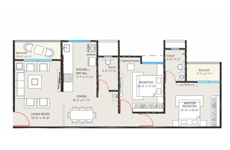
| 2 BHK | Prasanna Param | 1 | 72.56 | On Request | 781 | 0.000 | 91 Lakhs*Onwards |
| 2 BHK | Prasanna Param | 1 | 74.14 | On Request | 798 | 0.000 | 93 Lakhs*Onwards |
| 3 BHK Smart | Prasanna Param | 1 | 88.82 | On Request | 956 | 0.000 | 1.11 Cr*Onwards |
| 3 BHK | Prasanna Param | 1 | 96.06 | On Request | 1034 | 0.000 | 1.2 Cr*Onwards |
The name itself embodies profound significance. Prasanna Param Wakad, Pune, derived from the Sanskrit word "para," signifies the highest or best. In the realm of the sublime, Param represents the pinnacle of perfection and achievement.
In its essence, Param goes beyond the ordinary; it signifies the divine and the highest levels of excellence. Prasanna Param in Wakad is not just a residence; it is a manifestation of the sublime, offering a living experience that transcends the ordinary boundaries of perfection.
At Prasanna Developers, Pune, we have curated a space that epitomizes the concept of Param, where every detail is crafted to achieve the highest standards of quality and design. Your home at Prasanna Param by Prasanna Developers is a testament to the divine, a place where perfection meets achievement.
Experience the sublime at Prasanna Param in Wakad, Pune—a home that reflects the highest levels of excellence and the divine. Discover a living space that goes beyond the ordinary, where every aspect is a celebration of perfection, by Prasanna Developers. Welcome to a residence that truly embodies the concept of Param.
Under the direction of Mr. Prasanna Patwardhan, Group Chairman, the company has grown and succeeded remarkably. Mr. Patwardhan has led the group to new heights with his visionary commercial acumen and respected reputation in the industry. Mr. Patwardhan is a graduate of science who has studied professional management. His leadership is based on a thorough comprehension of the business and real estate industries. The CEO and MD of Prasanna Developers, Mr. Saurabh Patwardhan, offers a new viewpoint on the real estate development industry. Mr. Patwardhan's leadership style embodies the principles of discipline, commitment, and teamwork, as he was an ardent sportsman in his youth. He is leading Prasanna Developers toward its objective of reinventing luxury living in Pune with an unwavering pursuit of quality.
BANKS
SCHOOLS
INSTITUTES
CONVENIENCE















In today’s fast-paced lifestyle, modern homebuyers expect more than four walls—they seek a holistic living experience powered by comfort, convenien...
Read MoreChoosing the right home as a working professional goes beyond just floor plans and pricing. Today’s workforce looks for comfort, convenience, strong ...
Read More