MahaRERA:https://maharera.mahaonline.gov.in
| Project QR Code | Maharera No. | Project/Phase Name | Proposed Date Of Completion | Total area (sq.m) |
Total Acre | Total Units | Total Tower |
|---|---|---|---|---|---|---|---|
| P52100047835 | Building - A,B, C,D, E & F | June - 2027 | 16827.27 | 4.16 | 762 | 6 |
| Rera No. : P52100047835 |
| Project Name | Proposed Date Of Completion |
Total Units |
|---|---|---|
| Building - A,B, C,D, E & F | June - 2027 | 762 |
| Total area (sq.m) |
Total Acre | Total Building |
| 16827.27 | 4.16 | 6 |
| Type | Project/Phase Name | Tower | Total Carpet area (sq.m) |
Basic Carpet area (sq.m) |
Total Carpet area (sq.ft) |
Basic Carpet area (sq.ft) |
All Inclusive Price (INR) |
|---|---|---|---|---|---|---|---|
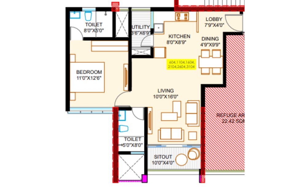
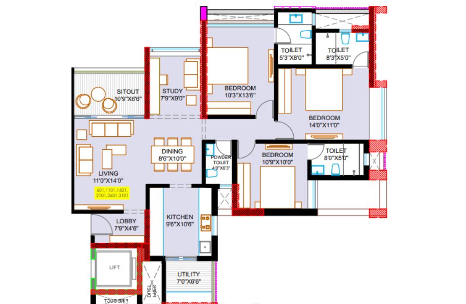
| 1 BHK | Building - A,B, C,D, E & F | Building F | 59.55 | On Request | 641 | 0.000 | 69 Lakhs*Onwards |
| 2 BHK | Building - A,B, C,D, E & F | Building F | 78.13 | On Request | 841 | 0.000 | 95.5 Lakhs*Onwards |
| 2.5 BHK | Building - A,B, C,D, E & F | Building E | 89.19 | On Request | 960 | 0.000 | 1.12 Cr*Onwards |
| 3 BHK | Building - A,B, C,D, E & F | Building E | 106.65 | On Request | 1148 | 0.000 | 1.36 Cr*Onwards |
| 3.5 BHK | Building - A,B, C,D, E & F | Building F | 114.55 | On Request | 1233 | 0.000 | 1.49 Cr*Onwards |
Welcome to ANP Ultimus by ANP Corp., where innovation seamlessly blends with elegance, offering a unique residential experience in the heart of Wakad, Pune Explore the extraordinary features that make ANP Ultimus, Wakad, Pune, a game-changer in the world of modern living with ANP Corp., Wakad
ANP Ultimus, Wakad, Pune, stands as a landmark of innovation, featuring a distinctive orientation of towers. This design not only provides an expansive viewing experience but also ensures the privacy of your home. ANP Corp.'s commitment to setting new industry standards is reflected in every aspect of this project.
Designed to stand out, ANP Ultimus, Wakad, boasts clean lines and functional designs that refresh the mind and senses. The project includes podium gardens, creating private sanctuaries of beauty and calm within the landscape. Discover how the extraordinary orientation of towers facilitates an all-encompassing lifestyle, providing a prestigious address to call home.
Situated in Wakad, where the Smart City suburb meets the Pune-Mumbai Highway, ANP Ultimus, Pune, offers unparalleled connectivity. The arterial highway allows easy access to prime locations such as Kothrud, Aundh, Baner, and Balewadi. The upcoming Pune Metro further enhances the project's convenience, opening doors to endless possibilities.
ANP Ultimus by ANP Corp. presents a unique residential layout with soothing landscaping and a plethora of amenities on a recreational podium. It caters to the essential requirements of multi-generational families, offering spaces where families can work and play. The spacious and flexible interiors align with new-age aspirations, while podium-level amenities include Wi-Fi pods and co-working spaces in sync with modern life.
From entry guardhouses to outdoor fitness areas, ANP Ultimus, Wakad, Pune, offers ground-level amenities that complement your lifestyle. The podium level features a main lap pool, clubhouse, amphitheater, and more, elevating your living experience to unparalleled luxury. Embrace a lifestyle that goes beyond the ordinary at ANP Ultimus, Wakad, Pune This is not just a home; it's a statement of contemporary elegance and innovation. Discover a residence where groundbreaking ideas become timeless landmarks and life flows seamlessly around them.
Location Advantages of ANP Ultimus















The modern investor seeks more than just a home—they seek growth, reliability, and a steady stream of returns. This is precisely what Niwaas Studio b...
Read MoreIn a city where every square foot matters, Niwaas Studio by Kele Realcorp brings a refreshing concept of space efficiency blended with modern luxury. L...
Read More