MahaRERA:https://maharera.mahaonline.gov.in
| Project QR Code | Maharera No. | Project/Phase Name | Proposed Date Of Completion | Total area (sq.m) |
Total Acre | Total Units | Total Tower |
|---|---|---|---|---|---|---|---|
| P52100052484 | Building-C,D | October - 2026 | 6400 | 1.58 | 64 | 2 |
| Rera No. : P52100052484 |
| Project Name | Proposed Date Of Completion |
Total Units |
|---|---|---|
| Building-C,D | October - 2026 | 64 |
| Total area (sq.m) |
Total Acre | Total Building |
| 6400 | 1.58 | 2 |
| Type | Project/Phase Name | Tower | Total Carpet area (sq.m) |
Basic Carpet area (sq.m) |
Total Carpet area (sq.ft) |
Basic Carpet area (sq.ft) |
Price (INR) |
|---|---|---|---|---|---|---|---|
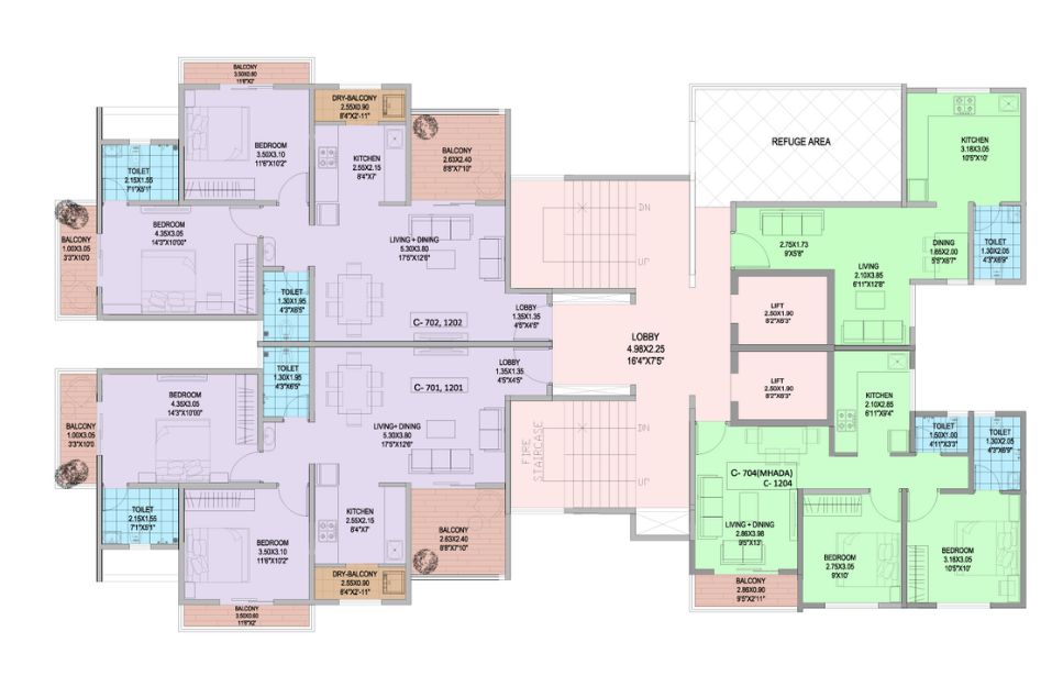
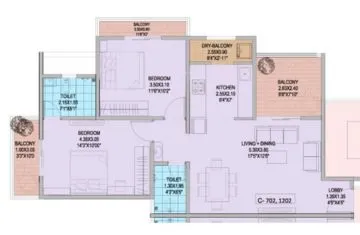
| 2 BHK | Building-C,D | 2 | 84.91 | On Request | 914 | 0.000 | 1.14 Cr*Onwards |
| 2 BHK | Building-C,D | 2 | 51.10 | On Request | 550 | 0.000 | 68.08 Lakhs*Onwards |
| 3 BHK | Building-C,D | 2 | 98.20 | On Request | 1057 | 0.000 | 1.3 Cr*Onwards |
| 3 BHK | Building-C,D | 2 | 99.22 | On Request | 1068 | 0.000 | 1.32 Cr*Onwards |
Beyond the bright city lights or the new age luxuries, there is this constant desire to find a comfort spot called "home". A place where the kids run free, a place to meet people old and new, a place where laughter fills the room, and a place to make new memories and shre some old. Making this wish a realty, OM GROUP brings to you a thoughtfully designed, sprawling development that is set to transform the living experience.
Located in the hearth of WAKAD, offering elegantly designed 2 & 3 BHK homes that are well-planned to present an enhanced living experience, this plush address, located amid several urbane conveniences, is surely a landmark n the making.















In Pune’s premium real estate market, only a few developments go beyond luxury housing and truly establish themselves as landmark addresses. Tribeca ...
Read MoreIn the evolving luxury real estate landscape of Pune, Tribeca The Everett emerges as a rare architectural statement that blends privacy, design excelle...
Read More