MahaRERA:https://maharera.mahaonline.gov.in
| Project QR Code | Maharera No. | Project/Phase Name | Proposed Date Of Completion | Total area (sq.m) |
Total Acre | Total Units | Total Tower |
|---|---|---|---|---|---|---|---|
| P52100005631 | Wing A,C | December - 2023 | 7240 | 1.79 | 147 | 2 |
| Rera No. : P52100005631 |
| Project Name | Proposed Date Of Completion |
Total Units |
|---|---|---|
| Wing A,C | December - 2023 | 147 |
| Total area (sq.m) |
Total Acre | Total Building |
| 7240 | 1.79 | 2 |
| Type | Project/Phase Name | Tower | Total Carpet area (sq.m) |
Basic Carpet area (sq.m) |
Total Carpet area (sq.ft) |
Basic Carpet area (sq.ft) |
All Inclusive Price (INR) |
|---|---|---|---|---|---|---|---|
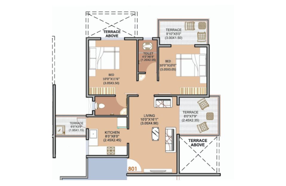
| 2 BHK | Wing A,C | 1 | 60.94 | On Request | 656 | 0.000 | 50 Lakhs*Onwards |
Tulsi Group located at Moshi in Pune. The key amenities of the project include Amphitheatre, Internal Roads, Landscaped Garden, Fire Fighting Systems and Gymnasium. Owing to its location, facilities such as schools, hospitals, ATMs, and markets are available at a close distance from Tulsi Ratna Wing.















Modern homebuyers and investors are increasingly attracted to projects that offer more than just compact living spaces. What defines true residential v...
Read MoreThe demand for compact, well-managed, and income-focused assets has grown rapidly in India’s major real estate markets. Pune, in particular, has ...
Read More