MahaRERA:https://maharera.mahaonline.gov.in
| Project QR Code | Maharera No. | Project/Phase Name | Proposed Date Of Completion | Total area (sq.m) |
Total Acre | Total Units | Total Tower |
|---|---|---|---|---|---|---|---|
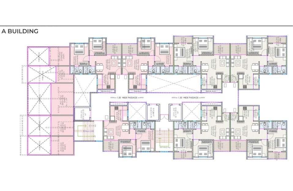
| P52100055833 | Wing A, Wing B, Wing C | September - 2026 | 6981.23 | 1.73 | 479 | 3 |
| Rera No. : P52100055833 |
| Project Name | Proposed Date Of Completion |
Total Units |
|---|---|---|
| Wing A, Wing B, Wing C | September - 2026 | 479 |
| Total area (sq.m) |
Total Acre | Total Building |
| 6981.23 | 1.73 | 3 |
| Type | Project/Phase Name | Tower | Total Carpet area (sq.m) |
Basic Carpet area (sq.m) |
Total Carpet area (sq.ft) |
Basic Carpet area (sq.ft) |
All Inclusive Price (INR) |
|---|---|---|---|---|---|---|---|
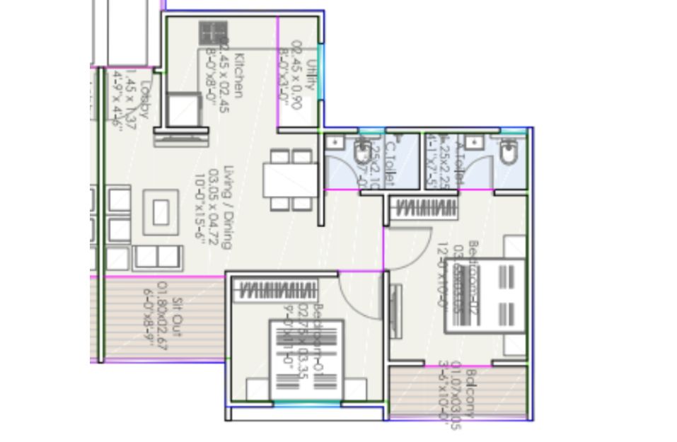
| 2 BHK | Aishwaryam Gaurav Wing A, Wing B, Wing C | 3 | 52.86 | On Request | 569 | 0.000 | 41.99 Lakhs*Onwards |
| 2 BHK | Aishwaryam Gaurav Wing A, Wing B, Wing C | 3 | 64.10 | On Request | 690 | 0.000 | 52.77 Lakhs*Onwards |
In the heart of Chikhali, where dreams soar high, Aishwaryam Gaurav stands tall against the sky. With homes spacious and amenities galore, Here, aspirations soar, forevermore.
PROJECT HIGHLIGHTS















In Pune’s premium real estate market, only a few developments go beyond luxury housing and truly establish themselves as landmark addresses. Tribeca ...
Read MoreIn the evolving luxury real estate landscape of Pune, Tribeca The Everett emerges as a rare architectural statement that blends privacy, design excelle...
Read More