MahaRERA:https://maharera.mahaonline.gov.in
| Project QR Code | Maharera No. | Project/Phase Name | Proposed Date Of Completion | Total area (sq.m) |
Total Acre | Total Units | Total Tower |
|---|---|---|---|---|---|---|---|
| P52100026699 | Chandramapuri | June - 2024 | 637 | 0.16 | 20 | 1 |
| Rera No. : P52100026699 |
| Project Name | Proposed Date Of Completion |
Total Units |
|---|---|---|
| Chandramapuri | June - 2024 | 20 |
| Total area (sq.m) |
Total Acre | Total Building |
| 637 | 0.16 | 1 |
| Type | Project/Phase Name | Tower | Total Carpet area (sq.m) |
Basic Carpet area (sq.m) |
Total Carpet area (sq.ft) |
Basic Carpet area (sq.ft) |
All Inclusive Price (INR) |
|---|---|---|---|---|---|---|---|
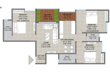
| 3 BHK | Gokhale Chandramapuri | 1 | 96.99 | On Request | 1044 | 0.000 | 2.12 Cr*Onwards |
| 3 BHK | Gokhale Chandramapuri | 1 | 107.77 | On Request | 1160 | 0.000 | 2.33 Cr*Onwards |
Gokhale Constructions proudly presents Gokhale Chandramapuri, a testament to superior craftsmanship and meticulous planning, nestled in the heart of Dahanukar Colony, Kothrud, Pune. Designed to perfection, Gokhale Chandramapuri, Kothrud offers a harmonious blend of innovative design, premium specifications, and modern amenities, setting a new benchmark for luxurious living in Pune.
At Gokhale Chandramapuri, Kothrud, every detail reflects the hallmark of Gokhale Constructions' commitment to excellence. From the architectural design to the finest finishing touches, each element is crafted with precision and care, ensuring a home of unmatched quality and elegance. With 2 & 3 BHK homes, Gokhale Chandramapuri, Pune, offers spacious and well-appointed residences designed to elevate your lifestyle.
Step into Gokhale Chandramapuri and be greeted by the innovative design and premium specifications that set it apart. The apartments here are thoughtfully designed to maximize space and functionality, providing residents with a comfortable and luxurious living experience. From high-quality fixtures to modern amenities, every aspect of Gokhale Chandramapuri by Gokhale Constructions is curated to exceed expectations.
One of the key highlights of Gokhale Chandramapuri, Kothrud, Pune is their excellent connectivity. Situated in the vibrant neighborhood of Dahanukar Colony, Kothrud, Gokhale Chandramapuri by Gokhale Constructions offers easy access to key destinations across Pune. Additionally, the project is extensively planned with a host of features designed to enhance your everyday life, ensuring convenience and comfort at every turn.
Gokhale Chandramapuri, Kothrud, Pune, is more than just a residential complex; it's a true gem that epitomizes modern prosperity. Here, you'll find a perfect harmony of luxurious living and thoughtful design, creating an environment where you can thrive and flourish. Whether you're starting a new family or looking for a serene retreat to call home, Gokhale Chandramapuri, Pune, offers the perfect blend of comfort, convenience, and sophistication.
Gokhale Chandramapuri by Gokhale Constructions, is a reflection of their unwavering commitment to excellence. With its innovative design, premium specifications, and great connectivity, Chandramapuri offers a lifestyle that's truly unmatched. Experience the epitome of modern living at Gokhale Chandramapuri, Kothrud, Pune, where every detail is designed to elevate your everyday life.
Gokhale Chandramapuri Location Advantges















In Pune’s premium real estate market, only a few developments go beyond luxury housing and truly establish themselves as landmark addresses. Tribeca ...
Read MoreIn the evolving luxury real estate landscape of Pune, Tribeca The Everett emerges as a rare architectural statement that blends privacy, design excelle...
Read More