MahaRERA:https://maharera.mahaonline.gov.in
| Project QR Code | Maharera No. | Project/Phase Name | Proposed Date Of Completion | Total area (sq.m) |
Total Acre | Total Units | Total Tower |
|---|---|---|---|---|---|---|---|
| P52100030481 | WING A , B | December - 2024 | 2800 | 0.69 | 87 | 2 |
| Rera No. : P52100030481 |
| Project Name | Proposed Date Of Completion |
Total Units |
|---|---|---|
| WING A , B | December - 2024 | 87 |
| Total area (sq.m) |
Total Acre | Total Building |
| 2800 | 0.69 | 2 |
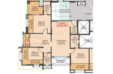
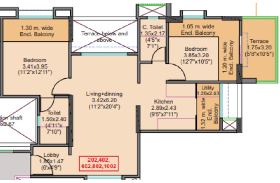
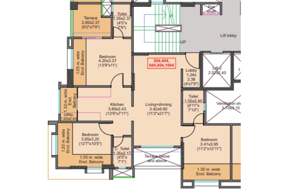
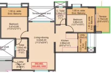
| Type | Project/Phase Name | Tower | Total Carpet area (sq.m) |
Basic Carpet area (sq.m) |
Total Carpet area (sq.ft) |
Basic Carpet area (sq.ft) |
All Inclusive Price (INR) |
|---|---|---|---|---|---|---|---|
| 3 BHK | Wing A & B | 2 | 76.76 | On Request | 826.24 | 0.000 | 1.94 Cr*Onwards |
| 2 BHK | Wing A & B | 2 | 59.91 | On Request | 644.87 | 0.000 | 1.45 Cr*Onwards |
| 3 BHK | Wing A & B | 2 | 76.79 | On Request | 826.57 | 0.000 | 1.94 Cr*Onwards |
"Discover the | 2 & 3 BHK Essence of Tranquil Living at Venkatesh Viom: Kothrud,Pune"
Nestled in the vibrant locale of Venkatesh Viom Kothrud Pune epitomizes a seamless blend of tradition and modernity, offering an exquisite living experience for families seeking serenity and urban convenience. by Shree Venkatesh Buildcon
Unveiling Pune's Rich Heritage Transformed:
Shree Venkatesh Buildcon Kothrud is not just another residential project; it's a testament to Pune's evolving identity. As the heart of Pune moved from the historic districts of Venkatesh Viom Kothrud Pune a new cultural hub emerged. Kothrud today encapsulates the discerning tastes and timeless charm of the classic Punekars, preserving the city's heritage while embracing growth and innovation.
Embrace Nature's Embrace:
Experience a tranquil atmosphere enveloped by nature's bounty. Venkatesh Viom Kothrud is adjacent to Pune's cherished hills—ARAI Hill, Vetal Baba Hill, MIT Hills, and Chandni Chowk Hills—providing an ideal setting for morning strolls amidst peacocks, deer, and rabbits. The environment here fosters activities like tree planting, wildlife conservation, and bird feeding, reflecting Pune's cultural ethos.
Connectivity Redefined:
Beyond its serene surroundings, Venkatesh Viom offers seamless connectivity to esteemed educational institutions, hospitals, and daily essentials. Accessible from every corner of the city, the location ensures a well-balanced work-life rhythm, making it an ideal choice for modern families.
Unmatched Lifestyle & Comfort:
Venkatesh Viom Kothrud presents meticulously designed 2 & 3 BHK apartments with state-of-the-art specifications. From earthquake-resistant RCC construction to designer flooring and modular electrical fittings, each element exudes sophistication and quality.
Specifications that Elevate Living:
Earthquake-resistant RCC construction with AAC blocks
Laminated shutters for doors and aluminum windows with safety features
Designer flooring and fittings in bathrooms
Fully equipped kitchen with granite platform and utility provisions
Elevators, fire-fighting systems, and water sourcing for a hassle-free lifestyle
Key Distances and Amenities:
Situated close to prominent schools, colleges, shopping centers, and healthcare facilities Venkatesh Viom Kothrud offers unparalleled convenience. With easy access to Chandani Chowk, transportation hubs, and upcoming metro connectivity, life here promises unparalleled ease.
About Venkatesh Buildcon:
Shree Venkatesh Buildcon Pvt. Ltd., the visionary behind Venkatesh Viom Kothrud, boasts two decades of crafting homes that resonate with people's aspirations. Their commitment to excellence has garnered several accolades and earned trust as a leading real estate developer in Pune.
Your Gateway to Elevated Living:
Venkatesh Viom isn't just a residence; it's a gateway to a life filled with tranquility, connectivity, and unparalleled joy. Book your dream home and embrace the essence of Pune's rich culture amidst modern comforts.
Discover the epitome of tranquil living at Venkatesh Viom, Kothrud, Pune – Where Tradition Meets Modernity. For inquiries and bookings contact BuyIndiaHomes.com to Book your dream home with @0 Brokerage No.8181817136
Changing Spaces, Enhancing Lives: Venkatesh Buildcon is committed to changing spaces and improving lives through uncommon land contributions. With an emphasis on quality, straightforwardness, and client-centricity, we make homes that motivate and enchant. We accept that a house is something beyond a spot to reside; it's a safe-haven where recollections are made, families are raised, and dreams are understood. From inventive plan ideas to reasonable development rehearsals, we are focused on making spaces that upgrade the personal satisfaction of our occupants and leave a positive effect on the networks we serve.
Schools
College
Hospital















The modern investor seeks more than just a home—they seek growth, reliability, and a steady stream of returns. This is precisely what Niwaas Studio b...
Read MoreIn a city where every square foot matters, Niwaas Studio by Kele Realcorp brings a refreshing concept of space efficiency blended with modern luxury. L...
Read More