MahaRERA:https://maharera.mahaonline.gov.in
| Project QR Code | Maharera No. | Project/Phase Name | Proposed Date Of Completion | Total area (sq.m) |
Total Acre | Total Units | Total Tower |
|---|---|---|---|---|---|---|---|
| P52100054183 | Devki | June - 2026 | 513 | 0.13 | 13 | 1 |
| Rera No. : P52100054183 |
| Project Name | Proposed Date Of Completion |
Total Units |
|---|---|---|
| Devki | June - 2026 | 13 |
| Total area (sq.m) |
Total Acre | Total Building |
| 513 | 0.13 | 1 |
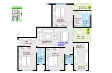
| Type | Project/Phase Name | Tower | Total Carpet area (sq.m) |
Basic Carpet area (sq.m) |
Total Carpet area (sq.ft) |
Basic Carpet area (sq.ft) |
All Inclusive Price (INR) |
|---|---|---|---|---|---|---|---|
| 3 BHK | Devki | 1 | 109.16 | On Request | 1175 | 0.000 | 2.32 Cr*Onwards |
| 2 BHK | Devki | 1 | 62.71 | On Request | 675 | 0.000 | 1.37 Cr*Onwards |
| 3 BHK | Devki | 1 | 103.77 | On Request | 1117 | 0.000 | 221 Cr*Onwards |
Redefine Living Style With Neo classical Exterior, Grand Entrance, Ample Parking, with Huge Windows,
Shreesha Devki Location Advantges















Mont Vert Belview Bhugaon Pune is emerging as a strong contender in Pune’s real estate market due to its strategic location and evolving infrastructu...
Read MoreEntrepreneurs today are not just looking for office space—they are searching for growth ecosystems. Menlo Codename Power Play Hinjewadi Pune stands o...
Read More