MahaRERA:https://maharera.mahaonline.gov.in
| Project QR Code | Maharera No. | Project/Phase Name | Proposed Date Of Completion | Total area (sq.m) |
Total Acre | Total Units | Total Tower |
|---|---|---|---|---|---|---|---|
| P52100052712 | Grazia | December - 2025 | 513 | 0.13 | 9 | 1 |
| Rera No. : P52100052712 |
| Project Name | Proposed Date Of Completion |
Total Units |
|---|---|---|
| Grazia | December - 2025 | 9 |
| Total area (sq.m) |
Total Acre | Total Building |
| 513 | 0.13 | 1 |
| Type | Project/Phase Name | Tower | Total Carpet area (sq.m) |
Basic Carpet area (sq.m) |
Total Carpet area (sq.ft) |
Basic Carpet area (sq.ft) |
All Inclusive Price (INR) |
|---|---|---|---|---|---|---|---|
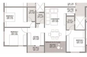
| 2 BHK | Grazia | 1 | 77.48 | On Request | 834 | 0.000 | 1.49 Cr*Onwards |
| 3 BHK | Grazia | 1 | 92.90 | On Request | 1000 | 0.000 | 1.77 Cr*Onwards |
| 3 BHK | Grazia | 1 | 98.48 | On Request | 1060 | 0.000 | 1.88 Cr*Onwards |
Nestled in the heart of Bhusari Colony, Pune, Grazia, Kothrud, Pune stands as a testament to serene living surrounded by abundant greenery. This residential haven offers a perfect balance between urban connectivity and a peaceful lifestyle, making it an ideal neighborhood for families seeking the best of both worlds. Comprising spacious 3 and 2 BHK residences, Grazia by SBM Space Realty LLP, is designed to embrace contemporary trends while embracing the timeless elegance and comfort of traditional living.
The Perfect Location: Located in one of Pune's most coveted areas, Bhusari Colony, Grazia, Kothrud, Pune enjoys proximity to prime city areas via the newly introduced Metro, coupled with easy access to the highway connecting to Hinjewadi IT Park. Bhusari Colony is revered as one of the most sought-after residential locations, offering a well-planned environment with close proximity to hospitals, parks, educational institutions, and daily necessities, making it an ideal living destination for families.
Amenities that Elevate Living at Grazia, Pune:
Grazia, Kothrud ensures a lifestyle of convenience and luxury through carefully curated amenities:
Specifications that define excellence at Grazia, Kothrud:
A Promise of Tranquility and Convenience: Grazia, Kothrud, Pune, in Bhusari Colony is not just a residence; it is a sanctuary offering tranquility and convenience in abundance. The meticulously designed residences and thoughtfully incorporated amenities ensure a harmonious living experience. This haven promises to be a true blessing for families, embodying the essence of urban living with a touch of serenity.
Embrace a lifestyle where modernity meets tradition and comfort meets elegance. Grazia, Kothrud, Pune, is poised to redefine your living experience in Bhusari Colony, Pune. Your dream home awaits amidst lush greenery and contemporary living at Grazia, Kothrud















In Pune’s premium real estate market, only a few developments go beyond luxury housing and truly establish themselves as landmark addresses. Tribeca ...
Read MoreIn the evolving luxury real estate landscape of Pune, Tribeca The Everett emerges as a rare architectural statement that blends privacy, design excelle...
Read More