MahaRERA:https://maharera.mahaonline.gov.in
| Project QR Code | Maharera No. | Project/Phase Name | Proposed Date Of Completion | Total area (sq.m) |
Total Acre | Total Units | Total Tower |
|---|---|---|---|---|---|---|---|
| P52100031704 | Building A & B | December - 2024 | 1203.13 | 0.3 | 32 | 2 |
| Rera No. : P52100031704 |
| Project Name | Proposed Date Of Completion |
Total Units |
|---|---|---|
| Building A & B | December - 2024 | 32 |
| Total area (sq.m) |
Total Acre | Total Building |
| 1203.13 | 0.3 | 2 |
| Type | Project/Phase Name | Tower | Total Carpet area (sq.m) |
Basic Carpet area (sq.m) |
Total Carpet area (sq.ft) |
Basic Carpet area (sq.ft) |
Agreement Value Price (INR) |
|---|---|---|---|---|---|---|---|
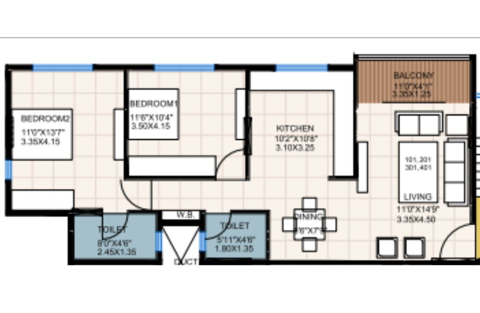
| 2 BHK | Building A & B | 2 | 71.16 | On Request | 766 | 0.000 | 1.6 Cr*Onwards |
| 3 BHK | Building A & B | 2 | 111.48 | On Request | 1200 | 0.000 | 2.5 Cr*Onwards |
"Experience Luxurious Living at Swarupnalini Kothrud by The Nest Constructions Your Dream Home Awaits"
Welcome to Swarupnalini Kothrud by The Nest Constructions an epitome of luxury living nestled in the heart of Kothrud, Pune. Discover a serene abode that amalgamates comfort, elegance, and convenience, promising an unparalleled living experience for you and your family.
Introduction: Swarupnalini Pune stands tall as a testament to The Nest Constructions unwavering commitment to excellence and customer satisfaction. Boasting two meticulously designed buildings within a single premise, this project epitomizes exclusivity and sophistication.
Location Advantage: Ideally positioned between Karve Road and Paud Road Swarupnalini Kothrud Pune offers residents easy access to prime locations such as Mayur Colony and Karishma Signal, minimizing commute times and enhancing convenience. The neighborhood is adorned with an array of amenities including restaurants, banks, shopping complexes, and esteemed educational institutions like Cummins Engineering College, MIT, and Garware College.
Exquisite Features:
Unprecedented Privacy: With only three flats on each floor SwarupNalini ensures residents enjoy the luxury of ample privacy.
Community Living, Individual Amenities: Both Swarupnalini Kothrud A and B Buildings foster a sense of community living while providing separate amenities for each building, catering to diverse preferences.
Elegant Lobby & Access Control: The welcoming ground floor lobby boasts comfortable seating arrangements while maintaining single-point access control for enhanced security.
Prime Connectivity: Conveniently connected to key areas like Mayur Colony and Karishma Signal, saving valuable time for the residents.
Luxurious Specifications: SwarupNalini offers meticulously designed spaces featuring premium specifications:
Internal Walls: A.A.C. block walls with gypsum finish plaster and plastic emulsion paint.
Flooring: 800 x 800 vitrified tiles, complemented by designer-crafted tile patterns in bathrooms.
Kitchen: Granite kitchen platforms, SS sink, and laminate finish doors.
Doors & Windows: Safety doors, UPVC windows with mosquito nets, and MS grills for safety.
Balconies: Wooden finish ceiling for the east-side balcony with SS/MS hand railings and spotlights.
Electricals: Branded concealed copper wiring, switchboards, and provisions for essential appliances in every room.
Amenities Beyond Compare: At SwarupNalini, luxury extends beyond interiors with a plethora of amenities:
Branded Car Parking & Elevators: Covered car parking in a branded mechanized system and an 8-passenger capacity elevator for convenience.
Security & Safety Measures: CCTV surveillance, video door phone, fire-fighting system, and decorative compound walls ensure residents' safety.
Sustainable Initiatives: Rainwater harvesting, solar water heater system, and MNGL gas pipeline provision underline our commitment to sustainability.
Conclusion: The Nest Constructions Kothrud transcends the realms of a mere residence, offering a lifestyle that resonates with sophistication and comfort. Experience the joy of luxurious living in a community that cherishes every moment. Your dream home awaits at SwarupNalini - crafted by The Nest Constructions, where excellence meets tranquility.
For inquiries and bookings contact BuyIndiaHomes.com to Book your dream home with @0 Brokerage No.8181817136















In today’s evolving real estate landscape, investors are increasingly looking beyond traditional appreciation-led assets and focusing on predictable ...
Read MoreCodename AIR Tathawade Sets a New Standard for Pre-Leased Studio Apartments in PuneC...
Read More