MahaRERA:https://maharera.mahaonline.gov.in
| Project QR Code | Maharera No. | Project/Phase Name | Proposed Date Of Completion | Total area (sq.m) |
Total Acre | Total Units | Total Tower |
|---|---|---|---|---|---|---|---|
| P52100053720 | Manorama Heights | December - 2026 | 669.04 | 0.17 | 40 | 1 |
| Rera No. : P52100053720 |
| Project Name | Proposed Date Of Completion |
Total Units |
|---|---|---|
| Manorama Heights | December - 2026 | 40 |
| Total area (sq.m) |
Total Acre | Total Building |
| 669.04 | 0.17 | 1 |
| Type | Project/Phase Name | Tower | Total Carpet area (sq.m) |
Basic Carpet area (sq.m) |
Total Carpet area (sq.ft) |
Basic Carpet area (sq.ft) |
Agreement Value Price (INR) |
|---|---|---|---|---|---|---|---|
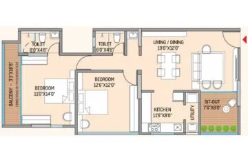
| 2 BHK | Manorama Heights | 1 | 83.71 | 0.00 | 901 | 0.000 | 1.06 Cr*Onwards |
| 3 BHK | Manorama Heights | 1 | 105.54 | 0.00 | 1136 | 0.000 | 1.33 Cr*Onwards |
Manorama Heights
Connectivity
Situated in private residential zone offering privacy & peacedul living in city center















In today’s fast-paced lifestyle, modern homebuyers expect more than four walls—they seek a holistic living experience powered by comfort, convenien...
Read MoreChoosing the right home as a working professional goes beyond just floor plans and pricing. Today’s workforce looks for comfort, convenience, strong ...
Read More