MahaRERA:https://maharera.mahaonline.gov.in
| Project QR Code | Maharera No. | Project/Phase Name | Proposed Date Of Completion | Total area (sq.m) |
Total Acre | Total Units | Total Tower |
|---|---|---|---|---|---|---|---|
| P52100048400 | Aabha | December - 2025 | 689 | 0.17 | 15 | 1 |
| Rera No. : P52100048400 |
| Project Name | Proposed Date Of Completion |
Total Units |
|---|---|---|
| Aabha | December - 2025 | 15 |
| Total area (sq.m) |
Total Acre | Total Building |
| 689 | 0.17 | 1 |
| Type | Project/Phase Name | Tower | Total Carpet area (sq.m) |
Basic Carpet area (sq.m) |
Total Carpet area (sq.ft) |
Basic Carpet area (sq.ft) |
All Inclusive Price (INR) |
|---|---|---|---|---|---|---|---|
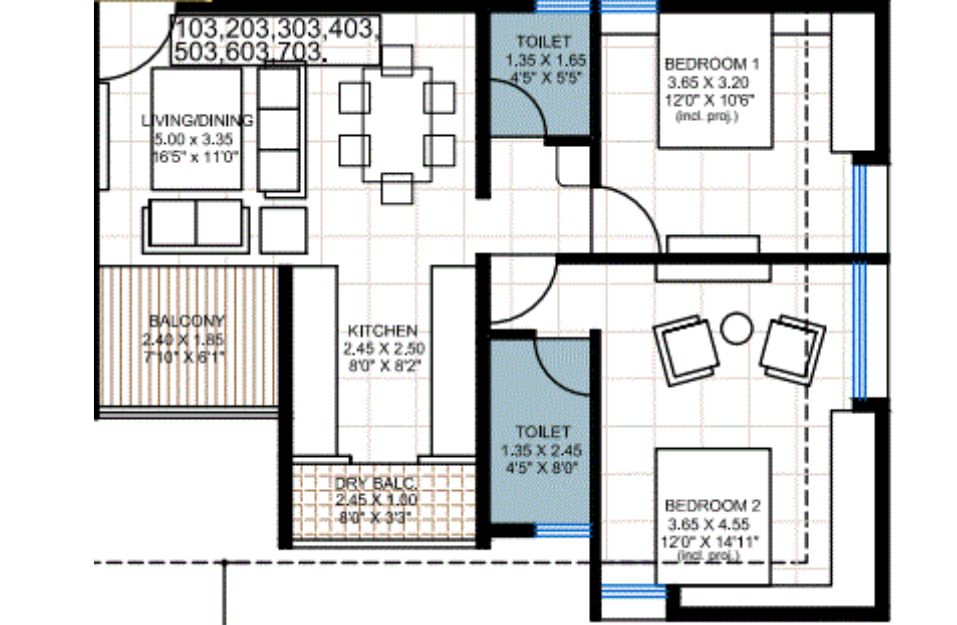
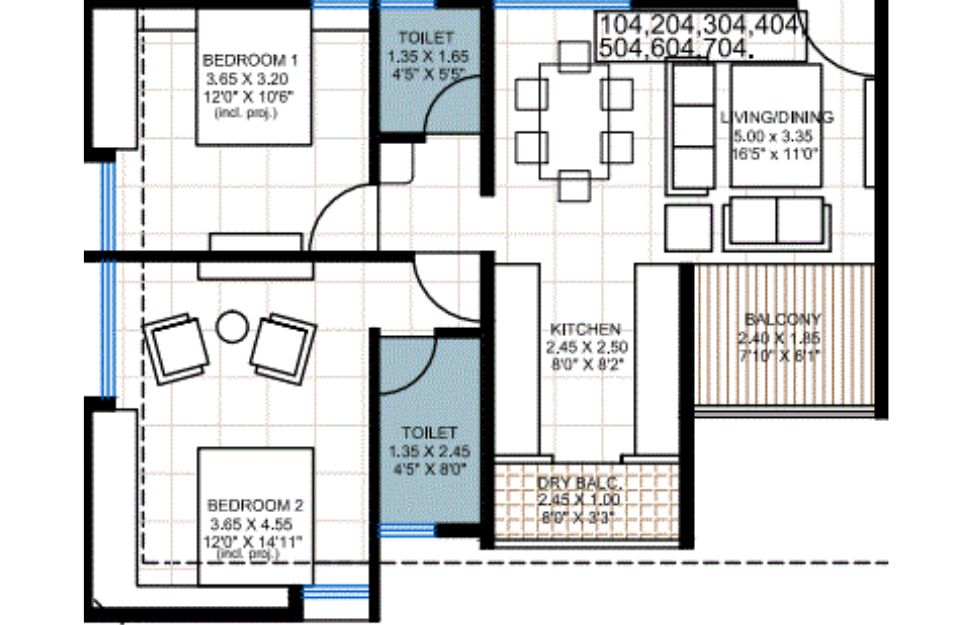
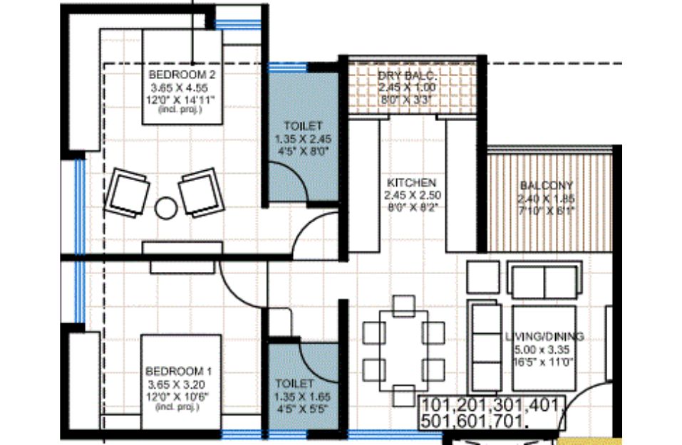
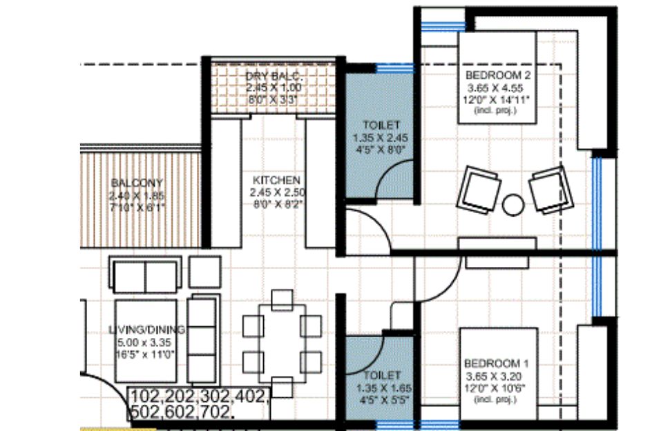
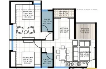
| 2 BHK | Aabha | 1 | 68.28 | On Request | 735 | 0.000 | 86.03 Lakhs*Onwards |
Welcome to Gangotree Aabha by Gangotree Homes, which perfectly harmonizes with the affluent and vibrant locale of Aundh. Surrounded by lush greenery and immersed in a lively cultural atmosphere, Gangotree Aabha Baner, Pune, promises a lifestyle that resonates with zest and sophistication. Let's delve into the exquisite details that make Gangotree Aabha the epitome of elegant living.
Gangotree Aabha Baner offers spacious built-up areas meticulously crafted to meet the highest quality standards set by Gangotree Homes Baner. The architecture is smartly designed, promoting elegant interiors and maximizing space utility. Every aspect of Gangotree Aabha Pune is a testament to innovation, ensuring a premier living experience for its residents.
Nestled in the fast-developing locality of Aundh, Gangotree Aabha Baner, Pune boasts an enviable location advantage. Enjoy easy access to the highway, connecting seamlessly to the IT hub of Hinjewadi on one side and gaining proximity to the globally acclaimed Pune University on the other. Additionally, Gangotree Aabha Baner is strategically positioned near the commercial significance of 'Westend Mall, near Parihar Chowk', ensuring a well-connected and convenient lifestyle.
For those who crave lively vibes, Gangotree Aabha Baner is just a '10-minute drive' from 'Balewadi High Street', one of the most upbeat places in town. Immerse yourself in the energy of this bustling area, adding a touch of excitement to your everyday life.
Aabha Pune doesn't just offer residences; it provides a complete lifestyle upgrade with a range of amenities:
In conclusion, Gangotree Aabha by Gangotree Homes is not just a residential complex; it's an embodiment of luxury, comfort, and sustainability. From its strategic location to unmatched amenities and impeccable specifications, every facet of Gangotree Aabha Baner, Pune, is designed to provide residents with a lifestyle that transcends the ordinary. Embrace the perfect blend of innovation, elegance, and structural expertise at Gangotree Aabha Baner, Pune, your premier address in Aundh. Welcome home to a life of unparalleled luxury and convenience!















Modern homebuyers and investors are increasingly attracted to projects that offer more than just compact living spaces. What defines true residential v...
Read MoreThe demand for compact, well-managed, and income-focused assets has grown rapidly in India’s major real estate markets. Pune, in particular, has ...
Read More