MahaRERA:https://maharera.mahaonline.gov.in
| Project QR Code | Maharera No. | Project/Phase Name | Proposed Date Of Completion | Total area (sq.m) |
Total Acre | Total Units | Total Tower |
|---|---|---|---|---|---|---|---|
| P52100034428 | Radiance Residency | February - 2025 | 464.68 | 0.11 | 13 | 1 |
| Rera No. : P52100034428 |
| Project Name | Proposed Date Of Completion |
Total Units |
|---|---|---|
| Radiance Residency | February - 2025 | 13 |
| Total area (sq.m) |
Total Acre | Total Building |
| 464.68 | 0.11 | 1 |
| Type | Project/Phase Name | Tower | Total Carpet area (sq.m) |
Basic Carpet area (sq.m) |
Total Carpet area (sq.ft) |
Basic Carpet area (sq.ft) |
All Inclusive Price (INR) |
|---|---|---|---|---|---|---|---|
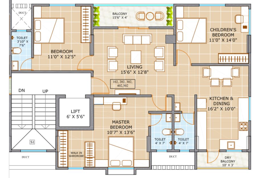
| 3 BHK | Radiance Residency | 1 | 81.48 | On Request | 877 | 0.000 | 1.23 Cr*Onwards |
| 3 BHK | Radiance Residency | 1 | 103.59 | On Request | 1115 | 0.000 | 1.55 Cr*Onwards |
Brought to you by Epitomee Realty Vision Llp Baner, Pune. A home is more than just a roof above your head; it's a canvas for countless moments of happiness and joy.
Radiance Residency is not just a residence; it's a space designed to accommodate your dreams, passions, and zest for life.
Our cozy and spacious 3 BHK homes redefine the essence of comfortable living. Each residence is meticulously crafted to uplift your soul and enhance your appreciation for the journey of life. Modern and smart interiors come together to create a world within Radiance Residency, Pune, that resonates with your lifestyle and aspirations.
Step into a home that goes beyond the ordinary, where every detail is thoughtfully curated to provide not just a living space but an environment that nurtures joy and fulfillment. Radiance Residency, Baner, is a testament to our commitment to creating homes that enrich your life and become the backdrop for your most cherished memories.
Experience the perfect blend of comfort and style at Radiance Residency, Baner, Pune. Your dream home awaits, promising a journey of joy and fulfillment in every corner. Invest in a space that understands your desires and enhances the quality of your life—choose Radiance Residency by Epitomee Realty Vision Llp.
Epitomee Realty Vision LLP stands apart as a conspicuous player in the Pune real estate industry, committed to changing the dreams about possessing a home into reality for endless people. With a fastidious way to deal with development, they focus on quality, thoughtfulness regarding helpful specifying, and guaranteeing ideal incentive for each venture made. Their responsibility reaches out past simple development; they try to develop trust and certainty among their customer base with each new item and administration they present. Epitomee Realty Vision LLP ceaselessly endeavors to surpass assumptions, acquiring acknowledgment for their honesty, dependability, and commitment to conveying homes that resound with greatness and give enduring fulfillment to their clients.
SCHOOLS
HOSPITALS
HOTELS
SHOPPING and ENTERTAINMENT















In Pune’s premium real estate market, only a few developments go beyond luxury housing and truly establish themselves as landmark addresses. Tribeca ...
Read MoreIn the evolving luxury real estate landscape of Pune, Tribeca The Everett emerges as a rare architectural statement that blends privacy, design excelle...
Read More