MahaRERA:https://maharera.mahaonline.gov.in
| Project QR Code | Maharera No. | Project/Phase Name | Proposed Date Of Completion | Total area (sq.m) |
Total Acre | Total Units | Total Tower |
|---|---|---|---|---|---|---|---|
| PM1261012502409 | Kolte Patil PHASE – 1 | December - 2030 | 53187.01 | 13.14 | 545 | 5 |
| Rera No. : PM1261012502409 |
| Project Name | Proposed Date Of Completion |
Total Units |
|---|---|---|
| Kolte Patil PHASE – 1 | December - 2030 | 545 |
| Total area (sq.m) |
Total Acre | Total Building |
| 53187.01 | 13.14 | 5 |
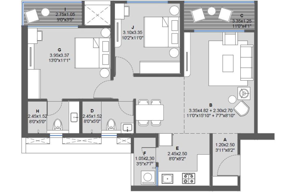
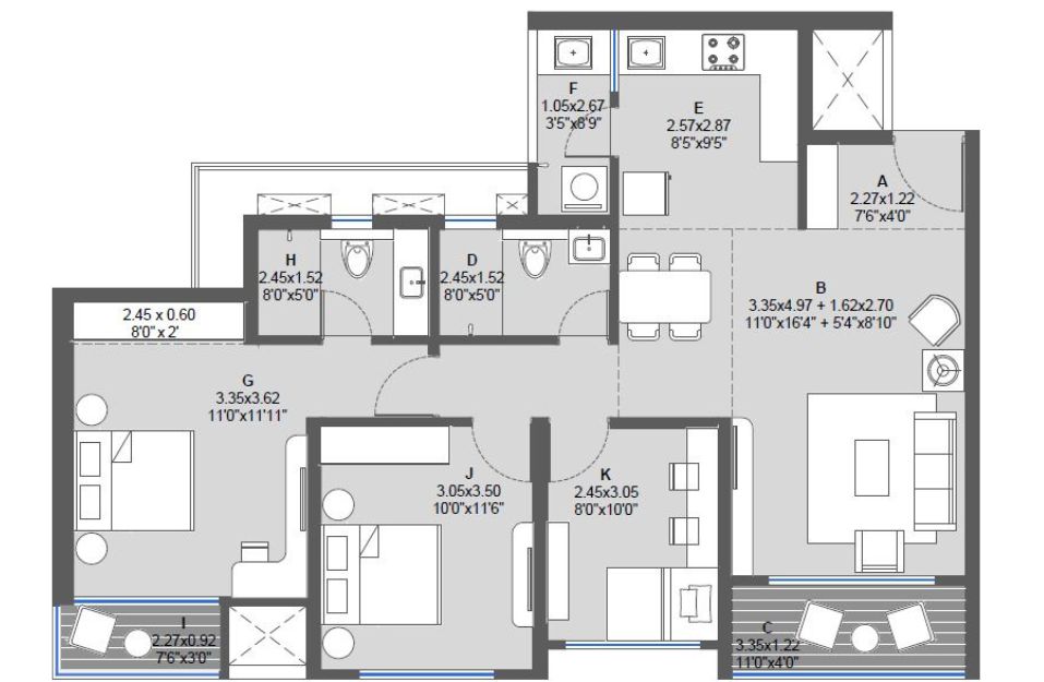
| Type | Project/Phase Name | Tower | Total Carpet area (sq.m) |
Basic Carpet area (sq.m) |
Total Carpet area (sq.ft) |
Basic Carpet area (sq.ft) |
All Inclusive Price (INR) |
|---|---|---|---|---|---|---|---|
| 2 BHK | Kolte Patil PHASE – 1 | 5 | 77.76 | 0.00 | 837 | 0.000 | 92 Lakhs*Onwards |
| 2.5 BHK | Kolte Patil PHASE – 1 | 5 | 89.47 | 0.00 | 963 | 0.000 | 1.02 Cr*Onwards |
| 2.5 BHK | Kolte Patil PHASE – 1 | 5 | 90.86 | 0.00 | 978 | 0.000 | 1.1 Cr*Onwards |
ECHOES
Imaginea placethat keepschildhoodalive.
Not just for the kids, but for you too!
Childhood today moves fast.
Screens replace play. Schedules replace freedom.
But childhood wasn’t meant to
feel rushed. It was meant to be lived.
ECHOES is inspired by that feeling of time
slowing down, naturally.
Phoenix Mall of The Millennium ~21 Mins.
Balewadi Stadium ~22 Mins.
D Y Patil University ~18 Mins.
Indira Institute Of Management ~13 Mins.
SCHOOLS
• Crimson Anisha Global School
• Indira International School
• Akshara International School
• Vibgyor School
• Mahindra International School
COLLEGES
• NICMAR
• Bharti Vidyapith
• D Y Patil
• Indira Institute of
Management
• JSPM
• Alard College
• IIMS
SHOPPING MALLS
• Phoenix Mall of The
Millennium
• Elpro City Square mall
• Grand High Street Mall
• Xion Mall Hinjewadi
• Vision One
ENTERTAINMENT
• PVR
• Carnival Cinemas
• INOX
• Butterfly Trampoline Park
• Dinosaur Garden
HOSPITALS
• Apollo Clinic
• Aditya Birla Hospital
• Surya Mother and Child
Super Speciality Hopsital
• Life Point Hospital
• Sahyadri Hospital
RETAIL & HIGHSTREET
• D-Mart
• Smart Bazaar
• Decathlon
• Balewadi Highstreet
• Croma
IT PARKS
• TCS
• Wipro
• Infosys
• Embassy Tech Zone
• Quadron Business Park















In Pune’s premium real estate market, only a few developments go beyond luxury housing and truly establish themselves as landmark addresses. Tribeca ...
Read MoreIn the evolving luxury real estate landscape of Pune, Tribeca The Everett emerges as a rare architectural statement that blends privacy, design excelle...
Read More